查看完整案例

收藏

下载
11 Great Jones
18,000 square feet
6 stories, 8 units
New York, New York
2016
Inspired by nearby cast-iron façades and the work of Donald Judd, this contemporary brick and steel residential building reflects NoHo’s evolution from a manufacturing district to an artists’ enclave to an upscale residential neighborhood.
The NoHo Historic District developed primarily during a nineteenth-century commercial boom that prompted the construction of new warehouses, storefronts, and factories to meet the demands of a quickly growing New York. In the 1950s and 1960s, when the occupants of these buildings left Manhattan in search of lower costs and better infrastructure outside the city, artists settled in the area, drawn by the large industrial loft spaces and cheap rent. 11 Great Jones, a six-story rental building located near the heart of NoHo, draws on this history with a design that both evokes the district’s past and resonates with the markedly contemporary buildings ushering in the next phase of its evolution.
The design was influenced by the classically inspired cast-iron façades of old manufacturing buildings, but the details were informed by the work of artist Donald Judd. An untitled Judd work comprising a metal column embedded in a wood box was a direct model for the pilasters, which read as Juddesque metal channels running through a brick box. The artist’s residence, located just a few blocks away, was a model for further details. The pilasters on his nineteenth-century cast-iron building increase in size as they climb the façade. Similarly, 11 Great Jones’s metal pilasters expand with each floor above street level, thereby reducing the size of their brick surrounds until the sixth floor, where they disappear completely and the naked metal pilasters become columns wrapping an outdoor terrace. Though subtle, the progression introduces a sense of movement to the building and a degree of articulation that recalls the district’s more traditional façades.
While the brick piers were inspired by Donald Judd, the initial motivation for adding a masonry element was a suggestion made by the NYC LPC. The development of 11 Great Jones was, therefore, a collaboration across time, with the luminaries of the city’s past and the stewards of its future.
Design & Construction
Building Section.
Great Jones Street Elevation. The new building balances NoHo’s traditional masonry architecture with contemporary design.
Rendering looking west toward the corner of Lafayette Street and Great Jones Street.
Construction photograph.
A first look at the façade after the scaffolding was removed.
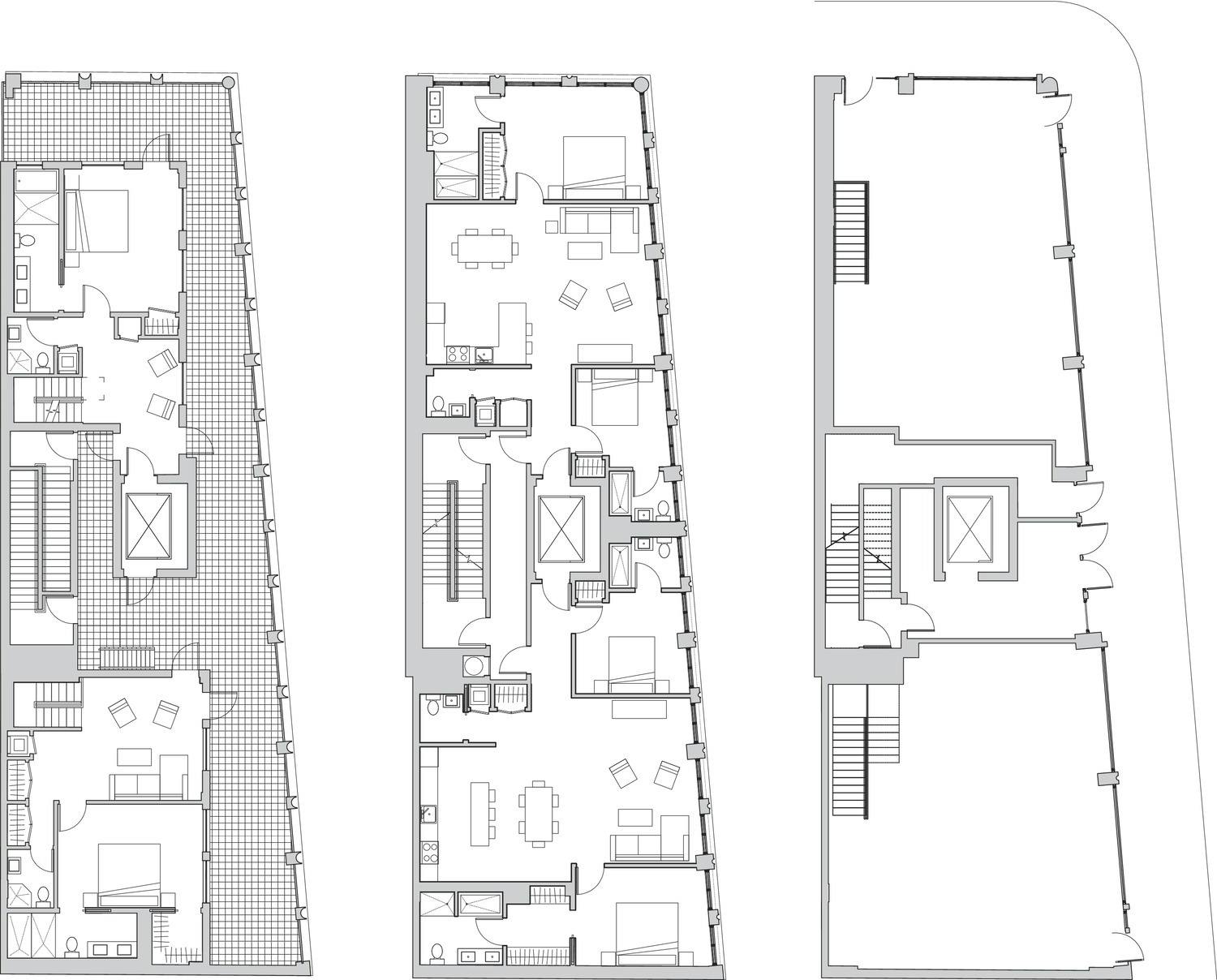
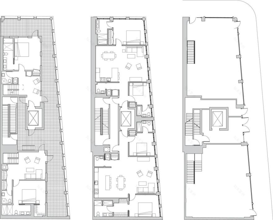
Left: Plan, floor 6. The fifth and sixth levels are occupied by duplexes. The upper floor is set back from the façade in response to zoning requirements.
Middle: Typical plan, floors 2–4.
Right: Plan, ground floor. 11 Great Jones’ residential lobby separates two commercial spaces.
Image Credits
Jimi Billingsley
Field Condition
Matthew Williams
客服
消息
收藏
下载
最近













