查看完整案例

收藏

下载
Maison d’Adeline
mission
permis de construire
type
construction neuve
maître d’ouvrage
privé
maître d’œuvre
CoCo architecture
date
2016-2019
surface
125m2
prix
200K€HT
lieu
Proissan (24)
statut
livré
programme
construction d’une maison neuve écologique en bois
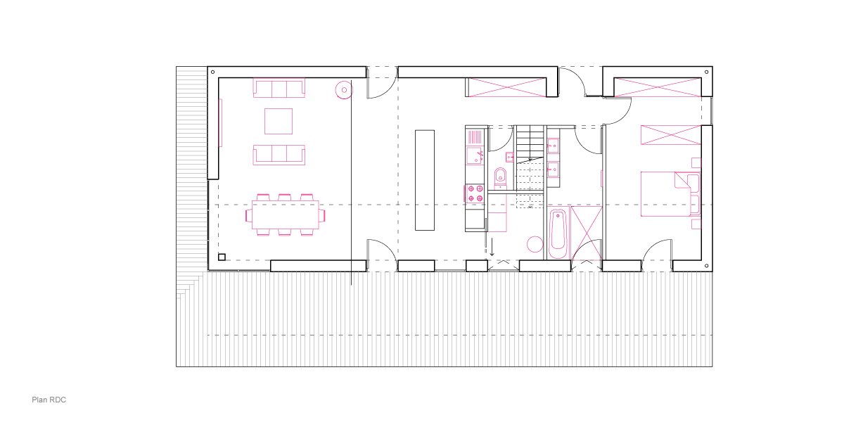
Pour concevoir cette maison, nous avons cherché à réinterpréter la volumétrie classique des maisons dans un volume simple et compact. Ainsi la maison utilise l’espace sous comble pour ne pas trop s’étaler au sol et minimise les surfaces déperditives.
La bâtisse est partitionnée en deux : la partie nuit à l’est dispose d’un étage tandis que la partie jour à l’ouest offre un séjour en double hauteur. La circulation de desserte à l’étage à été élargie pour être une circulation utile type pièce de jeu et bureau.
Au RDC, coté Sud, nous avons créé un décalage de façade par rapport à la ligne d’égout, de façon à protéger le vitrage des rayons du soleil en été. Une terrasse en bois permet d’utiliser cet espace abrité comme une varangue.
En façade, les percements verticaux évoquent le rythme des façades des hangars agricoles de la région.
La maison a été réalisée en ossature bois et bardage en mélèze.
Crédits photos : Edouard Decam
客服
消息
收藏
下载
最近









