查看完整案例

收藏

下载
Haus K
Dreieich
2011
Haus K combines the functional necessities of a first home with the additional comfort and atmospheric otherness of a holiday home.
On Context
Subversion
At first glance, Haus K responds to its context with a decidedly individualistic approach and seemingly independent architectural gestures. Yet despite its modernist aesthetic, several contextual influences are translated into the building’s form and organisation.
The house is located in in the town of Dreieich-Götzenhain, in a quite typical suburban housing settlement that had been developed during the 1960s. The neighbourhood still shows the architectural reverberations of the increasingly wealthy, yet rather conservative and homogeneous suburban society during the so-called “Wirtschaftswunder” of post-war Germany. However, today this aesthetic consensus has been replaced by an entirely individualist approach towards the aesthetics of one’s own house that manifests itself in an eclectic collage of styles.
Here, Haus K is located at a street-corner where it marks the transitions between the suburban residential neighbourhood on the one side, and small commercial areas and farmland on the other. At its western side, it continues the rhythm of the rather low residential units, while it changes appearance towards its eastern perimeter in order to react properly to a row of larger neighbouring buildings. Here, it articulates a concise wall-like façade that demarcates the border between the housing settlement and the adjacent farmland.
Haus K
one fine day_HausK_gardenview
Typology
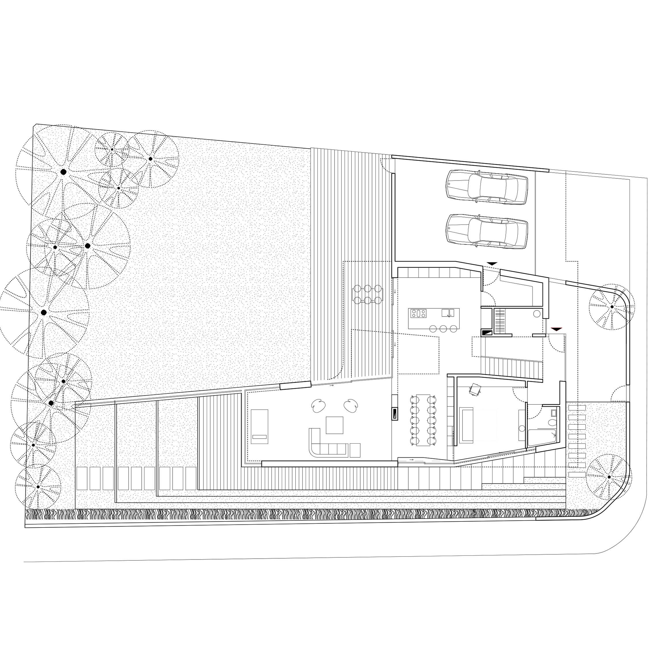
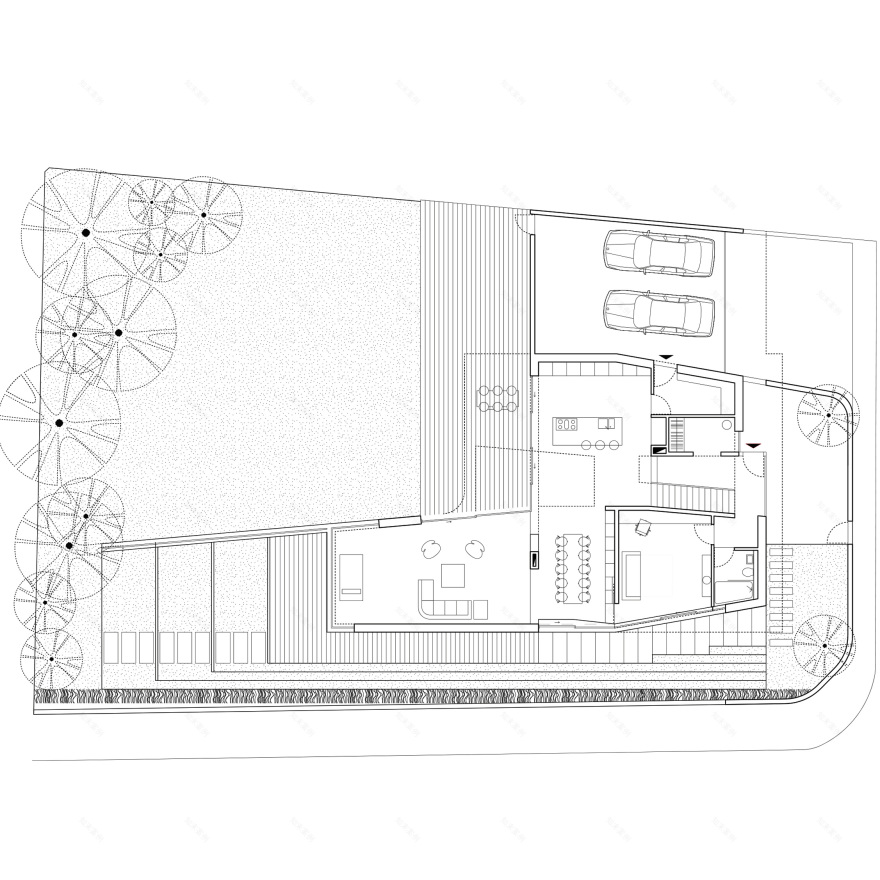
Haus K formulates a clear reference to the L- and U-shaped bungalows that characterized the neighbourhood: the L-shaped ground floor frames the terrace and establishes multiple relations between the interior of the house and the garden. At the pivot of this ‘L’ a complex interplay of structural beams and walls opens the building’s volume to interlock both, interior and exterior spaces.
Material
one fine day_HausK_exterior east
Sharpness
The material concept of Haus K echoes the client’s wish for a decidedly modernist house: the building’s sharply cut geometry is fostered by the fine grain of the plaster facade as well as by an intentional lack of visible details, such as a clad parapet or windowsills that would normally protect the façade from rainwater. Instead, the thermal insulation composite system is reinforced with a layer of liquid seal as well as with embedded plastic rails that care for controlled drainage.
Date
2011-14
Place
nearby Frankfurt/Main, Germany
Size
~470 m²
Client
Private
Team
Daniela Hake
Holger Hoffmann
Gabriel Wüstner
Status
built
with
dma, darmstadt
Photos
Roland Borgmann, Münster
客服
消息
收藏
下载
最近












