查看完整案例

收藏

下载
architects Henley Halebrown
Kings Crescent Phases 1&2
London
2012–2017
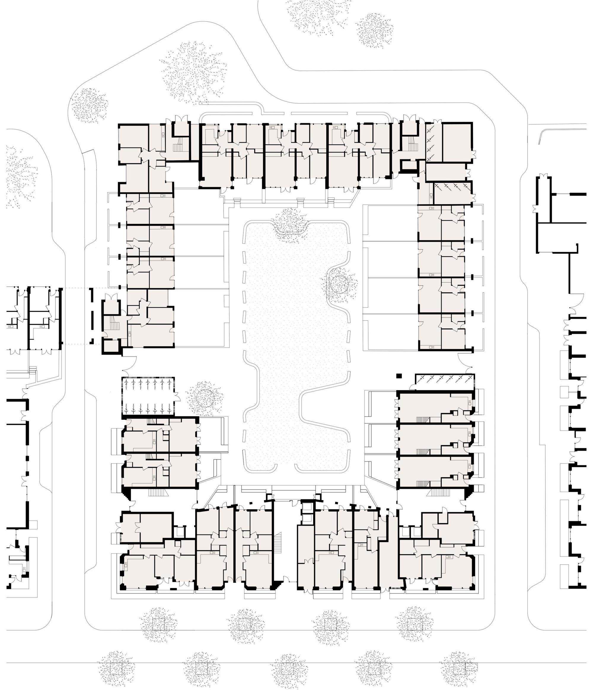
RIBA National Award winner, recipient of the Mayor's Prize (New London Awards) and Housing Project of the Year (AJ Architecture Awards), Kings Crescent is an exemplary council-led estate regeneration scheme that combines high quality new housing with the meaningful transformation of existing buildings, addressing the disparity between ‘us’ and ‘them’. The masterplan was developed in collaboration with Karakusevic Carson Architects and Muf Architecture/Art. Phase 1 was completed in 2017. Phase 2 was granted detailed planning consent in November 2019.
Image
The masterplan unites old and new buildings with a shared material palette
A uniformity of tone and stepped brickwork details add refinement to the facade of our new building
New buildings to the north of Murrain Road enclose shared courtyards with existing buildings
All lobbies and ground floor homes open onto shared gardens
A study model to test the depth and composition of the street facade
Ground floor homes open onto a landscaped play street
Residents at play in the shared courtyard
Residents at play
Old and new are united across a courtyard
An existing building prior to refurbishment
An existing building post refurbishment
New double height wintergardens and homes in converted garages frame a community garden
The residents' allotments in the shared courtyards
Play street
Technical
Appointment: 2012
Construction start: 2014
Completion: 2017
Area: 23,000m
2
Budget: Circa £64m
Form of contract: Design & Build
Client: London Borough of Hackney
Collaborators: Karakusevic Carson Architects
Contractor: Higgins Construction
Landscape Architect: Muf Architecture/Art
Services Engineer: Peter Brett Associates
Structural Engineer: Peter Brett Associates
Quantity Surveyor: Philip Pank Partnership
Planning Consultant: Tibbalds
Awards
Civic Trust Awards,
(Regional Finalist)
2019
RIBA National Award,
2018
RIBA Regional Award,
London,
2018
AJ Award,
Housing Project of the Year (Above £10m),
2018
AJ Award,
Editor's Choice,
2018
Hackney Design Awards,
2018
New London Awards,
Mayor's Prize,
2018
London Planning Awards,
Housing,
(Shortlisted)
2018
London Planning Awards,
Best New Place to Live,
(Shortlisted)
2018
Building Awards,
Housing Project of the Year,
(Shortlisted)
2018
Brick Award,
Worldwide,
(Shortlisted)
2018
客服
消息
收藏
下载
最近

















