查看完整案例

收藏

下载
Greenford Quay
London’s largest purpose-built rental community providing 2,118 low carbon homes on a rejuvenated brownfield site
Clients
Greystar
Tide
Vision Modular
Information
Location: London Borough of Ealing
Start Date: 2020
End Date: 2022
Specialisms: Build to Rent, Factory Made, Net Zero & Low Carbon, Urban Regeneration, Public Spaces, Parks & Play
Collaborators
Meinhardt
Woods Bagot
Johnson Naylor
Iceni Projects
Meinhardt
Alinea Cost Consulting
Awards
Shortlist: Pineapple Awards: Greenford, Place in Progress
Winner: CTBUH Awards: Urban Habitat Award – Greenford Quay Masterplan 2024
Shortlist: Pineapple Awards | Place in Progress – Greenford Quay 2020
Shortlist: NLA Awards | Planning (Masterplanning) – Greenford Quay 2020
Winner: AJ100 | Business Breakthrough of the Year – Greenford Quay 2017
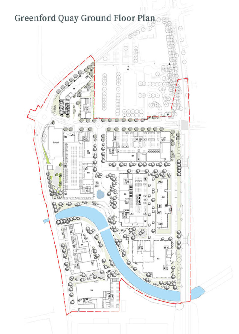
HTA’s masterplan for Greenford Quay in Ealing has transformed formerly private derelict industrial land adjacent to the Grand Union Canal into a beautiful new public space with revitalised canal frontage, overlooked by elegant buildings and low carbon homes. The mixed-use scheme will be 75% build to rent with additional private sale and affordable tenures, delivered across seven residential buildings. The ground floor levels of the buildings are given over entirely to various commercial uses to bring employment to the area and activate the streets, the buildings and the community.
One Place, Many Stories
Architecture
Benefits of modular construction at Greenford Quay
Masterplanning & Urban Design
What was the main intention for Greenford Quay?
Landscape Design
How does the landscape at Greenford Quay respond to the specific needs of the build to rent community?
Landscape Design
The derelict brownfield site needed to be stitched back into West London. How was this achieved?
Landscape Design
Maximising connections to the water
Sustainability & Building Physics
How were carbon emissions minimised across the development?
Sustainability & Building Physics
What are the benefits of modular construction on sustainability outcomes?
Communications & Engagement
What was the inspiration behind the wayfinding strategy?
Activity
Greenford Quay selected as a winner for CTBUH Urban Habitat Award
Activity
Eden Dock and Greenford Quay shortlisted for The Pineapples Awards 2025
Activity
Greenford Quay and College Road winners in this year CTBUH Awards
Activity
Greenford Quay shortlisted for Build to Rent Awards
Activity
Greenford Quay Masterplan has been shortlisted in this year’s Scottish Design Awards
Activity 50/50. HTA at 50 – Greenford Quay 2014 –
Activity
The latest block at Greenford Quay, Lyons Dock, completes
Architecture
History of the site
Greenford Quay restores a brownfield site which was closed to the public, previously occupied by Glaxo Smith Kline, who located there following the first world war.
The derelict land, acquired by Greystar in 2016, was selected on the strength of its waterside location. It had been divided into three parcels, the former factory headquarters of Glaxo Smith Kline, situated north of the Grand Union Canal, a portion of land situated between Oldfield Lane and Berkeley Avenue, and the site of the former Sunblest Bakery to the south of the canal.
Benefits of modular construction
We advocated for modular construction over a more traditional method for its ability to deliver high quality homes at a rapid pace, enabling a new community to form at the earliest opportunity.
We gained Greystar’s support for this approach, redesigning the scheme so residential modules could be factory made, this achieved a build speed 50% quicker than would have been achieved with traditional construction. Modular construction allowed new homes to be completed a year earlier that would have been possible with standard construction, despite the COVID-19 pandemic.
We have focused on the detailed delivery of specific buildings in the masterplan including Tillermans, Lyon’s Dock and Glassworks. Modular construction has had a positive impact on the quality of these buildings, and quality of place.
During construction deliveries to site were reduced by 80%, minimising noise and dust in later phases of construction.
This is important on a large masterplan where people are moving into their homes whilst further phases of the project are underway.
How can Greenford Quay inform future housing delivery in London and the UK?
Greenford Quay provides fantastic buildings that bring people together with exceptional amenities which would be hard to access in other neighbourhoods.
Whilst Greystar’s build to rent model may seem new in the current UK housing market, the concept of renting in large, well-managed buildings has established origins in the UK. The Great Estates in London, and beyond, provided popular, rented accommodation for thousands of people in the early years of the 20th Century. Inspired by this, the homes at Greenford Quay are easy to manage, convenient for city life and are generously proportioned to exceed London Plan standards.
Masterplanning & Urban Design
What was the main intention for Greenford Quay?
The key aim for Greenford Quay was to establish a new community, renting high-quality purpose-designed and well managed homes with exceptional amenities in a fantastic new neighbourhood. To gain the support needed to bring a relatively new sector to the site, we worked extensively with Ealing Borough Council, the GLA, the local community and local interest groups to deliver a masterplan that gives back to local people with a restored neighbourhood and dynamic public realm.
Landscape Design
How does the landscape at Greenford Quay respond to the specific needs of the build to rent community?
Greystar place importance on the civic life of their places, knowing that a thriving, healthy community ensures the success of their build to rent model. If people feel they belong in a place, and have made connections with their neighbours, they will want to stay. The landscape at Greenford Quay helps to overcome the often-transient nature of build to rent developments by providing spaces that bring people together.
We responded to the intrinsic features of the site, such as the Grand Union Canal, and provided character areas across the masterplan, both set within the wider landscape and corresponding to the individual buildings that were planned for the site. To reflect the need of the build to rent community, our design process focused on making space for a crowd whilst allowing someone to feel comfortable when they are alone in that crowd. This approach caters to individuals passing through the community and those who are yet to form connections. It caters for small and medium groups and for the large crowds that are drawn to Greystar’s year-round events programme.
Did you take a sustainable approach to existing buildings that could not be refurbished?
The site sloped from the north-east to the north-west and was full of buildings that were past their useful life. These were demolished and the rubble was used to level the whole site, a circular approach that diverted waste from landfill.
This allowed for large buildings without the need for awkward internal levels, creating extensive mixed-use ground floors for the local community. From the first floor upwards, this allowed us to achievesimple floor plans, rationalised to enable effective modular construction.
The derelict brownfield site needed to be stitched back into West London. How was this achieved?
A macro survey of the site informed our understanding of how the masterplan boundary sits in the wider context of Greenford, and beyond that, West London. This allowed us to create a sequence of breaks in the perimeter of the site, allowing communities to pass through the new neighbourhood.
We introduced a diagonal route, running from the southeast to the southwest encourages people to make their way from Greenford Road to Greenford Station on a walkable, traffic-free route with rich planting and stopping places. A new public square is situated along this route, with a series of water jets providing water play for families in the summer months.
A new ecological corridor has been introduced along the towpath, creating new east to west connections for pedestrians and cyclists. This has been designed in collaboration with ecologists to preserve an existing bat population.
Maximising connections to the water
The stretch of the canal that passes through Greenford Quay is a designated Canalside Conservation Area due to its industrial importance. We worked with the Canal and Riverside Trust and the project engineers to deliver the first bridge across the canal in a generation, creating a new connection across the water.
Integration of the flat bridge deck was achieved by raising the canal bank at the south side of the canal as part of the site levelling process. This level change enabled us to introduce amphitheatre seating stepping down to the canal edge, creating a venue for outdoor cinema and theatre performances. New moorings were integrated into the retaining wall of the canal, activating the waterside with its own residential community.
Sustainability & Building Physics
How were carbon emissions minimised across the development?
Greenford Quay is an environmentally sustainable development, with high building fabric efficiencies, photovoltaic panels and a centralised CHP energy centre all playing their part to minimise carbon emissions. A sustainable travel plan was created for the site catering for electric vehicles, promoting bicycle and car clubs for residents and enabling access to improved public transport options such as new bus routes and more direct routes to the tube.
How was embodied carbon reduced across the development?
As part of our evidence based post-occupancy evaluation, a recent study by Cambridge/Napier Universities shows that the modular system reduced embodied carbon by more than 40%. More buildings are in progress which will take the total of homes completed to 1500 by 2025, in less than 10 years from acquiring the site.
What are the benefits of modular construction on sustainability outcomes?
Seeing the real benefits of prefabrication, Greystar have been working with Tide Construction and their volumetric manufacturer Vision Modular Systems to embrace the sustainable benefits of prefabricated modular construction. We have worked with them to deliver 630 homes in Tillermans and Lyon’s Dock which have been fully let in just under 4 years. This rapid pace of delivery significantly reduced local disruption.
Communications & Engagement
What was the approach for introducing a wayfinding strategy on the site?
HTA Communications created a strategic wayfinding and signage strategy for Greenford, enabling people to navigate this new neighbourhood. The process involved working with the external and internal architecture, landscape, interiors, and the client team to develop a comprehensive wayfinding strategy that can evolve and grow as the buildings in the masterplan are delivered. The approach was structured around a phased implementation with a modular approach to addressing this phased delivery.
What was the inspiration behind the wayfinding strategy?
The signage design was based around a new place brand for Greenford, as an overarching place aesthetic. Each building to be delivered has a different style and characteristic, so an overarching place brand had to accommodate each of these elements alongside accommodating a developing masterplan and phased build programme. The signage is a modular system that is updated as each new building or piece of public realm is built.
Our team undertook rigorous analysis of the emerging masterplan and the visual look and feel of each emerging building. We designed the first signage with future proofing in mind, identifying all locations early in the masterplan and regularly checking the continued relevance of these locations against project drawings as each new design and construction phase began.
客服
消息
收藏
下载
最近






















































