查看完整案例

收藏

下载
Austerlitz, office building of an insurance bank
Austerlitz, office building of an insurance bank
Location
Paris
Clients
Altarea Cogedim
Team
Ateliers 2/3/4/ (architect) - Nathalie Junod Ponsard (artist - light artwork) - GV Ingénierie - Egis Bâtiment - Avel Acoustique - Systal - GESYS Ingénierie - Arcora (engineers) - Builders & Partners - Green Affair - Socotec - Gesys
Nature of the project
Offices and headquarters, Design and interiors
Program
Office building on lot A9A1 comprising a building with 8 levels of superstructure, an atrium that serves as a hall, a 20-space car park, two shops on the ground floor, a cafeteria and an Inter-Entreprise restaurant
Awards/Distinctions
Façades2Build Awards, winner in the Tertiary category and Special BIM award for the Austerlitz building.
Status
Built
Area
14 600 m²
Calendar
Completion 2017
Cost
34 M€
Sustainanble development
HQE 2011 Tertiaire Neuf Niveau EXCEPTIONNEL
BREEAM Office 2013 Niveau EXCELLENT
Label Effinergie +
Label Biodivercity Niveau PERFORMANT
Credits
©ArnauldDuboysFresney - ©WeAreContents
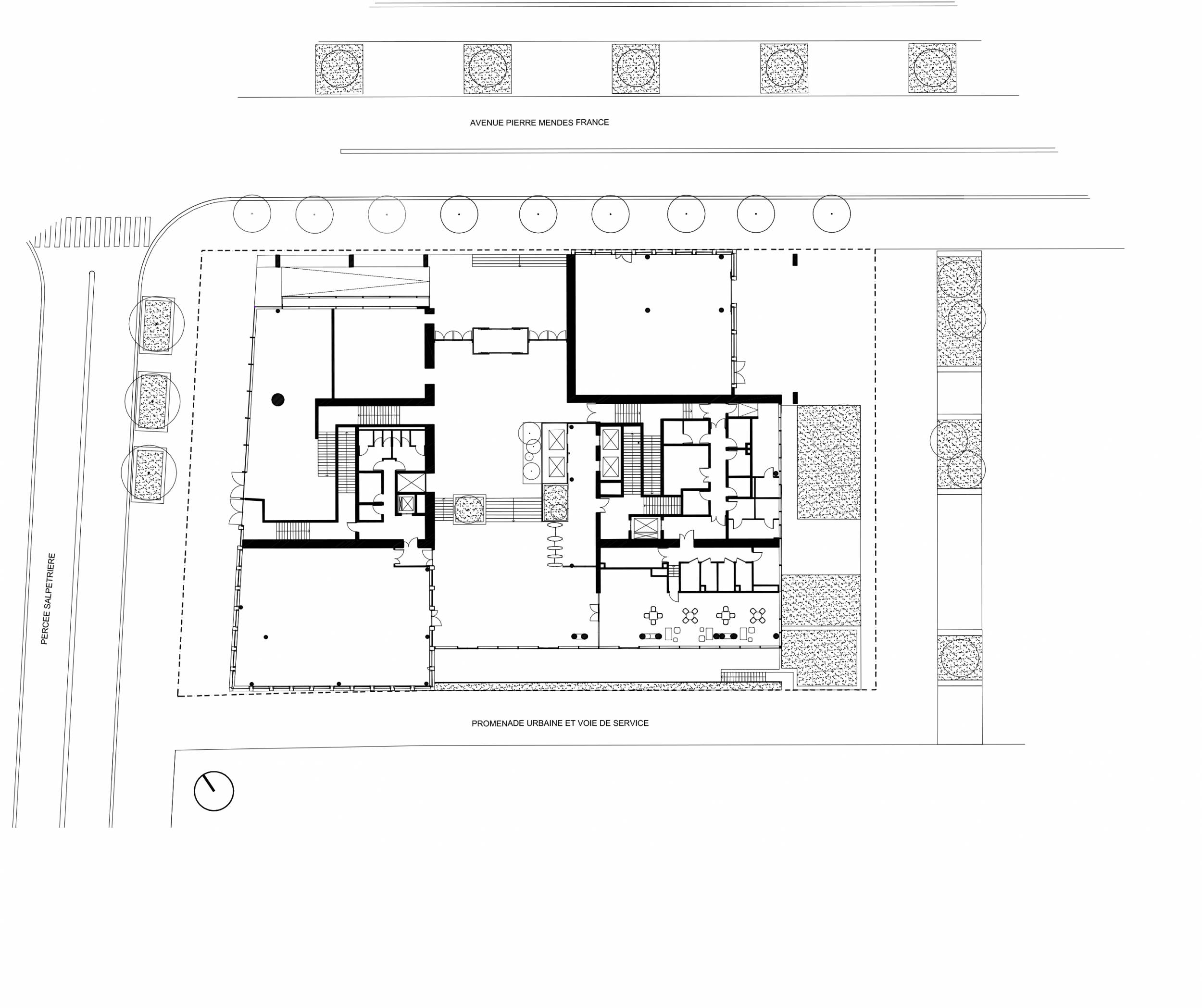
A large atrium which is both an interior garden surrounded by panoramic lifts and a foyer crossing open to the street and sky highlights the external space of the Austerlitz building, today the headquarters of a banking group.
The building sits next to the railway tracks of the station and is made of a metal frame.
Numerous terraces extend the working spaces and offer a 180° view of the remarkable Paris skyline.
Realised with Altarea Cogedim this building is emblematic of new working methods: more than a place of individual production, it is a place of meeting and exchange, open to the city, offering a new approach to mobility, flexibility, sharing and well-being.
Nathalie Junod-Ponsard’s permanent light installation: “the unfolding of light"
Interior layouts designed by Ateliers 2/3/4/
ground floor
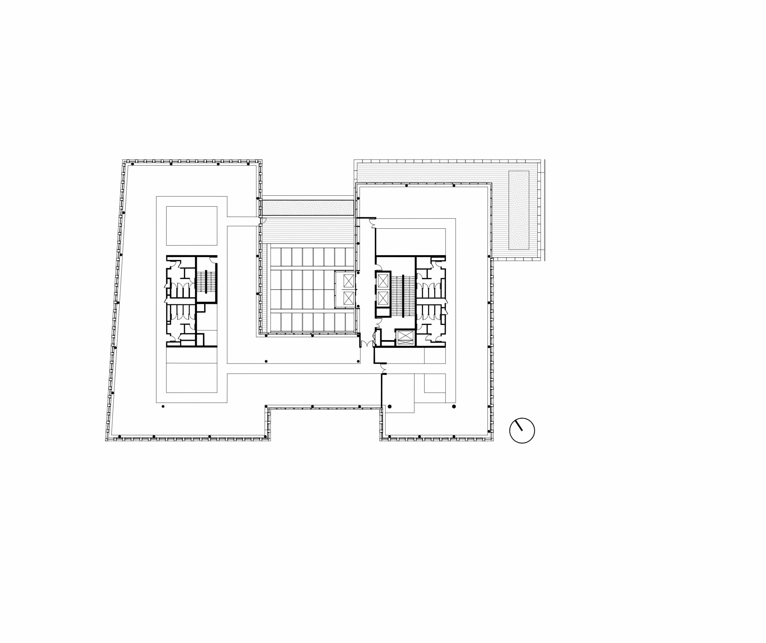
level 5
rooftop
Watch the video
film
客服
消息
收藏
下载
最近


















