查看完整案例

收藏

下载
DIY Enredadero
Programa de Codiseño y Autoconstrucción para Adolescentes - Espacios Enredadero en Centro y Retiro
Madrid, España
Fecha
01/03/2018
-
01/03/2019
Fase
Realizado
Equipo
Pezestudio.org
Colaboraciones
Manu MacGyver
Entidades
Federación Injucam, Enredadero Centro, Enredadero Retiro
Enlaces
Injucam: El enredadero
Créditos Fotos/Videos
Pezestudio.org
Proceso de Co-diseño de Infraestructuras de baile transformables para los Grupos de Baile de los Espacios Enredadero de los Distritos Centro y Retiro
Desde 2017 la Federación Injucam desarrolla el proyecto El Enredadero: una red de espacios de ocio autogestionado para adolescentes de la Ciudad de Madrid. Es un proyecto puesto en marcha gracias a la colaboración del Ayuntamiento de Madrid que financia y provee los espacios.
El objetivo es que la población adolescente canalice y concrete en acciones y actividades de ocio saludable sus intereses e inquietudes. Acompañada de un equipo de facilitadores/as y disponiendo de un local del que puedan apropiarse para pasar su tiempo libre. Además pretende fomentar el derecho de los y las jóvenes a participar en la vida pública y a disfrutar de su tiempo libre en las formas que ellos elijan fomentando hábitos saludables y el desarrollo de una personalidad propositiva y creativa.
El proyecto nace por una propuesta realizada en el Pleno Infantil y Juvenil a finales de 2015 en Madrid.
Se trasladan los fines de transformación social de la Federación Injucam y se adaptan las claves del modelo de participación infantil y juvenil a los Enredaderos haciendo que los/las adolescentes sean protagonistas y capaces de generar propuestas y de llevarlas a cabo de la manera más realista posible. Escuchando sus opiniones y destacando sus capacidades para la auto-organización o reivindicación cuando es necesario.
Dentro de las actividades de los Enredaderos de Centro y Retiro se realiza un taller de codiseño para los grupos de baile de los espacios. El programa lo diseña, coordina y ejecuta Pezestudio con la colaboración imprescindible de las personas monitoras de los espacios.
Se realizaron diversas sesiones de co-diseño y autoconstrucción:
-Sesión de presentación: Presentación de Equipo, Metodología, Espacios de Referencia y ejemplos
-Taller de sueños y necesidades: recogida de necesidades para traducirlas en sueños y deseos para el futuro espacio
-Taller de co-diseño de elementos: definición de propuestas concretas en torno a espacios y temáticas y consenso de una priorización
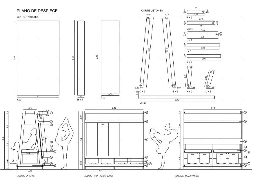
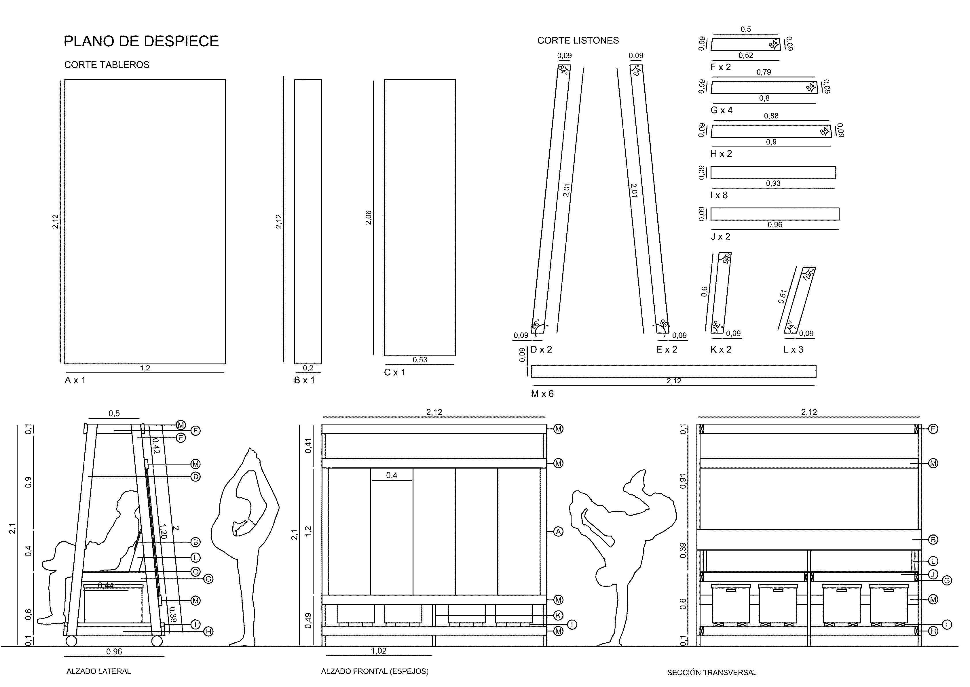
-Taller de prototipado colectivo: producción y montaje de los elementos previamente diseñados
-Apertura – celebración: presentación del nuevo espacio multiusos a todos lxs participantes del espacio
En el Enredadero de Centro y el de Retiro se diseñan dos infraestructuras base configurables con distintos usos: espejos, corchos, bancos y almacenaje. Las piezas son móviles y están equipadas con iluminación de baja intensidad.
客服
消息
收藏
下载
最近





















