查看完整案例

收藏

下载
Bellevue Arts Museum
Bellevue, United States.
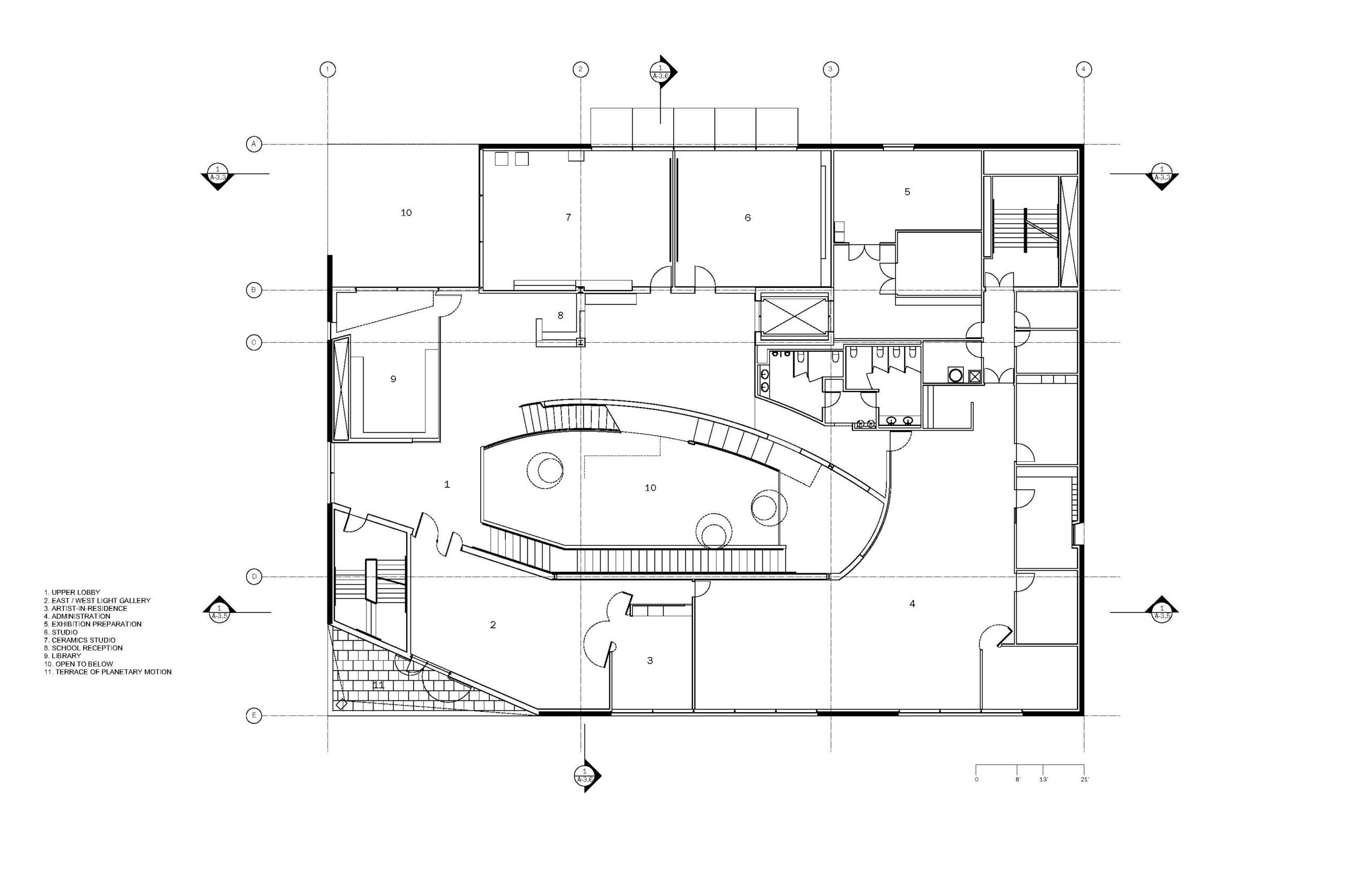
The Bellevue Arts Museum focuses on education and outreach rather than collecting. In fact the museum maintains no permanent collection but rather collaborates with local arts and educational institutions to provide innovative arts programming and changing temporary exhibitions. As an “art garage” open to the street, the museum provides a new pedestrian city scale at the center of Bellevue as well as an active workshop for new art projects.
The spirit of openness of the Bellevue Arts Museum is expressed in the three main lofts which are each slightly warped and gripped by the end wall structures. The outer walls in a special “shot crete” construction support the inner lightweight steel framework. The three distinct lighting conditions of the three gallery lofts are analogous to three different conditions of time and light. Linear Ongoing Time is expressed in the evenness of the light in the north loft. Cyclic Time has its parallel in the arc of south light gallery. Its plan geometry corresponds roughly to the arc of the sun at 48° north latitude. Fragmented or Gnostic Time is reflected in the east-west skylights of the studios loft.
TRIPLENESS (non-dialectic openness):
3 gallery lofts
3 light qualities
3 actions – see/explore/make (art, science, technology)
3 main levels
3 circulation directions
The Bellevue Arts Museum originated as an exterior experience in the street fair. In this spirit, outdoor terraces extend the museum’s top level. With sunlight and views, these terraces accommodate outdoor classes as well as exhibitions and events on summer evenings. The twilight sky will be particularly inspiring from these spaces. The open attitude of tripleness is realized in a semi-permanent exhibit program for each of the terraces
Client Bellevue Arts Museum
Location Bellevue, United States.
Years 1997–2001
Size 39,000 sq ft
Status Complete
architect Steven Holl Architects
Steven Holl (principal)
Martin Cox, Tim Bade (project architect)
Hideaki Ariizumi, Elsa Chryssochoides, Annette Goderbauer, Yoh Hanaoka, Justin Korhammer, Stephen O’Dell (project team)
associate architects Sclater Partners Architects
Alan Sclater (principal)
Brad Smith (project architect)
structural engineer Skilling Ward Magnusson Barkshire
Jay Taylor (principal)
Guy Nordenson & Associates
Guy Nordenson (principal)
lighting design L’Observatoire International
Hervé Descottes (principal)
Peiheng Tsai (project manager)
MEP design/build McKinstry Inc.
general contractor Sellen Construction
electrical engineer Sparling
acoustics Peter George and Associates
civil engineer W&H Pacific
geo-technical consultant Shannon & Wilson
Timeline
This weekend is the last opportunity to visit “Steven Holl: Making Architecture” at the Bellevue Arts Museum
October 10, 2020
Join Steven Holl and Benedict Heywood’s conversation about “Making Architecture” at the Bellevue Arts Museum
August 17, 2020
New Video: BAM Building Model Tour
August 14, 2020
客服
消息
收藏
下载
最近





















