查看完整案例

收藏

下载
Турска къща с модерен дизайн
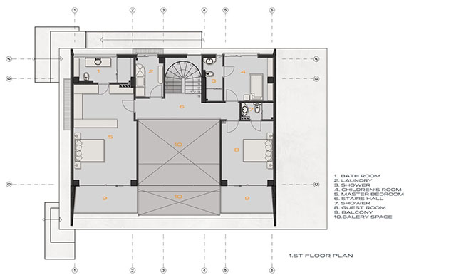
Само на 5 минути от центъра на Кайсери, Турция се намира комплекс от 4 идентични къщи с модерен визуален бетонен дизайн. Общата площ на къщата е 450 квадратни метра и лицевата част гледа към високите планини в централна Анадола. Площта на парцела за всяка къща е 1000 кв.м. , като има малък басейн пред къщата и добре оформени тревни площи.
Интериорът на къщата е доста приветлив и светъл. С огромни прозорци и в едно ниво със земята, дизайнът улавя отразяващата се светлина от водата на басейна.
客服
消息
收藏
下载
最近

















