查看完整案例

收藏

下载
Julien Joly Architecture
Maison |
House
N°7
Saint-Cloud, France
Habiter le grand paysage. Une maison sur les coteaux de Saint Cloud, un pavillon moderne et vieillissant, plusieurs fois refait, en quête d’un nouveau souffle. Les clients souhaitent investir la toiture terrasse, jusqu’alors laissée inaccessible. Le terrain est en pente, la maison est construite en souplex : le toit est le seul lieu de la maison où des vues lointaines peuvent être prises. Mais la vue à elle seule n’est pas une fin en soi. Il faut un scénario d’usages. Nous proposons d’habiter la terrasse comme un appartement à ciel ouvert. Le grand paysage se révèle d’autant mieux qu’il est confronté, comme en contrepoint, à un avant-plan domestique.
Une cuisine, un bain, une salle à manger, un foyer sont donc disposés comme autant de lieux singuliers, qui chacun entretiennent un lien unique avec les environs proches et lointains. La pierre du sol est traitée comme un tapis. Les accès, les émergences techniques, tout ce qui procède des étages inférieurs est effacé. Les lumières du ciel changeant, le vent, le soleil, la pluie et les nuages sont les éléments qui viennent hanter cette scène minérale et neutre. |
On the hillside of St Cloud, an ageing modernist house, many times refurbished, needs a new take. The clients wish to gain access to the flat roof, which has been unused until now. The upper terrace is
the only
place of the house where views toward the distant landscape can be seen.
However, a great view is not an end in itself. It must be of functional value. Our proposal is to design the terrace as an open-air apartment. Confronted by a domestic foreground as a counterpoint, the great landscape reveals itself. A kitchen, a bath, a dining room, and a fireplace is arranged on the terrace, each of them relating to the far and close surrounding in a unique fashion. The floor stone is designed like a rug. The entrances, the technical devices, everything that is related to the lower floors is hidden. The light of the changing sky, the wind, the sun, the rain are the real elements that haunt this neutral and mineral stage.
Mission |
Assignment
Commande directe
Direct command
Lieu |
Location
Saint-Cloud, France
Client |
Client
Particuliers
Private client
Surface |
Area
xx m2
Statut |
Status
Non-construit
Unbuilt
Vue 1 (image de synthèse) |
View 1 (synthesis image)
Vue 2 (image de synthèse) |
View 2 (synthesis image)
Plan de la toiture |
Roof plan
Vue 3 (image de synthèse) |
View 3 (synthesis image)
Vue 4 (image de synthèse) |
View 4 (synthesis image)
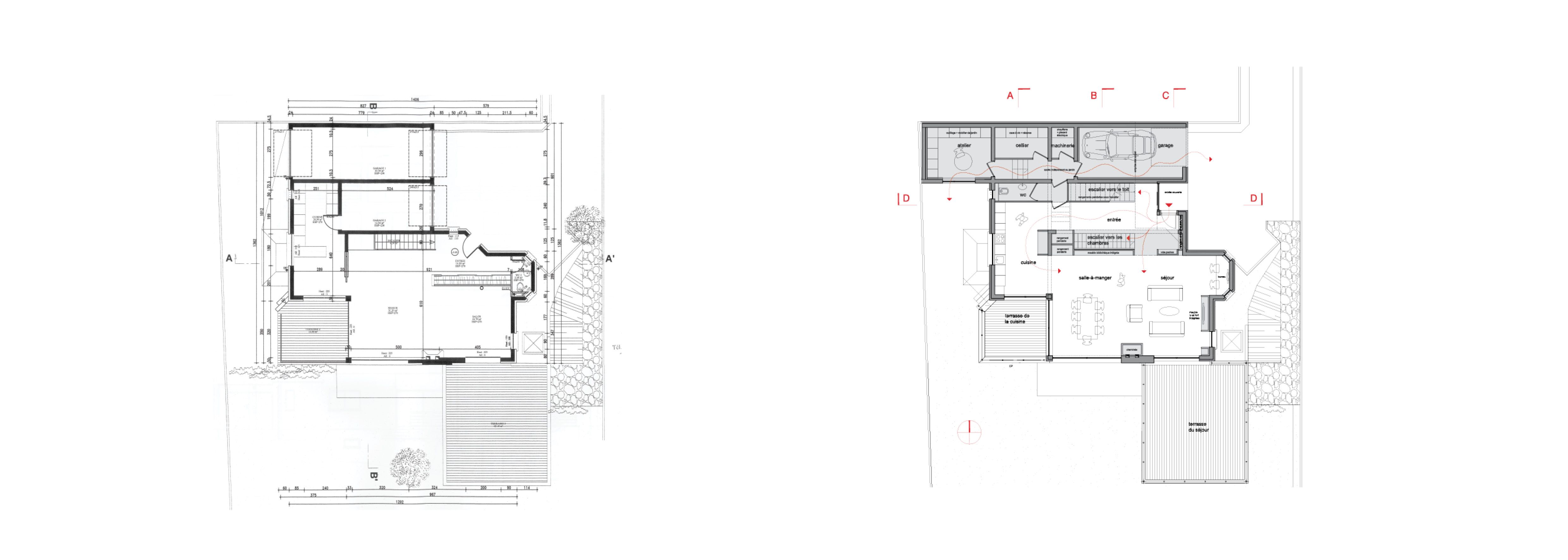
Plans RDC, existant/projet |
Ground floor plans, before/after
Vue 5 (image de synthèse) |
View 5 (synthesis image)
Vue 6 (image de synthèse) |
View 6 (synthesis image)
Vue 7(image de synthèse) |
View 7 (synthesis image)
客服
消息
收藏
下载
最近












