查看完整案例

收藏

下载
eins:eins
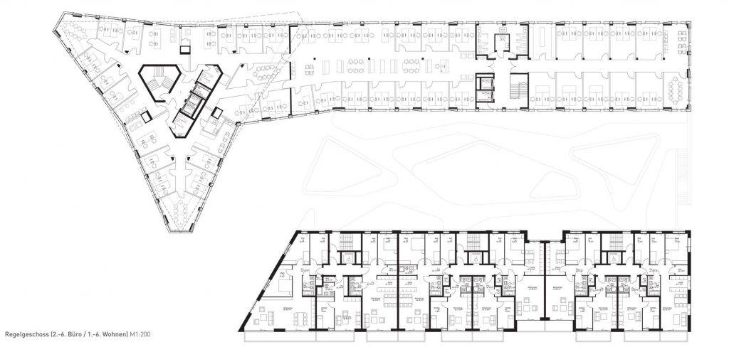
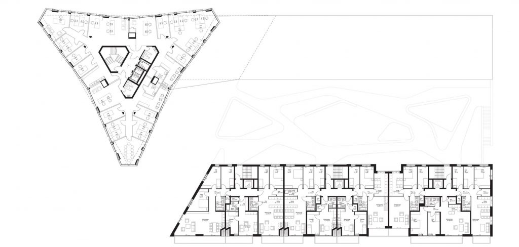
Campustower Baufeld 80
Gegenstand des Wettbewerbsverfahrens war das etwa 3.800 m2 große Baufeld 80 der HafenCity Hamburg im Quartier Baakenhafen in unmittelbarer Nachbarschaft zum Lohsepark, zur HafenCity Universität (HCU) und zur Baakenhafenbrücke.
Der prominenten Stellung des Campustowers als Auftakt- und Leitgebäude wird durch die Stärkung der Turmartigkeit, Vertikalität und der Dreiecksform Rechnung getragen. Diese Eigenschaften des Baukörpers werden mit mehreren Mitteln gestärkt: Die drei Fassaden werden konkav tailliert und so in entschiedene, vertikale Proportionen unterteilt; an den Gebäudeecken kragt das Gebäude ab dem 2. OG zu beiden Seiten leicht aus, sodass, statt einer Nullecke, eine sehr schlanke zusätzliche Fassade entsteht.
WBW 2014
Anerkennung
Planung
LPH 2 (2014)
Fläche
19.085 qm BGFa
Baukosten
30.085.000 €
Bauherr
Garbe Immobilien-Projekte GmbH
Standort
Baakenhafen, Hamburg
Team
Julian Hillenkamp, Christoph Roselius,
Julia Gooth, Oliver Lauber
客服
消息
收藏
下载
最近









