查看完整案例

收藏

下载
Bandırma 17 Eylül Üniversitesi Yarışması
Eğitim yapısı
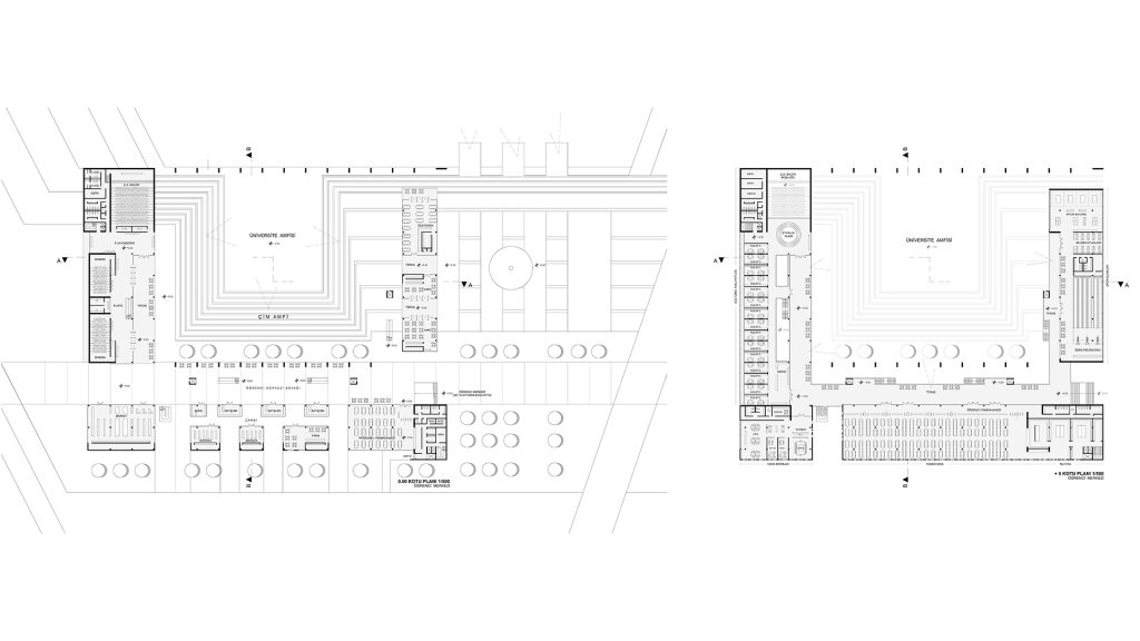
Tasarımın ana fikrini yaya, yeşil, toplu taşıma öncelikli kampüs yerleşimi olarak örgütlenmesi oluşturmaktadır. Buradan yola çıkarak yeşille iç içe geçen yaya alleleri, meydan ve meydancıklar, toplanma bir araya gelme ve “ etkileşim sağlayarak sosyalleşme” olanaklarını artırma gibi kavramlar tasarımda belirleyici unsurlar olmuştur. Kampüs kentsel yaşantının bir parçası gibi kurgulanarak işlevsel çeşitlilikleri barındıran, yapılarla avlular aracılığı ile ilişkilenmeyi sağlayan, kapalı mekan, açık mekan geçişlerini yumuşatmaya çalışan ölçekli bir yapılaşma ile ele alınmaya çalışılmıştır. Her ne kadar etaplı inşa süreci öngörülmüş olsa da, ilk aşama yapılaşmada sağlanmaya çalışılan yaya allesi ile kampüsün omurgası ve yapılaşma ilkeleri belirlenmiş olacaktır. Diğer genişleme bölgelerinin bu omurgaya nasıl ekleneceğinin kurgulanması ile birlikte toplamda oluşacak kampüs yaşantısının zenginleşmesi sağlanmış olacaktır.
İmar planında belirtilen, Çanakkale Bandırma Karayolu ile Gönen Asfaltının birleşiminde oluşturulan kavşaktan kampüsün ana girişinin sağlanması kararı verilmiştir. Böylelikle mevcut devlet hastanesinin girişinden ayrışmış bir ana giriş kapısı oluşturulabilmiştir.
Kampüs alanı olarak verilen ve yarışma alanı olarak tarif edilen alanın etrafında uygulama imar planında verili 25.00 m genişliğindeki yol korunmuştur. Sadece mevcut hastane ile mevcut rektörlük binası arasındaki 25.00 m’ lik bağlantı yolunun yayalaştırılması öngörülmüştür. İleriki dönem ihtiyaçlarda düşünülerek 1,2,3. Genişleme bölgelerindeki yapılaşmalar tamamlandığında da kullanılabilecek yeni bir taşıt çevre yolu önerisi de getirilmiştir.
Kampüs ana girişi mevcut rektörlük ile yeni önerilen rektörlük binası arasından sağlanmaktadır. Bu alan kampüsün ilk karşılama alanı olacağı için üniversite meydanı olarak tarif edilmiş ve törensel seremonilere olanak tanıması da düşünülerek tasarlanmıştır. Üniversite meydanına temsil gücü yüksek mimari karakterde ( rektörlük, kongre-kültür merkezi) binaların cephe vermesi sağlanmıştır.
Bu alandan geçildiğinde ise , dışarıdan kullanım olanağı olması nedeni ile merkezi kütüphane yapısı ile karşılaşılmaktadır. Üniversite meydanı kütüphane önünde doğu-batı aksında önerilen yaya allesi ile kesişmektedir. Üniversitenin yaya omurgası olarak tarif edilebilecek olan bu alle yeşil alanlar ve yapılar ile ilişkilenmeyi sağlamaktadır. Doğu-batı ekseninde tasarlanan yaya allesi doğu ucunda Ziraat ve Veterinerlik Fakültesi’ne bağlı tarımsal alanlar ile batı ucunda ise Üniversite Amfisi ve onu saran Öğrenci Merkezi binası ile sonlanmaktadır. Allenin güney tarafına sıralanan avlulu fakülte binaları bulunmakta kuzeyinde ise spor yapıları ve yemekhane bulunmaktadır.
yer:
Bandırma/Balıkesir
durum:
Yarışma Projesi, 2. Ödül
konu:
Üniversite Yerleşkesi
işveren:
Bandırma Onyedi Eylül Üniversitesi
Projelendirme Yılı :
2017
Proje Ekibi : ‘IK’I +’I Mimarlık, Gülcan Afacan, Bora Örgülü, Volkan Barboros, Hüseyin Öztürk, İrem İnce:
客服
消息
收藏
下载
最近


















