查看完整案例

收藏

下载
Cowboy House
Amsterdam, IJburg
Private
2008
The Cowboy House in Amsterdam IJburg is a three storey private house, designed for two graphic designers and their family. The design is strongly influenced by the aesthetics of abandoned wooden barns. The façade is characterized by rough and unfinished wooden cladding and large sliding shutters that refer to the sliding doors of a barn.
The request was to realise as many square meters for the budget as possible. Prefabricated structural elements with a very short building time were used to achieve this.
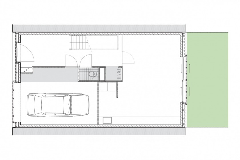
A central element at all floors is used in the interior to organize the spaces. As a large piece of furniture, this element contains doors, toilet, wardrobe, storage and service space. Long sight lines are used to experience the depth of the house and the connection to the garden and the lake.
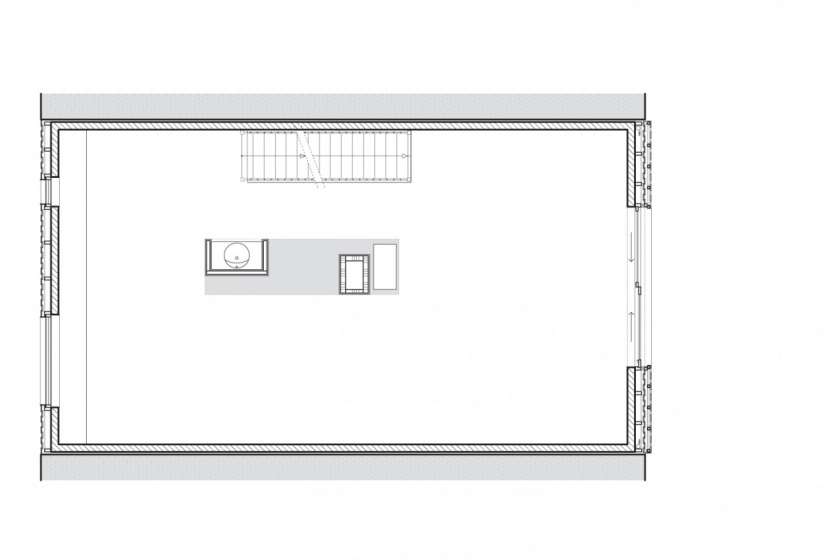
The kitchen and diningroom are linked to the garden. A garage is included on the streetside. The first floor with the living room was designed as open as possible, with only the central element to organize the space. The top floor has three bedrooms, a bathroom and service space. The biggest surprise of the house is the 60 m² (645 ft) roof terrace with a spectecular view over the IJmeer lake. The roof can also be used for solar panels and windmills.
Gross floor area
240 m²
Links
HomeDSGN
Architectenweb
Photos
Luuk Kramer
Team
Joris van Hoytema
Anouk Riehl
客服
消息
收藏
下载
最近













