查看完整案例

收藏

下载
Cultural Center
Tor Marancia
COMPETITION ENTRY
TEATRO DELL’OPERA DANCE SCHOOL AND MUNICIPAL SPACES
ROMA 2021
DESIGN TEAM:
2A+P/A (Gianfranco Bombaci, Matteo Costanzo)
LGSMA (Luca Galofaro, Stefania Manna)
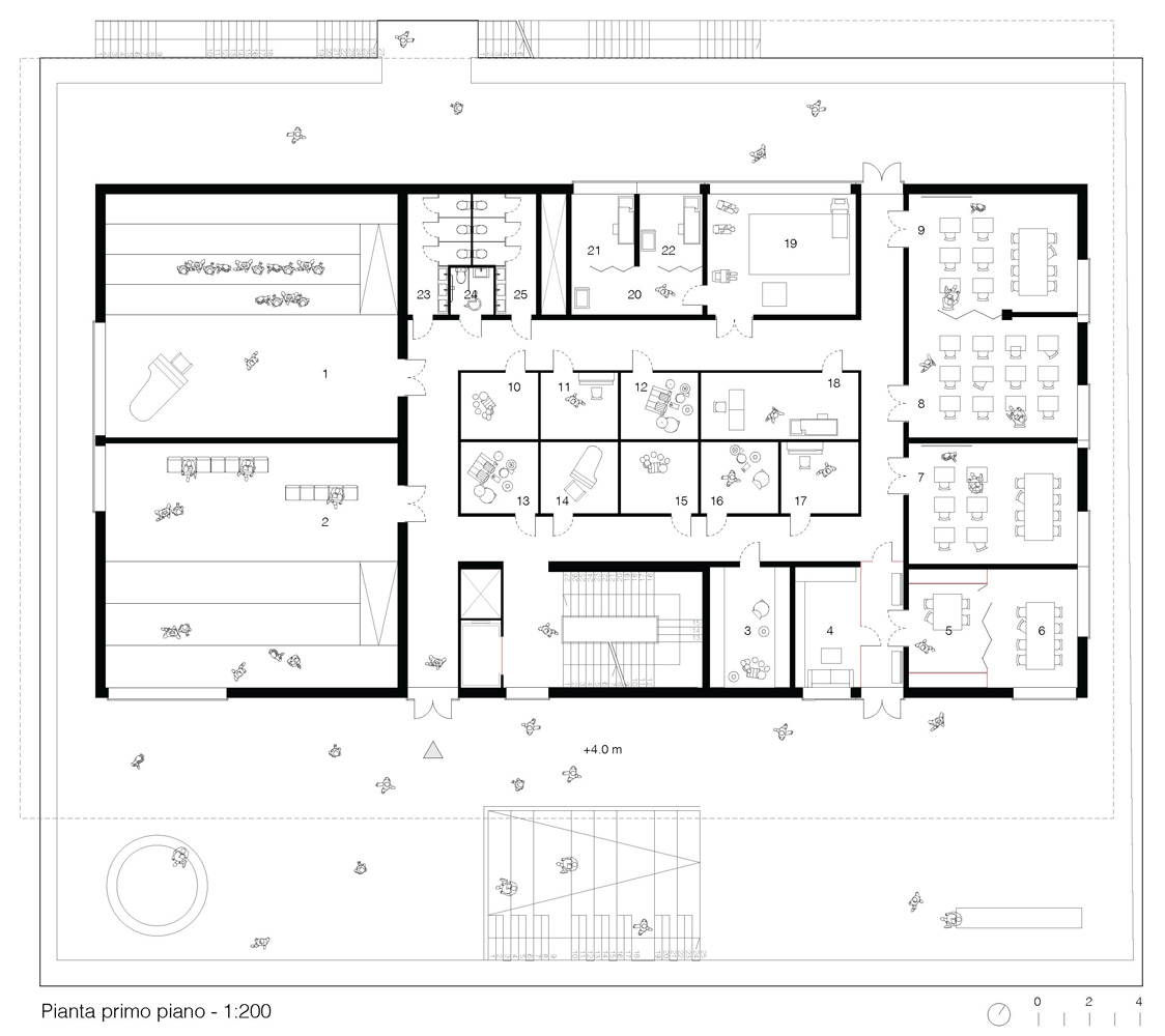
The project proposes a building organized on three overlapping levels. Each internal functional core corresponds to a open space in front. Like a majestic set on multiple levels, the building is indeed conceived as a system of terraces that overlook the natural landscape of the garden, following the natural slope of the terrain. The life of the cultural center is thus staged in a dynamic choreography given by the daily movements of the school users and the residents of the neighborhood.
客服
消息
收藏
下载
最近










