查看完整案例

收藏

下载
Innenausbau Medarium,
Sursee
Auftraggeber*in:
Medarium AG Sursee
Ort:
Sursee (LU)
Auftragsart:
Direktauftrag
Gesamtleitung Architektur:
kunzarchitekten ag, Sursee
Farbgestaltung:
Sonja Kretz, Aarau
örtliche Bauleitung:
Anliker AG Generalunternehmung, Emmenbrücke
Planung und Realisierung:
2021–2022
Programm:
Innenausbau Praxisfläche für Notfall- und Hausarztmedizin (ca. 730 m2)
Bilder:
Seraina Wirz, Zürich
Untersuchungsraum
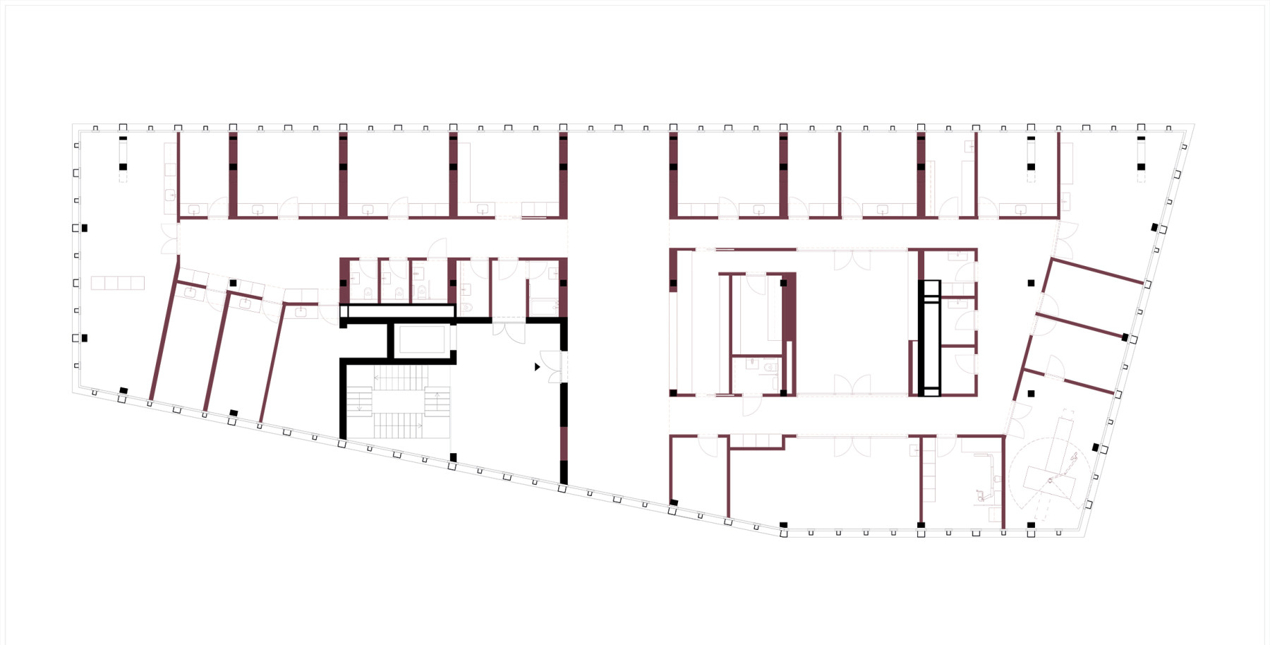
Ausgangslage Grundriss
Grundriss mit dargestellten Eingriffen
Grundriss nach Fertigstellung
Erschliessungsbereich
Pausenraum Personal
Untersuchungsraum
Pausenraum Personal
客服
消息
收藏
下载
最近









