查看完整案例

收藏

下载
St. Charles Assembly Master Plan
Client
Saint Charles Assembly of God
Description
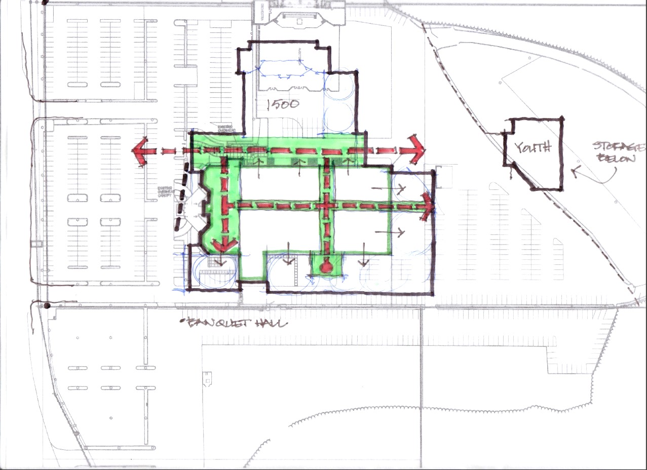
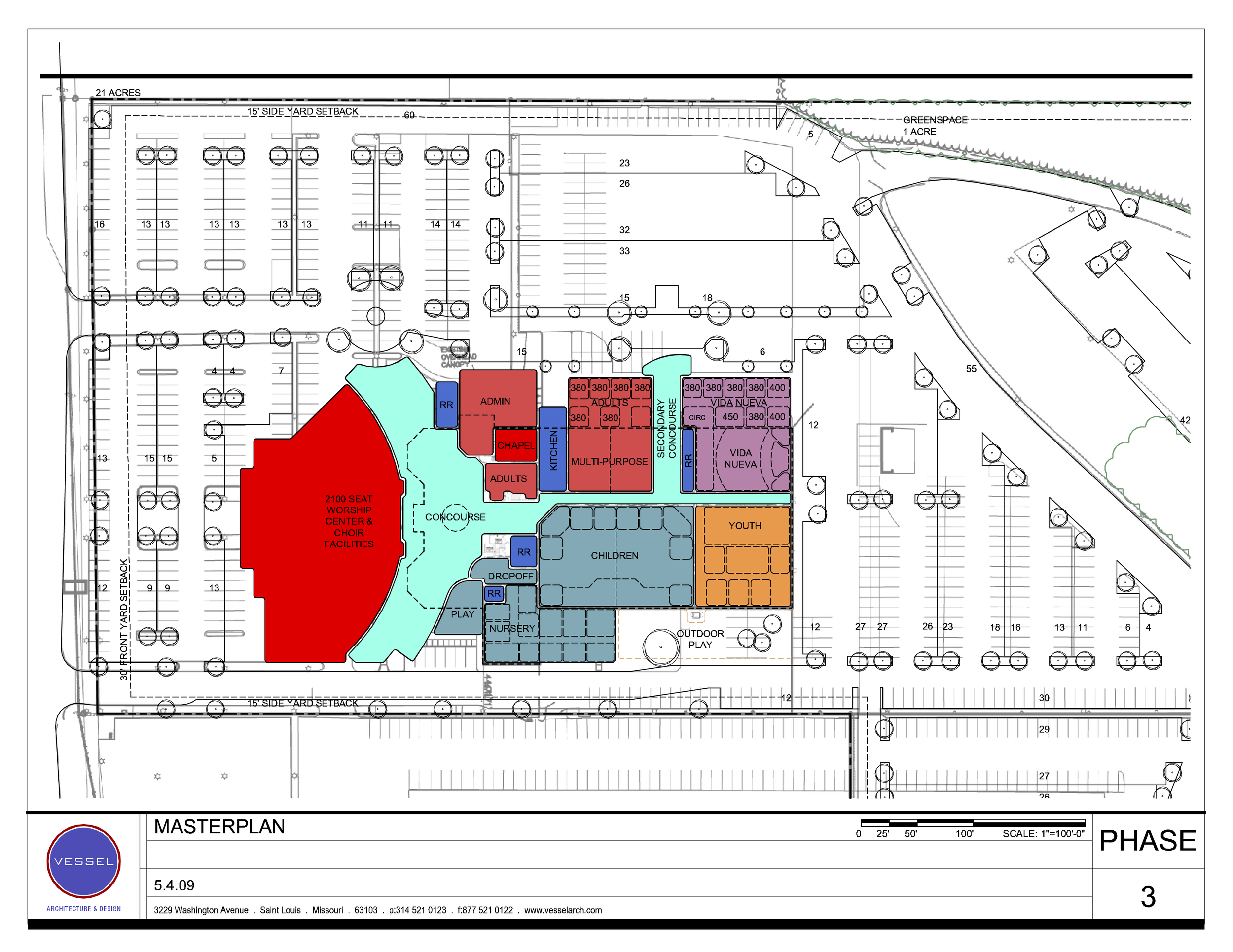
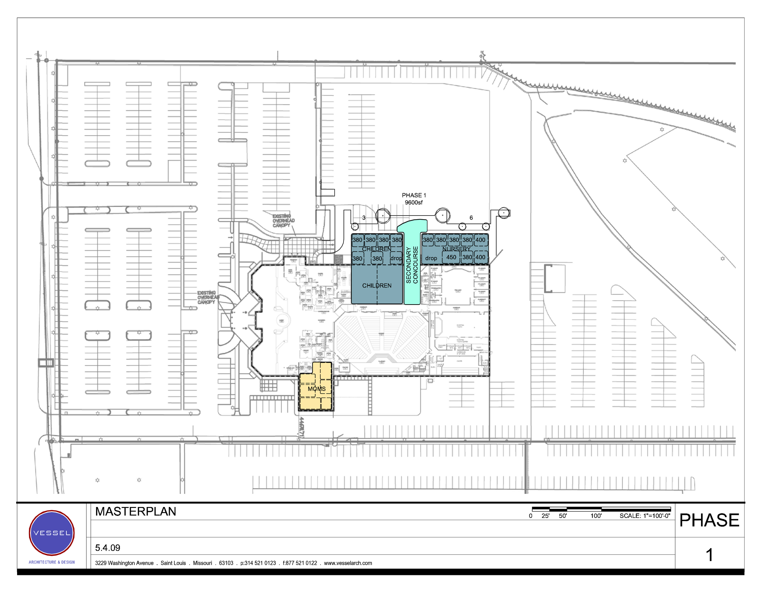
St. Charles Assembly turned to us for help with their growth plans at their prominently located campus on I-70. We took full inventory of their existing site assets and determined constraints including zoning, topography, site access, visibility, and adjacency to an important highway corridor. After that we performed a complete inventory of their extensive existing facility. This stage of the project involved worshiping with the church on Sunday morning so that we could better understand pedestrian flow and the personality of the congregation. We met with each of their ministry leaders to determine existing facility utilization and future growth requirements. The resulting Master Plan deals with ten years of anticipated growth. When God grants that growth, St. Charles Assembly knows exactly how to respond with their facility.
Program Summary
21 Acres
New Children's Ministry
New Worship Center
New Concourse to unify the campus
Separate Youth Building
Author Name
Brian Van Winkle
Architect | Principal | AIA | NCARB | Director of Architecture and Senior Living Services
Brian can't help but make his client's objectives his personal mission. This has led to early onset gray hair. Integrity, enthusiasm, and wisdom mark his work and he has a way of quickly getting to the heart of a problem and devising practical solutions. He married his high-school sweetheart and has four gregarious kids. Brian is an avid USTA 4.0 level tennis player who regularly blasts Pete off the court with sheer power.
客服
消息
收藏
下载
最近











