查看完整案例

收藏

下载
Campbell Sports Center, Columbia University New York, United States. Located on the corner of West 218th street and Broadway — the northernmost edge of Manhattan, where Broadway crosses with Tenth Avenue and the elevated tracks of the 1 subway line — the Campbell Sports Center forms a new gateway to the Baker Athletics Complex, the primary athletics facility for Columbia University’s outdoor sports program.
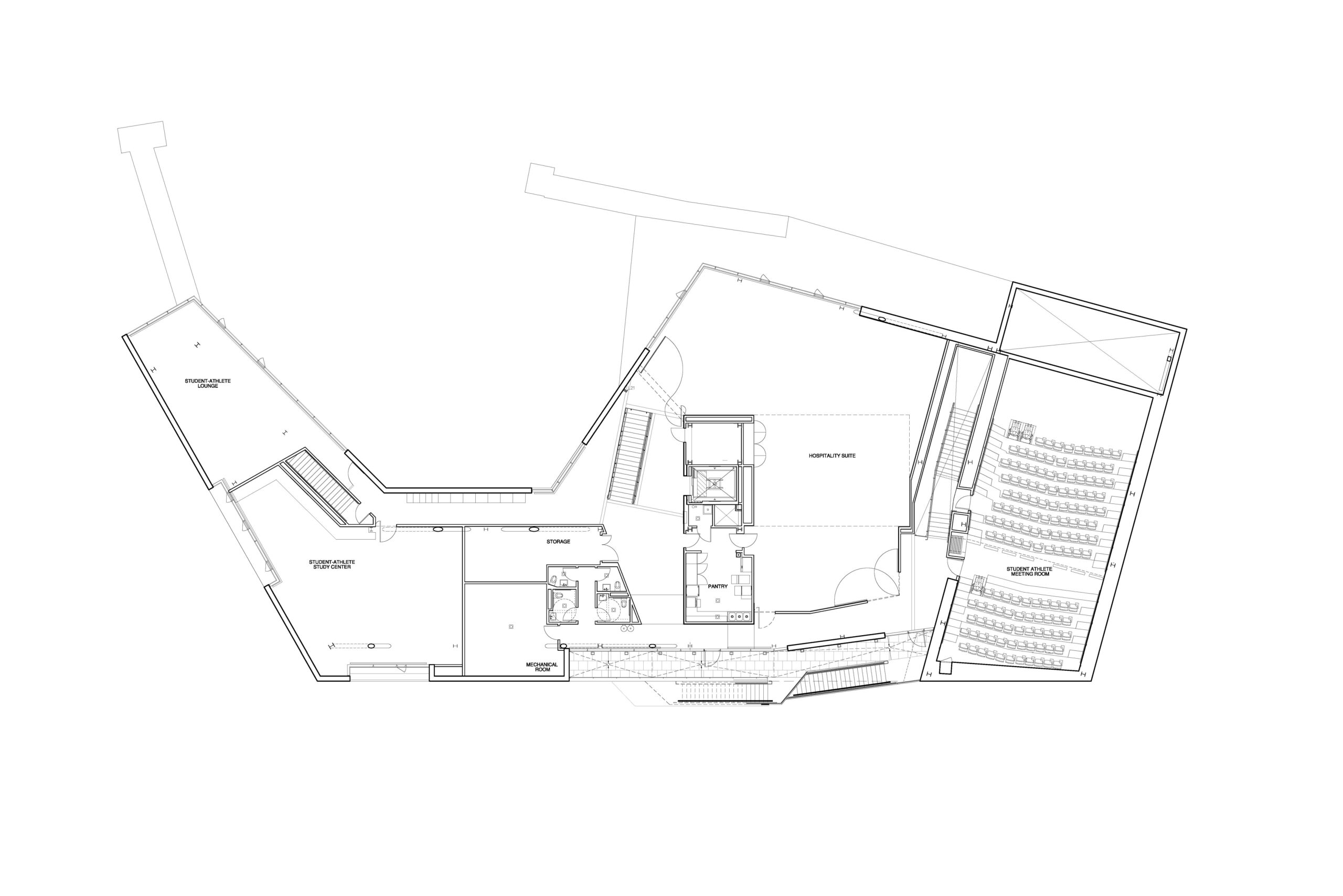
The first new athletics building to be constructed on Columbia University’s campus since the Marcellus Hartley Dodge Physical Fitness Center was built in the mid-1970s, the Campbell Sports Center is the new cornerstone of the revitalized Baker Athletics Complex and provides increased program space for the entire intercollegiate athletics program. The facility, which adds approximately 48,000 square foot of space, houses strength and conditioning spaces, offices for varsity sports, theater-style meeting rooms, a hospitality suite and student-athlete study rooms.
The Campbell Sports Center aims at serving the mind, the body and the mind/body for aspiring scholar-athletes. The design concept “points on the ground, lines in space” — like field play diagrams used for football, soccer, and baseball — develops from point foundations on the sloping site. Just as points and lines in diagrams yield the physical push and pull on the field, the building’s elevations push and pull in space.
The building shapes an urban corner on Broadway and 218th street, then lifts up to form a portal, connecting the playing field with the streetscape. Extending over a stepped landscape, blue soffits heighten the openness of the urban scale portico to the Baker Athletics Complex. Terraces and external stairs, which serve as “lines in space,” draw the field play onto and into the building and give views from the upper levels over the field and Manhattan.
Client Columbia University
Location New York, United States.
Years 2008–2013
Size 48,000 sq ft
Status Complete
architect Steven Holl Architects
Steven Holl (design architect, principal)
Chris McVoy (partner in charge)
Olaf Schmidt (associate in charge)
Marcus Carter, Xi Chen, Christiane Deptolla, Peter Englaender, Runar Halldorsson, Jackie Luk, Filipe Taboada, Dimitra Tsachrelia, Ebbie Wisecarver (project team)
construction manager Structuretone / Pavarini McGovern
structural engineer Robert Silman Associates
MEP engineer ICOR Associates
civil engineer Hirani Engineering
sustainability engineer Transsolar
curtain wall consultant W.J. Higgins
lighting consultant Wald Studio
audio/visual consultant The Clarient Group
acoustical consultant Cerami Associates
code consultant Design 2147 Limited
cost Davis Langdon
specifications Construction Specifications Inc.
precast plank Conewago
steel Weir Welding
facade fabrication Architectural Wall Systems
facade installation City Newark Glass
客服
消息
收藏
下载
最近

















