查看完整案例

收藏

下载
Проект современной бани с бассейном
Команда проекта
Площадь
102 м²
Стоимость реализации
От 8 260 000 руб.
Сопутствующие услуги
Архитектурное проектирование
Инженерное проектирование
Спроектируем водопровод, канализацию, электричество, газ и вентиляцию.
Ландшафтный дизайн участка
Озеленим и оформим участок: посадим деревья, цветы и кустарники.
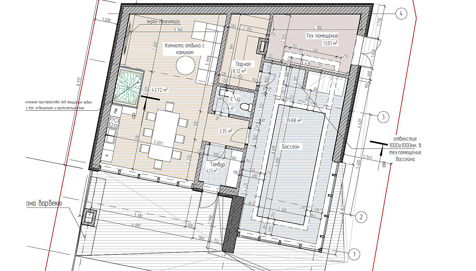
Идея возведения бани отлично подойдет для просторного дачного участка или коттеджа в черте города. Парилка – это место для встречи с друзьями. Здесь понравится находиться и с семьей. Банные процедуры укрепят здоровье и подарят приятные эмоции. Проект современной бани с бассейном у нас заказал Алексей. Строительство общей площадью 102 м² будет в городе Бутово.
Возведение и обустройство банной постройки
Над созданием такого строения работали специалисты архитектурного бюро ARXY Дениэл Белецкий и Николай Рыбаков. Они разработали проект стоимостью 408 тысяч рублей. При этом реализация задумки будет стоить 8,2 млн руб. Все продумано до мелочей. Общая площадь зонирована. Здесь разместили:
вместительную парилку;
большой стационарный бассейн;
уютную комнату для отдыха с камином и проектором.
Заходя, хозяева и гости попадают в тамбур. Из него двери ведут в комнату отдыха. В просторном помещении на 43,72 м² установлен стол, стулья для 8 персон. Здесь достаточно места для трапезы и небольшой вечеринки. В холодное время года можно разжечь камин. Он создаст особую атмосферу. Для комфорта предусмотрена уборная с санузлом.
За счет своей формы и размера парная быстро набирает нужную температуру. Из нее сразу есть выход к бассейну. Хорошенько попарившись, можно поплавать в прохладной водичке. Резервуар вмещает несколько человек. Купель для плавания можно использовать и отдельно. Водные тренировки доступны зимой и летом. Они дают возможность поддерживать себя в форме. Планировка предусматривает и наличие технической зоны под нужды владельцев.
Свет поступает через большие окна в пол. Внутри есть и электрическое освещение. В одной из стен предусмотрена стеклянная ниша с посаженным деревом. Входная группа также практична и продумана. Под накрытием разместилось место для барбекю. Оно оборудовано мебелью и мангалом. Хозяева смогут устроить интересный уикенд и насладиться полноценным отдыхом в кругу родных и друзей.
Само здание оформлено в современном стиле. Оно отлично вписывается в ландшафт. Фасад выполнен в белом цвете. Угловые панорамные окна делают здание более стильным и интересным. Кровля комплекса плоская. На нее выходит дымоход из зоны барбекю. Для отделки входной группы использовали дерево. Деревянные брусья создают нужный контраст – они светло-коричневого цвета. На участке много зелени. По ровному, подстриженному газону приятно прогуливаться босиком.
Проект современной бани с бассейном: доверьте это дело ARXY
Архитектурное бюро «ARXY» уже более 14 лет занимается проектированием и возведением построек премиум-класса. У нас можно заказать чертежи и разработку интерьера как жилой, так и коммерческой недвижимости. При разработке банных комплексов мы продумываем:
устройство фундамента, уверенно выдерживающего нагрузки;
стены с гидроизоляцией и качественной отделкой, которая переносит длительное воздействие влаги;
отопление и нагрев воды в стационарной купели;
водоотвод со всеми необходимыми инженерными системами;
поддержание оптимальной влажности воздуха;
ландшафтный дизайн дачного участка под ключ
.
При этом мы обязательно учитываем все пожелания клиентов. Банные помещения удачно сочетаются не только с местом для плавания, но и бильярдной, массажным кабинетом, небольшим спортзалом и даже с гостевой спальней. Одно- или двухэтажный дизайн-проект разрабатывается индивидуально. Менеджеры рассчитают предварительную стоимость и составят смету. В нашей команде есть дизайнеры, инженеры и строители. Благодаря этому мы сможем не только создать чертежи и подобрать референсы, но и реализовать их под ключ.
客服
消息
收藏
下载
最近









