查看完整案例


收藏

下载
湖畔奢境,因稀而贵。正如歌德所言:“显出特征的艺术,才是唯一真实的艺术。”真正打动人心的作品,往往根植于它所处的地理与文化之中,因而独特,因而不可复制。
在归家动线的每一个细节里,以现代设计的手法柔和极致的奢,重塑归家仪式感。艺术雕塑的线条感和装饰画折射的光影效果,营造出低调奢华、内在优雅的层次。
舒适是生活的非凡维度,在科技与工艺、美感与艺术氛围的平衡中创造最高品质,组合沙发带出一种日常松弛感,惊艳、优雅、弥珍。
“开合有道,张弛有度”,窗扇的开合之间,蕴藏着中国人“行藏有序”的处世智慧。270°环绕的自然景色在眼前铺展,如身处一幅流动的宏大书卷中,远处湖面波光粼粼,白日是湖水奔流的活力与壮阔,夜晚能赏城市灯火辉煌与明亮,将金银湖畔盛景尽收眼底。私家庭院,在繁华都市中独享静谧自然。
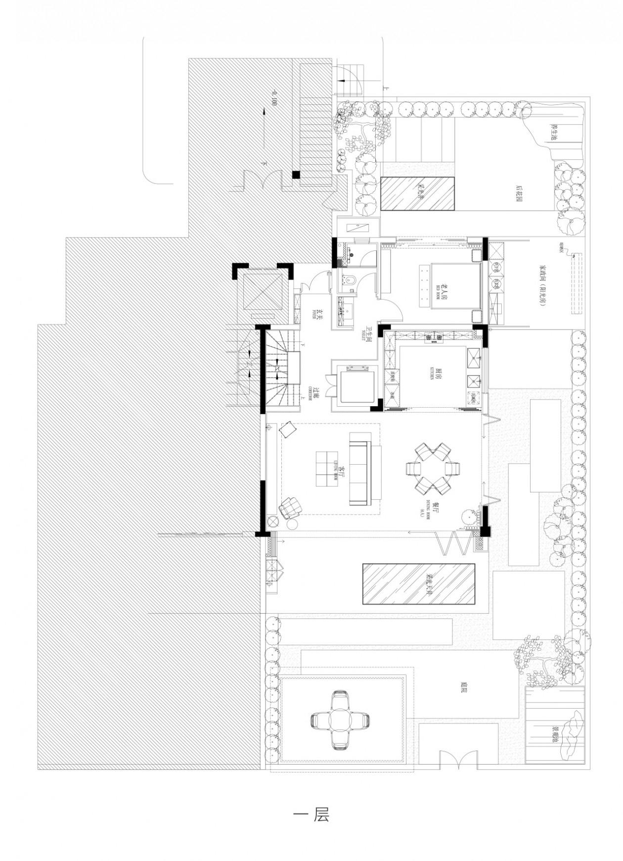
奢,不仅局限于物质的丰腴,更在于内在充盈与精神自由。多功能长型客厅、餐厅、无界联动,与室外交相融合,我们利用绿意与光影的自然流转,在优雅与高贵的对话中,演绎城市自然感奢宅。
艺术元素的穿插与构成为表,光阴流转,内里追求时空的浸润。圆形大理石餐桌优雅大气,搭配皮革餐椅,不同材质的结合运用,功能性之外,体现美丽且矛盾的个性。烛火摇曳,葳蕤生香,诉说着生活的品位。
老人房色彩克制,不张扬,却如晨曦的光,安静地散发着柔和力量。从绒面的柔软到丝绸的光泽,自然、隽永、纯粹而兼纳。
阳台不再只是晾晒的功能性附属,而是生活的“第三场所”—— 一个连接室内舒适与户外自然的缓冲带,一个让快节奏暂停、让心灵重新充电的静谧间奏。
推开落地窗,城市的脉动在远方渐次铺展,而此刻,身心却安然地沉入柔软的怀抱。米色织物、木质肌理,将繁华过滤成温润的安宁,几盏柔光,点亮理性与温情的交汇。
湖光之上,艺术与日常彼此交融,在光影里生长出情绪与仪式感。
温润的木质,盎然的绿意,让卧室空间多了些曼妙,意蕴灵动,或自由或艺术,或松弛或优雅,在同一空间中灵活切换融合。
细腻的织物,轻柔的纱帘,搭配触感温和的织物软包。每一处材质,都承载着少女房间特有的温柔与纯净。
当艺术的精神,透过空间的点点滴滴显现出来,空间便多了细节,多了深思。挑高的公共空间,曲线型的艺术吊灯,如轻盈的丝带,似流水,星星点点串联起空间的艺术氛围。
设计将艺术性和功能性紧密结合,既追求美观的外观,又注重家具和装饰的实用性,采用布艺、皮革、大理石以及贴近自然的木饰面等材质元素,将内敛美学融入到整体风格,丰富了空间的层次感彰显各种不同材质的独特质感。
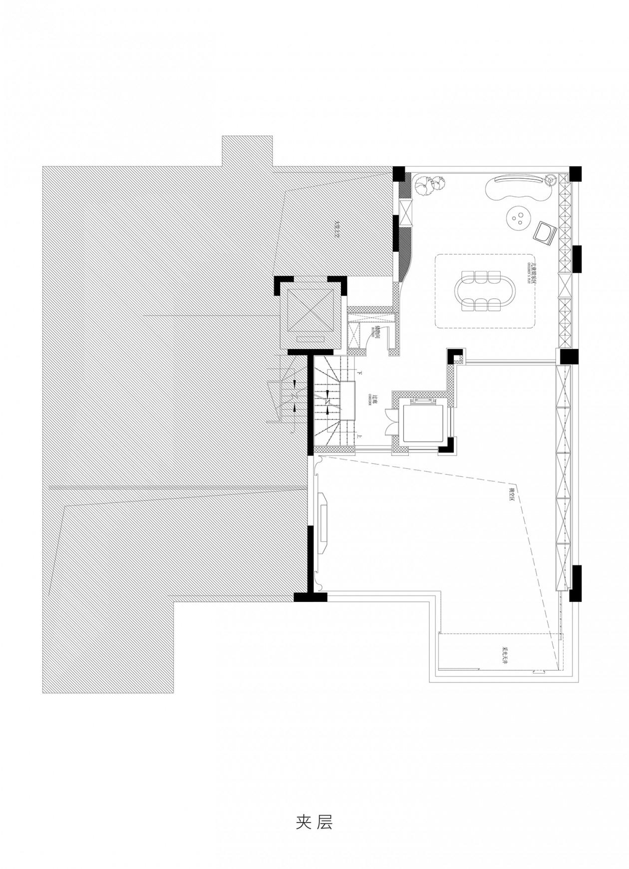
这些艺术元素打破了“功能”与“艺术”的边界,看似冲突的文化元素交流融汇,最终为过渡空间解锁了独有的“松弛感”它不再是单纯的夹层,而是可以停留、赏艺、感受生活意趣的场域,自由无界,品味独到。
地下会所空间在“现代自然”语境下,不仅是功能场所,更是一种生活态度的表达,将自然与当代艺术悄然融合,塑造出一个可游、可憩、可食的当代社交场景。
玩乐,成为成长的语言。不只是单纯释放能量的方式,而是家庭重新找回凝聚力的契机,为亲子重塑共处的温度。我们希望让每一次游戏都成为孩子自我成长的故事,也成为家庭生活的诗意注脚。
项目全名:武汉联发·向湖
项目地址:中国 湖北
甲方单位:东西湖区工发投集团
代建单位:联发集团武汉事业部
软装设计:元禾大千
硬装设计:矩阵纵横
设计时间:2025.05
完工时间:2025.08
空间面积:340㎡
特别支持:施嵩、曲明
摄影团队:白川
客服
消息
收藏
下载
最近














































