查看完整案例

收藏

下载
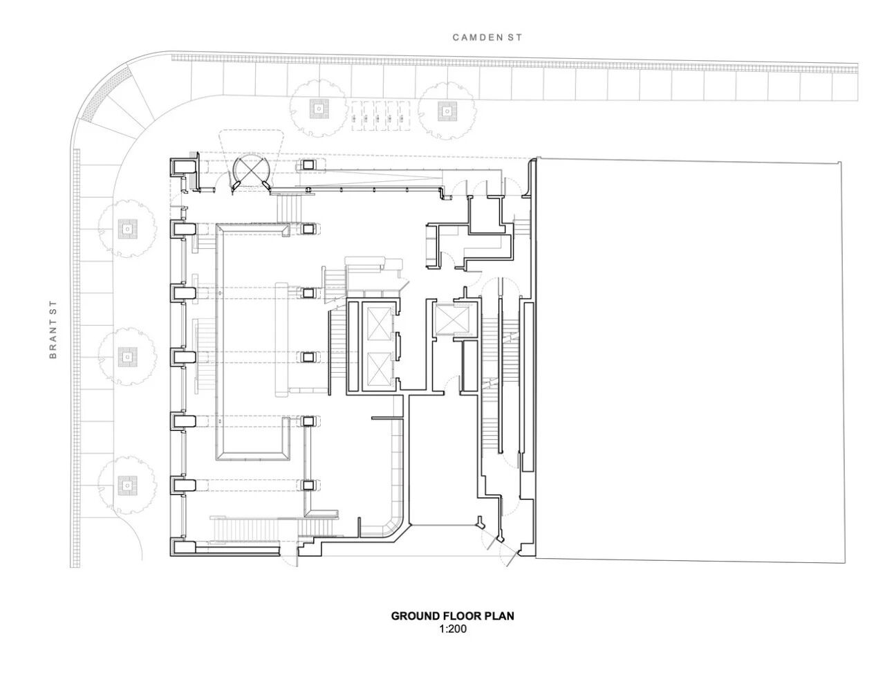
这座新建建筑由Shim-Sutcliffe在2015年受邀设计,风格保留历史建筑外貌特征。外立面采用赤褐色预制砖,令人联想到老城建造时使用的经典红砖。
与周围的建筑不同,它拥有一个舞台般的入口,由一个弯曲、几乎像书法般的顶棚覆盖,内衬道格拉斯冷杉木。通过这些方式,这座建筑在大胆与细腻之间达到了平衡;它在街景中自成一派,但又不与环境冲突。三层高的大堂坐落在一排厚实的现浇和钢边混凝土拱下,这些拱承载着整个建筑的重量;巨大的“指节”状结构像拉链的链环一样,将混凝土拱与下方的柱子连接,并将荷载传递到地基墙。橡木装饰夹层酒吧如同巨大的托盘般悬挂,通过固定在梁上的钢杆支撑起来。一楼为低层餐厅,用了最基本材料——砖地板、锤击混凝土墙以及铜壁灯。但最具冲击力的室内亮点是一件由Howard Sutcliffe创作的艺术作品:《地平线》,这件三层高的艺术装置抽象地呈现了多伦多安大略湖上光影闪烁的水面,装饰在餐厅的后墙上。
客房也特别体现出当地风情和加拿大的粗犷风格,并散发出柔和温暖的气息——得益于柔和的灯光和深红陶土色与靛蓝色的色彩搭配——与黑胶唱片的静电声与噼啪声相得益彰。
“我们希望他们感觉像是城市中的绿洲,像是树林中的一间小木屋,”负责人说。这正是多伦多艾斯酒店的独特之处:一种保护感,由柔和的光线和坚固的墙壁带来的深深安全感。这是一种罕见的奢华,即使在以奢华为导向的酒店世界中也是如此。
客服
消息
收藏
下载
最近
























