查看完整案例

收藏

下载

翻译
Architects:Splyce Design
Area:5700ft²
Year:2021
Photographs:Ema Peter
Manufacturers:Swisspearl,Schuco
Lead Architects:Nigel Parish
Category:Houses
Builder:Adisa Homes
Structural Engineer:Aspect Engineers
Building Envelope:Integris Building Science
Glazing:Atlas Meridian
City:Vancouver
Country:Canada
Text description provided by the architects. Located in Vancouver's westside on an east-west oriented site, the Yield House was designed for hosting multiple family guests throughout the year.
A concrete wall, with a cantilevered stair, is the first in a series of built layers in the landscape that define the pedestrian sequence from the road to the main entry.
Separated by 17 feet in height, the house is perched high above the sidewalk below, removed from any awkward sight lines from the street, and compromised privacy. A continuous dark band of cementitious panels defines the silhouette of the front elevation, while large glazing panels maintain a sense of light and levitation of the home. Concealed window frames and reductive detailing allow interior spaces to dissolve into the adjacent landscape and views beyond.
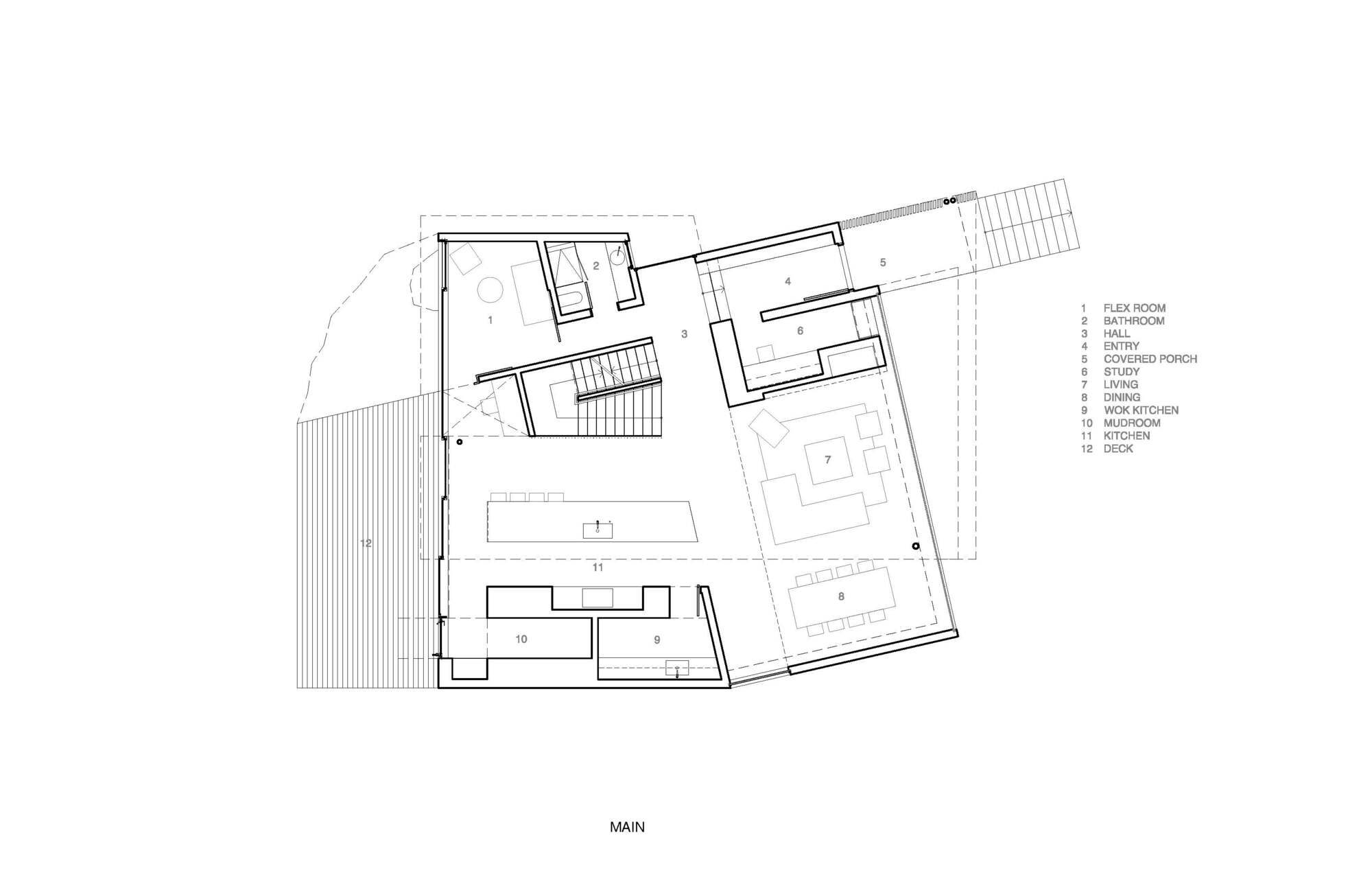
On the main floor, a north-south axis punctuated by windows on either end marks a subtle rotation in the plan towards the panoramic view and defines an informal boundary between the spaces. A timber ceiling further articulates this division and brings warmth and texture to the balance of the white palette. Large sliding glass doors open to a deck on grade at the rear of the house, enlarging the space and integrating the inside with the out. The main staircase is bathed in a continuous yet ever-changing quality of light from the skylight/roof deck access above and the tall window to the west, framing views of the cedar and fir trees in the near distance.
The interior is kept deliberately quiet in its materiality and formal layout. The main social spaces are grouped as one - kitchen, dining, and living, while other supporting spaces are discreet, yet connected - a prep kitchen is accessed by a door disguised as part of the kitchen millwork, while the mudroom is tucked conveniently behind the main kitchen. Other informal spaces are intended for retreat and solitude, but not as a total departure from the overall. A home office hides behind the main living room wall, and a library with a seating nook consumes the upper floor stair landing.
Project gallery
客服
消息
收藏
下载
最近

























