查看完整案例

收藏

下载

翻译
Architects:Vessu Collaboration
Area:450m²
Year:2025
Photographs:THANAWATCHU
Lead Architects:Pruek Lertsrimongkol
Category:Houses
Lead Team:Pruek Lertsrimongkol
Design Team:Waruth Kleebpathum, Supawich Pongdara, Ratchapong Pandecha
City:Bangkok
Country:Thailand
Text description provided by the architects. Verdure Villa sits quietly in the heart of busy Bangkok, surrounded by a dense concrete landscape yet intentionally crafted as a serene retreat where nature and spirit take precedence over the chaos of the city. The design began with a simple question: How can a family home in Bangkok feel like a sanctuary? This guiding idea shaped every move—from orientation to materiality—resulting in a house that offers greenery, calm, and moments of introspection within an otherwise intense urban setting.
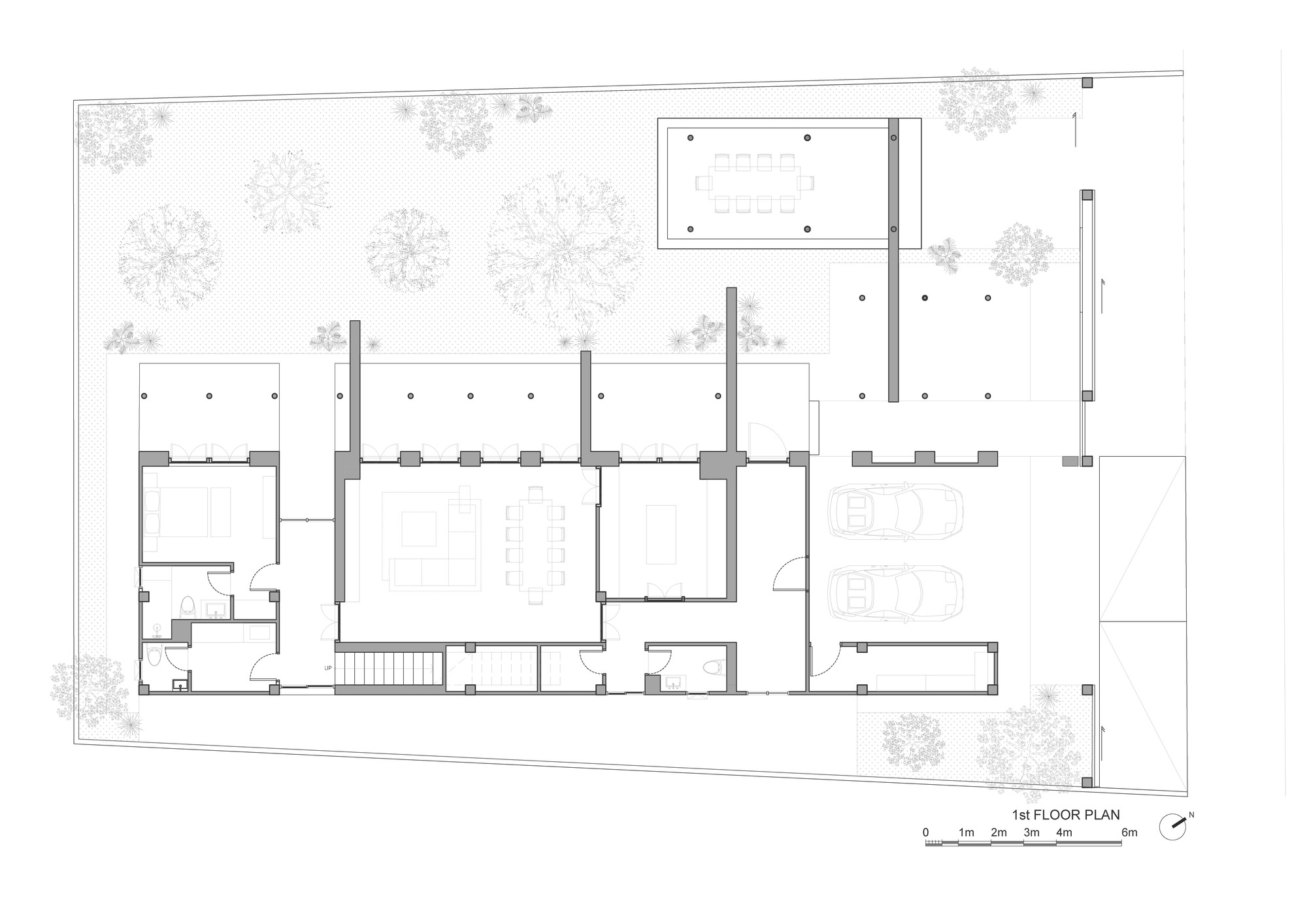
One of the project's core challenges was the limited plot size. The ambition for every room to face a garden required an efficient spatial configuration that could also shield the home from Bangkok's noise and density.
The parking area is therefore placed at the front, forming a protective buffer from the street. Upon entering, the sequence begins with the main kitchen, acknowledging everyday routines and offering a convenient drop-off point for groceries. This leads into an open-plan living and dining area defined by soft daylight, breezes, and framed views of the landscape. All circulation passes through this central space, encouraging natural interaction among family members and ensuring that daily movement enriches the life of the household.
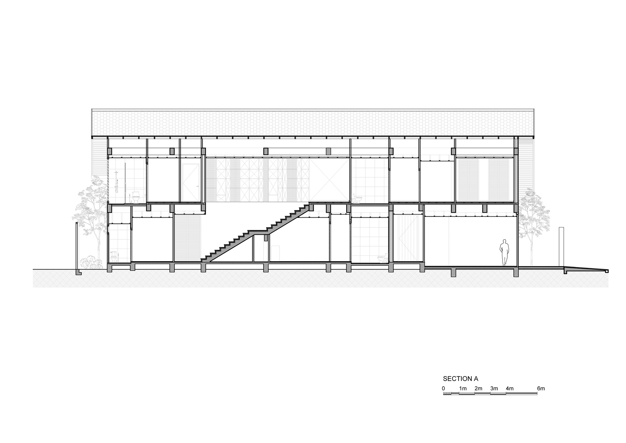
The two-storey layout places one flexible bedroom on the ground floor for potential elderly use in the future, while the upper level contains individual bedroom wings—each oriented toward the garden for privacy and a consistent connection to nature. Beyond the interior, the landscape extends the home's sense of retreat. A small garden pavilion, or sala, sits quietly among the greenery, offering a contemplative outdoor room where residents can read, dine, rest, or host intimate gatherings. The pavilion reinforces the project's intention to truly live with the garden, not merely view it.
Materiality anchors the villa in warmth and craft. Though its structure is formed from ordinary brick and concrete walls, the character of the home comes from its timber floors, round columns, windows, and reclaimed vintage doors sourced from an old school. Rooted in Thai vernacular simplicity, these elements are shaped through traditional craftsmanship interpreted with modern precision. Inside, a curated mix of antique furniture, handcrafted objects, and vibrant artworks lends personality and a lived-in sense of timelessness.
Verdure Villa becomes a sanctuary where old meets new, nature softens the city, and craftsmanship shapes a home that feels grounded, poetic, and enduring—an urban retreat made complete by the garden and the pavilion that invites daily connection to it.
Project gallery
客服
消息
收藏
下载
最近












































