查看完整案例

收藏

下载

翻译
Architects:ZW/A zweyacker & associés
Area:507m²
Year:2025
Photographs:Sandrine Iratçabal
Manufacturers:Technal,Algaflex,Arcelor Mittal,Soprema
Category:Mixed Use Architecture,Elementary & Middle School,Community
Lead And Design Team:ZW/A zweyacker & associés
Project Management:ZW/A
Engineering & Consulting > Structural:BET Escaich
Engineering & Consulting > Mep:BETEL
Engineering & Consulting > Other:IDR - Integrale De Restauration
City:Trensacq
Country:France
Text description provided by the architects. In Trensacq, a small village in the Landes de Gascogne region (France), two public facilities are situated at the edge of the forest: a multi-purpose hall and an elementary school.
In this rural area, preserved from noise and bustle, the architectural intervention calls for a restrained, contextual proposal — attentive to both uses and landscape. The project also aims to address the challenges of revitalizing social connections and maintaining public services.
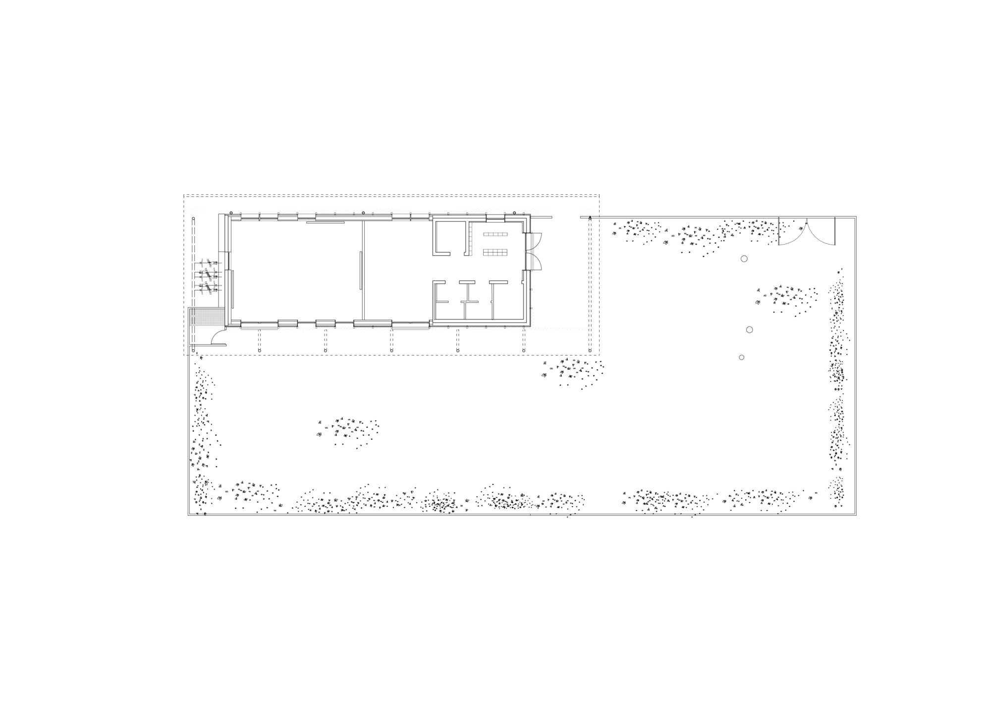
The design establishes a new focal point for the community: a structuring public hub near the town hall, combining two essential spaces of the collective life, a modular multi-purpose hall for associative and festive activities, and a single-classroom school, envisioned through the eyes of a child.
The project draws inspiration from the traditional aerial model of the Landes region—organic clusters of simple volumes, surrounded by pines and oaks, characteristic of the area. Simple forms, free placement, covered galleries, and local materials extend this vernacular logic into a contemporary reinterpretation, which also meets modern challenges: energy efficiency, thermal performances, and environmental sustainability.
The use of wood, sourced from nearby forests, structures both buildings and is prominently displayed on the facades. This choice reflects a desire for simplicity and local rootedness, celebrating an identity and authenticity cherished by the community.
The multi-purpose hall offers a fluid, horizontal space, open and integrated with the landscape. The school, on the other hand, adopts a more compact and protective architecture, designed to teach children how to inhabit a place and a landscape.
Together, the two buildings embody an architecture of proximity, regenerative, educational, and sustainable, at the service of the vitality of a rural territory and its inhabitants.
Project gallery
客服
消息
收藏
下载
最近


















