查看完整案例

收藏

下载

翻译
Architects:FAAM Office
Area:1200m²
Year:2023
Photographs:Arash Akhtaran
Lead Architects:Shahram Farjadian - Sahand Mosallaei
Category:Apartments
Technical Team:Majid Masrour
Design Team:Mohammad Banan
City:Shiraz
Country:Iran
Text description provided by the architects. The main concept of this project is "Continuity," which is formed from the external body and continues to the interior. The nature of this project is not formed just from the extension of a unique form but from the multiplication of a basic element in architecture, which is the "wall." These thick and pure walls are made from the vertical arrangement of Basalt stone ingots that form the project from the entrance to the roof garden and Project skyline, and eventually the whole body. These walls are cut in specific borders of the combination of the facade layers, architectural plan, and structural construction.
Meanwhile, the structural elements and facade columns are hidden inside these walls. between this separated façade, the natural light of interior spaces, and the appropriate connection with the exterior scene is materialized. Finally, with the extension of these walls into the depth of the project, space arrangement and Indoor arenas are shaped.
In this project, the balcony is the specific point of the exterior body and the interior space. In other words, the separation of eastern and western bedrooms is no longer limited to just the solid walls of a traditional balcony. This significant balcony, like a glass box, provides suitable light and view for bedrooms and family living rooms.
Moreover, a shrub is located in its center in order to convey a distinctive feeling. In the extension of the north balcony and along the middle axis of the house, the living room and kitchen are placed. The function and proportion of these spaces are in coordination with the Pieces of basalt walls from the other arenas of the plan.
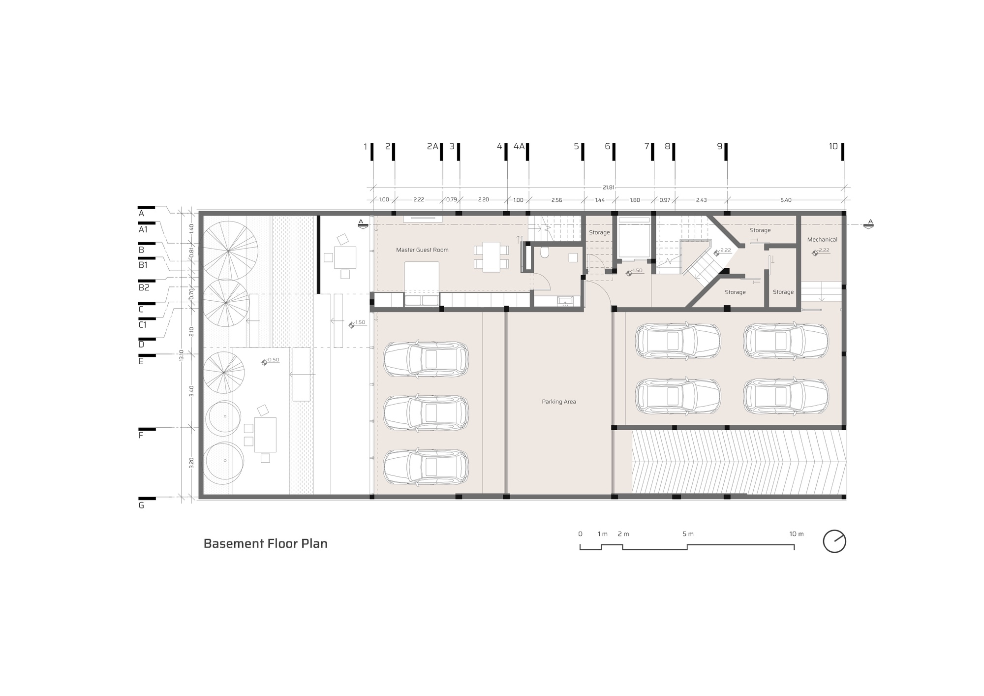
Indeed, the effects of these walls can be seen in public spaces such as the lobby, parking, backyard, staircase, and roof garden. Besides, in each space, nature and the independence of materials are preserved. In the interior spaces, furniture, materials of closets, and cabinets are made of Elm wood to create a warm atmosphere alongside the cold and neutral color of Basalt stone.
Project gallery
客服
消息
收藏
下载
最近

































