查看完整案例

收藏

下载
自然与消隐
在建筑与空间的场域里,界限本是定义秩序的标尺,却也常成为桎梏体验的藩篱。本空间从内部与外部的界限、完成与未完成的界限、新与旧的界限三个维度,解构固有边界,重塑空间的呼吸感与生长性,让办公场景在消融的边界中,衍生出功能与精神的双重弹性。
| 项目图纸
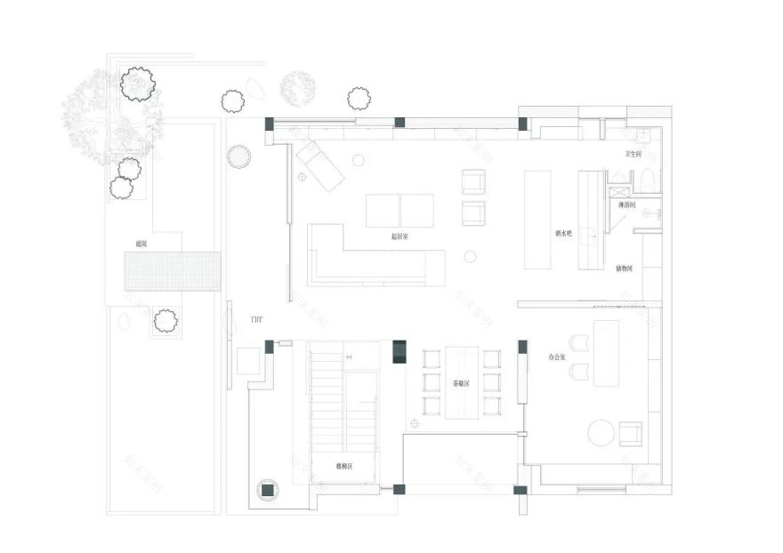
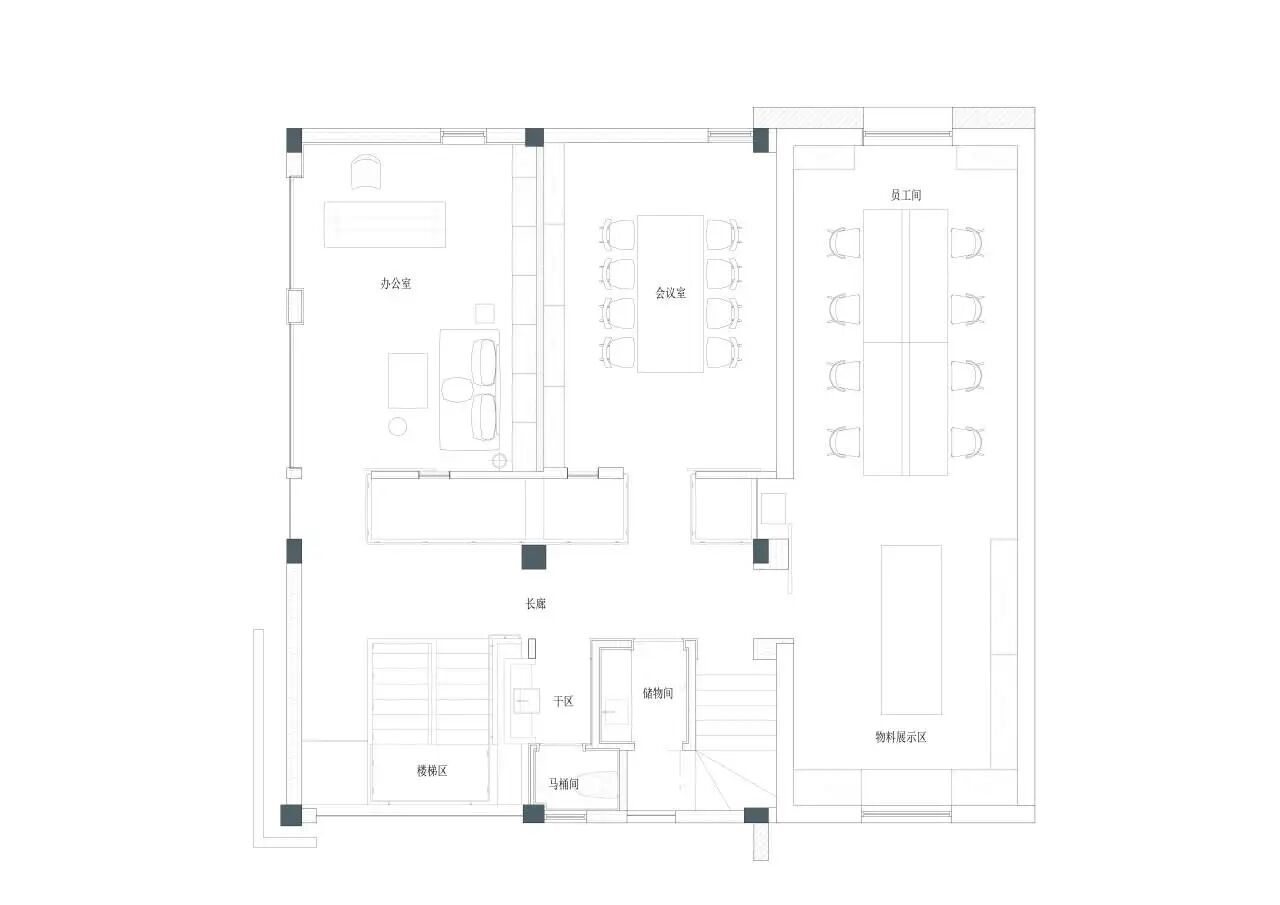
1F、2F平面图
内部与外部
在通透与围合间,让自然成为空间的底色
建筑的一层接待区与二层办公区,皆以“消弭室内外边界”为设计起点。一层接待区采用大面落地窗,将街道的树影、天空的晨昏纳入空间,室内外的光线与景致自由穿梭;户外砾石景观带与室内地面材质的渐变衔接,模糊了建筑与环境的物理边界,让来访者在踏入空间的瞬间,便感知到自然与人工的共生。
二层办公区的天窗与侧窗组合,既引入了充足的自然采光,又让办公者在抬眼间能捕捉到天空的云卷云舒;局部的玻璃栏板设计,让上下层空间形成视觉对话,进一步弱化了“室内盒子”的封闭感。这种对室内外界限的消融,并非简单的“开放”,而是通过材质的延续性(如室外石材与室内地面的呼应)、景观的渗透性(室内绿植与室外树木的视觉关联),让自然成为空间的有机组成,为办公场景注入松弛与活力。
完成与未完成
在确定性与可能性间,预留生长的缝隙
空间的“完成”从来不是静态的终点,而是动态生长的起点。设计中刻意保留了“未完成”的痕迹,以模糊“完成态”的刻板界限。
混凝土结构的粗犷肌理被部分裸露,其浇筑的痕迹、粗糙的质感,与周边精致的金属、温润的木饰面形成对比,这些“未修饰”的构造,既是建筑结构的真实表达,也为空间留下了“可生长”的叙事接口——未来的装置艺术、员工创作都可成为其“完成态”的一部分。
功能区的划分并非以“硬质墙体”强界定,而是通过材质的渐变、高差的微妙过渡来实现。例如接待区与休闲区之间,仅以地面材质的拼接和微小的标高变化暗示边界,既保证了功能的相对独立,又让空间在视觉与体验上保持流动,为办公模式的迭代(如临时会议、创意工作坊)预留了弹性。
这种“完成与未完成”的界限模糊,是对空间“确定性”的温柔反叛,它鼓励使用者参与到空间的“完成”过程中,让办公空间从“设计师的作品”转变为“使用者的共建场域”。
新与旧的界限
在时间的维度里,对话过去与未来
设计活动并非对“新”的单向追逐,而是让“新”与“旧”在空间中对话,模糊时代的割裂感。从建筑外部的现代几何形态,到内部保留的建筑结构痕迹,新旧元素在材质、形式上形成对话:金属的冷冽与木材的温暖碰撞,现代主义的简洁线条与复古家具的经典造型呼应。
二层办公区的复古风格家具,与现代感的玻璃、金属办公系统并置,既为空间注入人文温度,又以“时空叠加”的叙事,消解了“新即现代,旧即过时”的二元对立。这种“新与旧”的界限消融,让空间超越了“时间的单一维度”,成为承载历史记忆与未来想象的容器,为办公场景赋予厚重的人文质感与持续的生命力。
“模糊的界限”并非对秩序的消解,而是对空间可能性的拓展。当室内与室外、完成与未完成、新与旧的边界逐渐消融,办公空间便不再是一个功能单一的盒子,而是一个充满呼吸感、生长性与人文温度的生态场域——在这里,工作不再是刻板的任务,而是自然与艺术浸润、历史与未来对话、个体与集体共生的多元体验。
项目信息
项目名称:云至川合办公室
设计范畴:建筑设计、室内设计
项目地点:江苏,常州
项目面积:300 平方米
设计时间:2024年6月
落地时间:2025年7月
设计机构:云至川合设计工作室
主案设计:张剑男
项目摄影:生辉
张剑男 云至川合设计工作室联合创始人 纸水设计工作室联合创始人 扬州市室内设计学会副会长
荣获奖项
意大利A DESIGN设计大奖银奖;法国INNODESIGN PRIZE国际创新设计大赛银奖;红棉中国设计奖-室内设计奖;设计本年度盛典最佳餐饮空间奖;芒果奖中国人文设计大赛商业创意奖;红棉中国设计奖-室内设计奖;金堂奖杰出作品;IDS国际设计先锋榜银奖;台湾金邸奖提名奖;艾特奖江苏赛区金奖;中国新商业空间大奖;上海国际设计周新锐中国设计奖;金外滩最佳商业空间大奖;金外滩优秀餐饮空间大奖。
云至川合设计事务所成立于2024年,坐落于中国常州。
编辑:叶青宵
客服
消息
收藏
下载
最近



















































