查看完整案例

收藏

下载
一块平坦的体量安置在一片农田之上,所在的山谷布满葡萄园,四周由岩石山丘环绕。其修长的比例中,容纳着一个更为狭长的内院,朝向日出与日落的方向。内院被一条狭长的泳池占据,水面的闪烁光影为周围的所有房间注入生机。住宅呈现出一种克制而直接的空间序列,同时又在行进中营造出迷宫般的体验。
▼ 铅笔模型草图,Pencil model sketch © Pezo von Ellrichshausen
A flat piece rests on a farmland, on a valley populated by vineyards, framed by rocky hills. Its elongated proportion contains an even narrower courtyard, oriented to the rise and setting of the sun. The courtyard is occupied by a long swimming pool, whose sparkles animate all the rooms around it. The house has a bare sequence of spaces, while also promotes a maze like feeling.
▼ 场地中的住宅鸟瞰,Aerial view of the house in the landscape © Pezo von Ellrichshausen
▼ 外观概览,Exterior overview © Pezo von Ellrichshausen
▼ 主立面,Main facade © Pezo von Ellrichshausen
入口空间的严格对称性——每一个角落均设置了等同的圆形房间——在一处几乎难以察觉的室内与室外过渡中被打破。住宅的水平延展显著地抬升于自然地形之上,既可被理解为一圈供无尽行走的连续房间,也可被解读为两种字母形态(T 与 U)之间的一次虚构相遇。建筑本身,仿佛正是对这一幻象的沉默确认。
▼ 置于场地中的模型,Site model of the house © Pezo von Ellrichshausen
▼ 模型概览,Model overview © Pezo von Ellrichshausen
▼ 模型顶视,Top view of the model © Pezo von Ellrichshausen
The strict symmetry of the entry rooms, with equivalent round quarters in every corner, is interrupted by an almost imperceptible transition from interior to exterior. The horizontal extension of the house, noticeably elevated from the natural terrain, can be understood like a ring of rooms for an endless movement but also like a fictional encounter between to alphabetical figures (T and U). The building seems to be the silent confirmation of that illusion.
▼ 室内概览,Interior space overview © Pezo von Ellrichshausen
▼ 室内与室外的微妙过渡,Subtle transition between interior and exterior © Pezo von Ellrichshausen
▼ 面向泳池的室内空间,Interior facing swimming pool © Pezo von Ellrichshausen
▼ 泳池,Swimming pool © Pezo von Ellrichshausen
▼ 泳池近景,Swimming pool close view © Pezo von Ellrichshausen
点状开口的排列,使视线得以投射向周围的景观,而一道厚重的弧形挑檐则清晰地区分了各个立面的方位属性。同样地,室内以涂装木板所形成的柔和质感为主,而外墙则采用原位浇筑混凝土,表面染以淡粉色,仅由模板痕迹所塑造的构造肌理加以装饰。
▼ 铅笔绘制的室内空间,Pencil drawings of interior space © Pezo von Ellrichshausen
While the alignment of punctual apertures allow for projections to the surrounding landscape, a heavy curved eave makes a clear distinction of their cardinal orientation. Likewise, while the interior has a soft texture of painted wooden boards, the exterior walls are made with in-situ concrete, tinted with pale pink and barely decorated by their own formwork.
▼ 黄昏下的外观概览,Exterior overview at dusk © Pezo von Ellrichshausen
▼ 黄昏下的室内空间,Interior space at dusk © Pezo von Ellrichshausen
如同我们最早完成的第一座住宅项目一样,一对几近隐退生活的夫妇,作为永久居住者,环绕着一个空置的核心而居住。也许只是出于偶然,这一扎根于土地的空间原型,其命运指向了一种默契的结合——用里尔克的话说,“彼此指定对方,成为自己孤独的守护者”。
▼ 外观彩色绘画,Exterior color painting © Pezo von Ellrichshausen
▼ 泳池彩色绘画,Swimming pool color painting © Pezo von Ellrichshausen
Similar to the first house we ever made, an almost retired couple is the permanent inhabitant around an empty core. Perhaps by mere chance, the fate of this grounded scheme is a kind of tacit marriage in which, following Rilke, “each partner appoints the other to be the guardian of his solitude”.
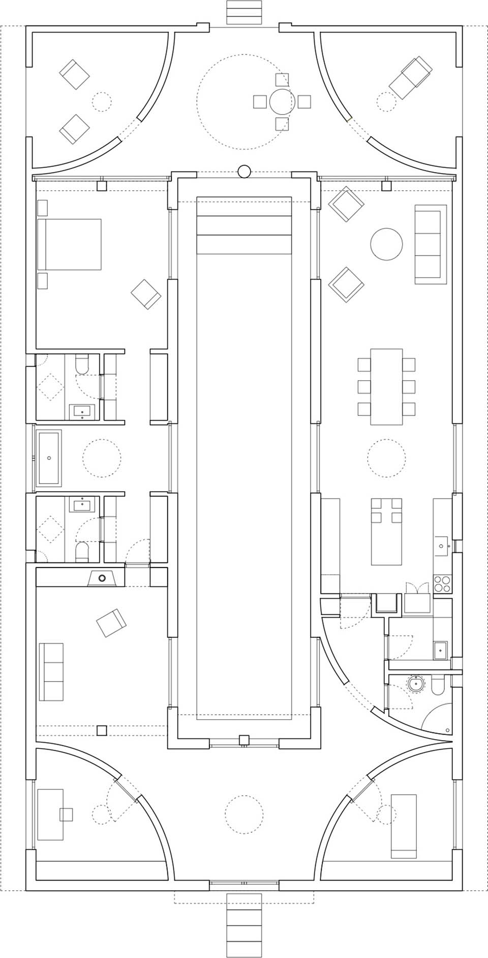
▼ 一层平面图,
First floor plan © Pezo von Ellrichshausen
▼ 屋顶层平面图,
Roof floor plan © Pezo von Ellrichshausen
▼ 南北向立面,North-south elevation © Pezo von Ellrichshausen
▼ 东西向立面,East-west elevation © Pezo von Ellrichshausen
▼ 剖面 ,Sections © Pezo von Ellrichshausen
Project: Lima house
Location: Pampa de Lima, Chepica, VI región, Chile
Client: Gabriel Montero, Carmen Youlton
Architect: Pezo von Ellrichshausen (Mauricio Pezo & Sofia von Ellrichshausen)
Collaborators: Christine Actander, Clara Lundgaard, Cook Shaw, Jacob Unterthurner
Consultants: Sergio Contreras (Structure), Marcelo Valenzuela (Sanitary), Greene & Durinng (Lighting), Allan Concha (Electrical)
Construction: GMT projects
Material: Reinforced concrete, wood
Surface: 300 m2
Project Date: 2020-2025
Photography: © Pezo von Ellrichshausen
客服
消息
收藏
下载
最近














































