查看完整案例

收藏

下载

翻译
Architects:Adjaye Associates
Area:41480m²
Year:2021
Photographs:James Wang,Dror Baldinger,Ivane Katamashvili,Gael Georges
Architect of Record:Hill West Architects
Electrical Engineer:AKRF Engineering PC
Structural Engineer:McNamara Salvia
Acoustical Design:Longman Lindsey
Lighting Consultant:Brian Orter Lighting, Design (BOLD)
Landscape Architect:William Weintraub Diaz
Category:Apartments,Skyscrapers
Civil Engineer:AKRF Engineering PC
Construction Manager:Gilbane
Façade Consultant:Gilsanz Murray Steficek LLP
Mechanical / Plumbing Engineer:Ventrop EGC
City:New York
Country:United States
''Adjaye Associates' vision, along with Lightstone's expertise and ingenuity, has achieved a new benchmark for residential living...These homes provide a calm sanctuary for those with discerning taste and the response from our new residents has been overwhelmingly positive." Scott Avram, Senior Vice President of Development, Lightstone.
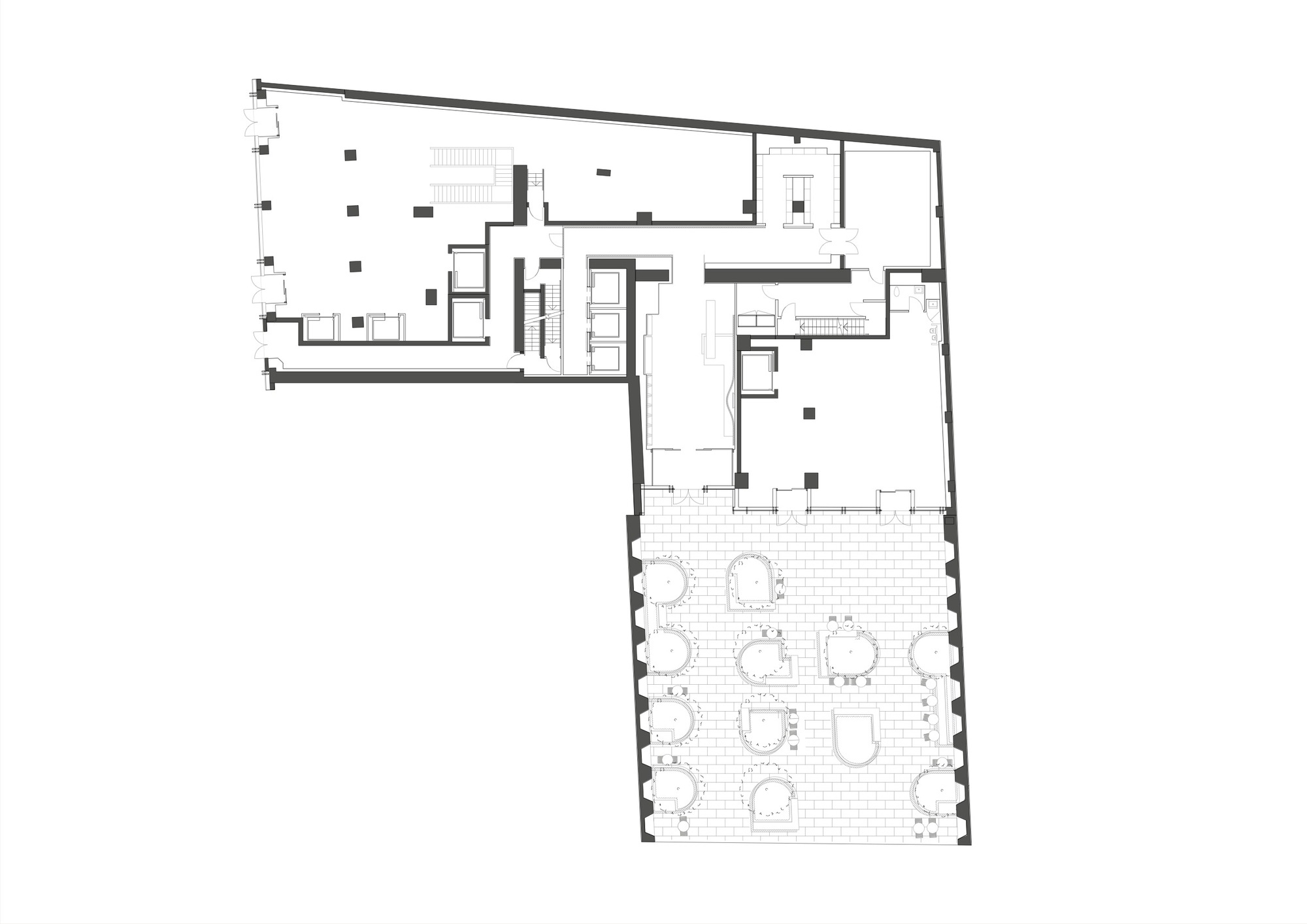
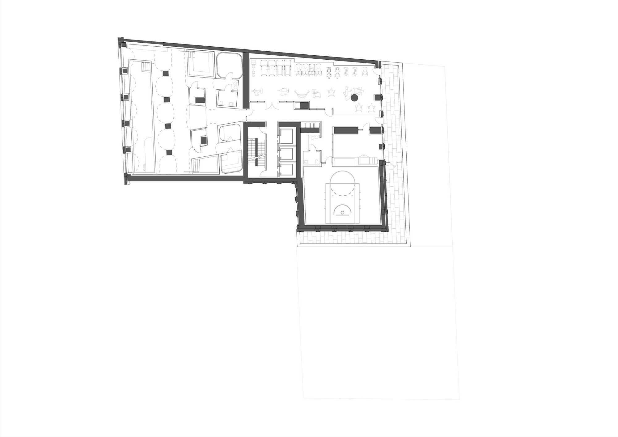
130 William is the firm's first high-rise residential tower in the United States. Rising 800 feet (244 meters), the 66-story luxury condominium is an elegant insertion into the dense Manhattan cityscape, carving a distinctive silhouette within the city's iconic skyline. Conceived as a vertical microcity, 130 William's program includes a new public plaza park; ground floor retail; two extensive floors of amenities including a health club, fitness center, movie theater, and outdoor terraces; residences ranging from one- to four- bedroom layouts; and a rooftop observatory deck—all of which support the building's residential community and work to redefine the possibility of the vertical urban neighborhood.
Adjaye Associates' design celebrates the building's lower Manhattan context with a hand-cast concrete façade evocative of the masonry craftsmanship of the neighborhood's historic high-rises. The bespoke, tinted concrete rough textures are offset by smooth bronze detailing throughout the building. Rhythmic, large-scale arched windows, inspired by the mercantile structures that once populated the area, establish the building's bold silhouette and invite natural light deep into the interior.
The highest level residences feature spacious double- height loggias that blur indoor and outdoor life while providing sweeping views, river to river, across the city.
Uniquely, the building also features a generous new public plaza, a piece of urban placemaking that offers a transitional condition between the bustle of urban life and the respite of the residences.
Project gallery
客服
消息
收藏
下载
最近
























