查看完整案例

收藏

下载
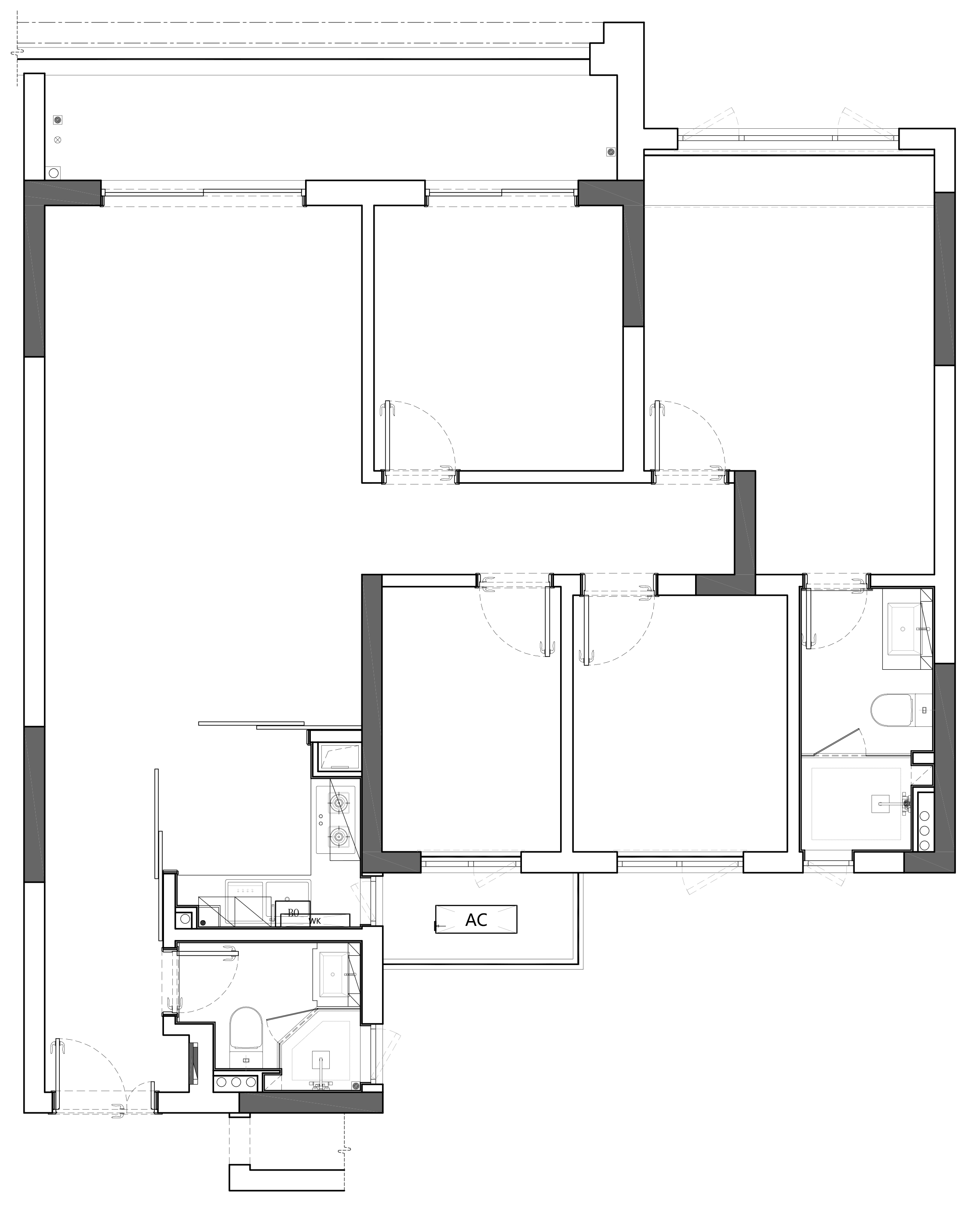
两人两居,行为与空间的对话绘制家的理想拼图,动线的调整解锁着家居组合的N种可能:家,不止一面。开放式空间、洄游式动线、色彩解构搭配、精细化功能满足居者所需,个性化需求与空间的巧妙搭配,鲜活的家居生命力与使用者同频共舞、生生不息。
享乐于窝在沙发追剧的放松家居时刻,重视客厅对于日常生活的重要性,打通阳台与客厅联通,拓宽客厅尺度营造舒适敞亮的空间感,让阳光和脚步一起跑起来,与室内进行最大化的亲密接触。同时他们希望沙发背后有墙体支撑,半墙镂空的透景关系让书房与客厅之间互动性增强,视觉延伸放大空间感官。以米、棕色为空间主色,温柔慵懒的基调上点缀以局部跳色,自然松弛的氛围下不乏空间的活泼与精致感。
一日三餐的烟火气是家富有细腻温度的度量尺,厨房对于他们来说是与这个家密切相处的重要部分,开放式厨房一改原有的闭塞拘谨,让喜爱烹饪的他们拥有更舒适宽敞的操作空间。新增高柜与岛台增加厨房收纳,岛台餐桌一体化设计,令餐厨功能叠加分担各自的使用压力,嵌入式家电、环游式餐厨动线,让烹饪就餐如此便利,与公共空间的相处如此和谐。
空间的整体性亦表现在功能的延展性上,客厅地台延伸至餐厨区,各有其边界的功能区在有序地密切互动。入户玄关柜体延伸至餐厨区,一排储物柜满足公区的强大储物功能,同时以悬浮吊柜+开放格的组合,免去大体量封闭式柜体带来的冗积沉闷之感。材质与色彩的精巧组合,入户的中古气息便迎面而来。
重塑空间布局逻辑,在两居室的需求下对四居室进行革新,南次卧和北多功能区皆以开放式呈现,开放式空间+洄游式动线,让家以前所未有的新面貌无限接近他们的生活状态。家从闭塞茫然到自在穿梭,如同蝶翼般随风起舞,在家里肆意踱步。将包含着办公读书、书籍收纳、水吧区的居者需求有序地安排在书房中,不锈钢移门与色彩的显匿流动,鹅黄色水吧到彩色点缀的书柜,以及棕色沙发墙,色彩转变划分功能体块,自然过渡的空间逻辑也在丰富着视觉的趣味性。
重构后的开放式书房与多功能空间也在牵动着卧室动线的多种可能,主卧室入口改由书房进入,主卧门与阳台承重柱之间的区域做书柜与水吧台,随之与北次卧墙体拉平;将原主卧入口处的过道空间收入主卧打造独立式衣帽间。动线、功能与布局的三者周旋,优化出最适配居者的需求空间,且让家居秩序更加合理紧密。看似温静沉稳的卧室不乏趣味模块的跳动,藏蓝色靠墙软包、古铜色柜门、鹅黄色主卫门,细处还可见复古红、青绿色的点缀,适度的色块维持卧室的氛围主调,亦有着打翻调色盘般的俏皮活力。
设计机构 / 菲拉设计
项目类型 / 全案设计
施工单位 / 菲拉设计
项目地址 / 浙江杭州·荣盛江荣府
户型 / 四室两厅
面积 / 111㎡
客服
消息
收藏
下载
最近































