查看完整案例

收藏

下载
湖北东方山,被誉为“三楚第一山”,致力于打造中国佛教的第五大名山。在弘化禅寺设立的“药师佛道场”,与鄂西的武当山相对应,在湖北形成“问道武当、拜佛东方”的宗教文化旅游格局。
Dongfang Mountain in Hubei Province, honored as “the First Mountain of the Three Chu Regions”, aspires to become China’s fifth most renowned Buddhist sacred peak. The Medicine Buddha sanctuary established at Honghua Temple corresponds to Wudang Mountain in western Hubei, thereby forming a religious and cultural tourism pattern of “seeking enlightenment at Wudang and worshipping Buddha at Dongfang”.
▼弘化禅寺与基地鸟瞰,Aerial View of Honghua Temple and the Site © 此间建筑摄影 赵奕龙
▼从自然中来的建筑入口,Main Entrance Drawn from Nature © 此间建筑摄影 赵奕龙
▼流动的空间序列,Flowing Spatial Sequence © 此间建筑摄影 赵奕龙
▼直面自然的室内空间,Interior Space Embracing Nature © 此间建筑摄影 赵奕龙
东方山佛教协会项目位于湖北黄石市东方山弘化禅寺东南方,隐于一片山林环境之中。项目用地现状为一座年久失修的弥勒宫,拟将其改造成为集佛教文化展览与会议接待为一体的建筑组团。
The project of Dongfang Mountain Buddhist Association is situated southeast of Honghua Temple in Huangshi City, Hubei Province, nestled in a landscape of towering mountains and dense forests. The existing site comprises a dilapidated Maitreya Palace, which is to be transformed into an architectural complex integrating Buddhist cultural exhibitions and conference reception.
▼改造后的东方山佛教协会,Dongfang Mountain Buddhist Association After Renovation © 此间建筑摄影 赵奕龙
01 “动”的空间
The Flowing Space
山在自然中是静态的,但山脉的走势又是运动的。改造方案希望东方山佛教协会以自然流动的空间语法来表达对山的致敬,形成张弛有度、层层递进、步移景异的山地建筑空间体验。
▼宋·燕文贵《溪山楼观图》与空间概念草图,
Song Dynasty · Yan Wengui, ‘View of Streams, Mountains and Buildings’ and Spatial Concept Sketch © 反几建筑 FANAF (右)
Though mountains stand static within nature, the flow of mountain ranges embodies movement. The renovation design aims to have the Dongfang Mountain Buddhist Association pay homage to the mountains through a naturally flowing spatial syntax, creating a mountainous architectural experience characterized by rhythmic tension and release, layered progression, and ever-changing vistas with each step.
▼鸟瞰,Aerial View © 此间建筑摄影 赵奕龙
设计以周边山地环境为起点,置入一套立体的空间体系,利用不同标高的毛石墙体来围合动态的空间。砌筑毛石墙的石块取材于周边山体,它们从自然中来,现在又以全新的方式来表达大自然的生命力。由这些墙体所定义的建筑室内外空间,顺应山的走势形成流动的序列,相互嵌套、层层跌落,诠释了建筑与自然共生、共长的设计初衷。
▼空间轴测分析,Spatial Axonometric Analysis © 反几建筑 FANAF
The design takes the surrounding mountainous terrain as its starting point, introducing a three-dimensional spatial system that employs stone walls at varying elevations to enclose dynamic spaces. The stones used for these walls are sourced from the nearby mountains; originating from nature, they now express the vitality of the natural world in a wholly new manner. The interior and exterior spaces defined by these walls follow the contours of the hillside, forming a flowing sequence that interlocks and cascades in layers. This arrangement embodies the design’s fundamental intent: the symbiotic coexistence and mutual growth of architecture and nature.
▼由毛石墙限定的入口空间,Entrance Space Defined by Stone Walls © 此间建筑摄影 赵奕龙
▼室内外空间的融通,Integration of Interior and Exterior Spaces © 此间建筑摄影 赵奕龙
▼流动的空间序列,Flowing Spatial Sequence © 此间建筑摄影 赵奕龙
02 “静”的场所
The Tranquil Site
场地中原有的弥勒宫,呈现中国传统寺庙中轴对称布局,安静沉稳的嵌入周边山体之中。改造方案充分保留这种秩序感,将空间序列向外延伸,提供更多与自然对话的场所。
The existing Maitreya Palace on the site exhibits the central axis symmetry typical of traditional Chinese temples, nestled quietly and steadily within the surrounding mountains. The renovation design fully preserves this sense of order, extending the spatial sequence outward to provide more spaces for dialogue with nature.
▼主庭院视角,View of the Main Courtyard © 此间建筑摄影 赵奕龙
▼冥想空间视角,View of the Meditation Space © 此间建筑摄影 赵奕龙
设计在东区文化展览组团保留原弥勒宫的中轴线设置,延续佛教建筑应有的庄重特质。同时,将中轴线从一层展厅延伸出来形成静谧的水院入口平台,并转向西侧形成入口空间序列。西区的会议接待组团,则通过层叠错落的院落空间被组织起来。庭院、平台、天井、廊道等,分别以安静谦虚的姿态直面自然,使弥勒宫具有禅意的“静”的场所精神得以传承。
The design preserves the original central axis of the Maitreya Palace within the east zone’s cultural exhibition complex, maintaining the solemn character befitting Buddhist architecture. Simultaneously, the central axis extends beyond the ground-floor exhibition hall to form a tranquil water courtyard entrance platform, and then turns westward to establish a sequential entrance space. The conference and reception complex in the western zone is organized through a series of staggered courtyard spaces. Courtyards, platforms, atriums, and corridors each adopt a quiet and unassuming posture in direct engagement with nature, thereby perpetuating the Zen-inspired site spirit of tranquility inherent to the Maitreya Palace.
▼庭院与廊道空间,Courtyard and Corridor Spaces © 此间建筑摄影 赵奕龙
▼“静”的场所精神,The Tranquil Site Spirit © 此间建筑摄影 赵奕龙
03 “隐”的形式
The Concealing Form
东方山佛教协会项目具备独特的周边环境要素,其场地隐于东方山之中,自身又具备参禅隐修的功能属性。因此,改造方案提取“隐”的精神内涵,让外在形式尽可能消隐,更使空间与场所本身得以显现。
The Dongfang Mountain Buddhist Association project possesses distinctive contextual elements; its site is nestled within Dongfang Mountain while inherently embodying the functional attributes of Zen meditation and seclusion. Consequently, the renovation design draws upon the spiritual essence of concealment, allowing the external form to fade into obscurity as much as possible, thereby enabling the space and the site itself to emerge.
▼隐于自然的次入口,Secondary Entrance Concealed Within Nature © 此间建筑摄影 赵奕龙
▼屋顶平台视角,Roof Terrace Perspective © 此间建筑摄影 赵奕龙
▼与自然对话的场景,Scenes of Dialogue with Nature © 此间建筑摄影 赵奕龙
▼直面自然的室内空间,Interior Space Embracing Nature © 此间建筑摄影 赵奕龙
▼室内空间细部,Interior Space Details © 此间建筑摄影 赵奕龙
设计采用单坡金属屋面来减轻屋顶的分量感,主体外立面采用以实木与毛石为主的自然材料,充分表达项目的在地性,同时使整组建筑更好的消隐于自然之中。由错动的墙体与屋面共同定义的立体空间体系,被真实的材料与建造方式赋予了自然的生命力。此时,外在的形式语言已悄然隐去,自然流动的空间记忆与禅意静谧的场所感受共同构成了改造方案的精神内涵。
The design employs a single-slope metal roof to mitigate the roof’s visual weight. The primary façade utilizes natural materials predominantly of solid timber and rough-hewn stone, fully expressing the project’s local character while enabling the entire complex to blend seamlessly into its natural surroundings. The three-dimensional spatial system defined by staggered walls and roof planes is imbued with organic vitality through authentic materials and construction methods. At this point, the external formal language quietly recedes, as the flowing spatial memory and Zen-like tranquility of the site collectively form the spiritual essence of the renovation design.
▼模型照片,Model photograph © 反几建筑 FANAF
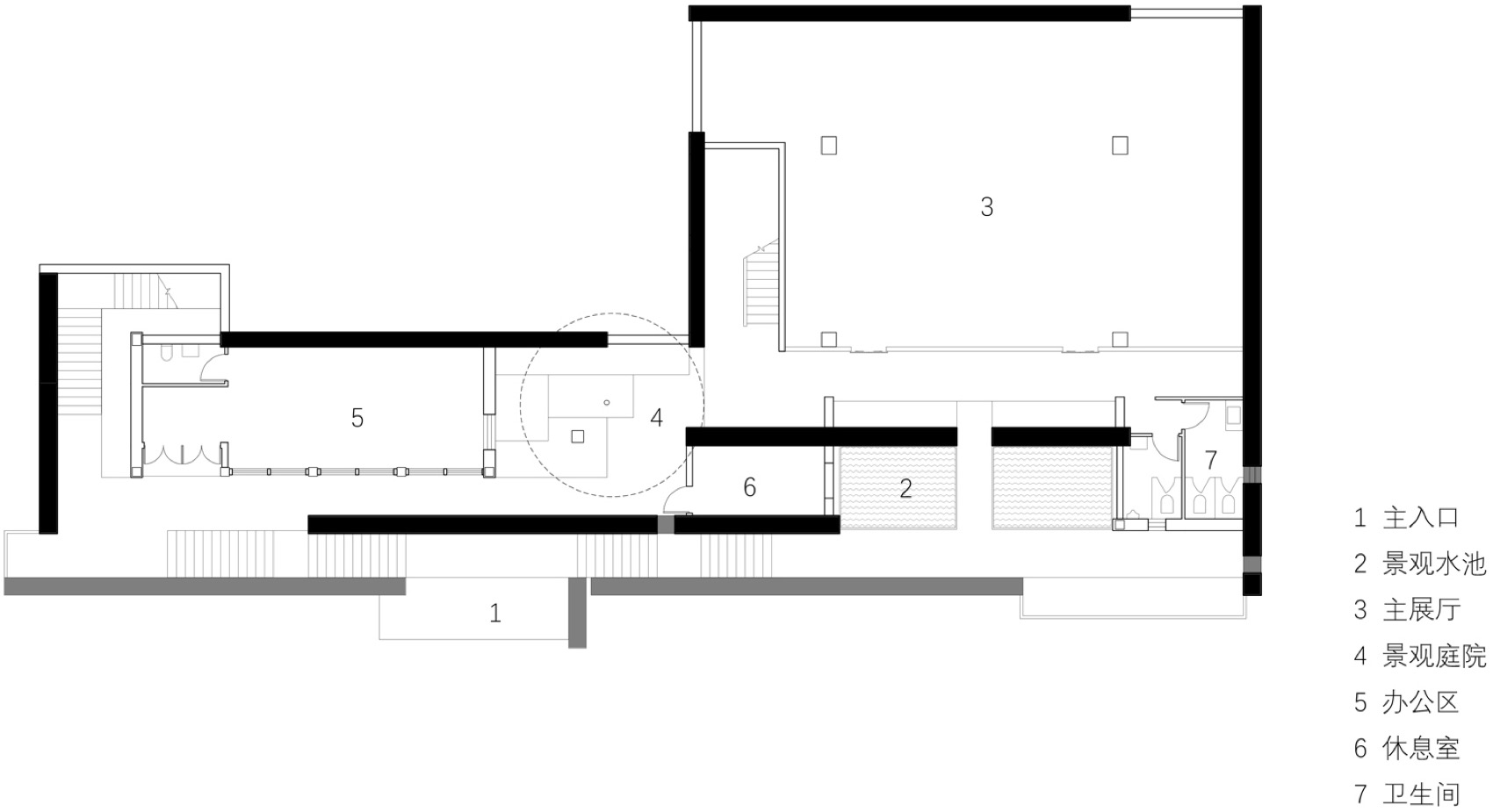
▼一层平面,Ground floor plan © 反几建筑 FANAF
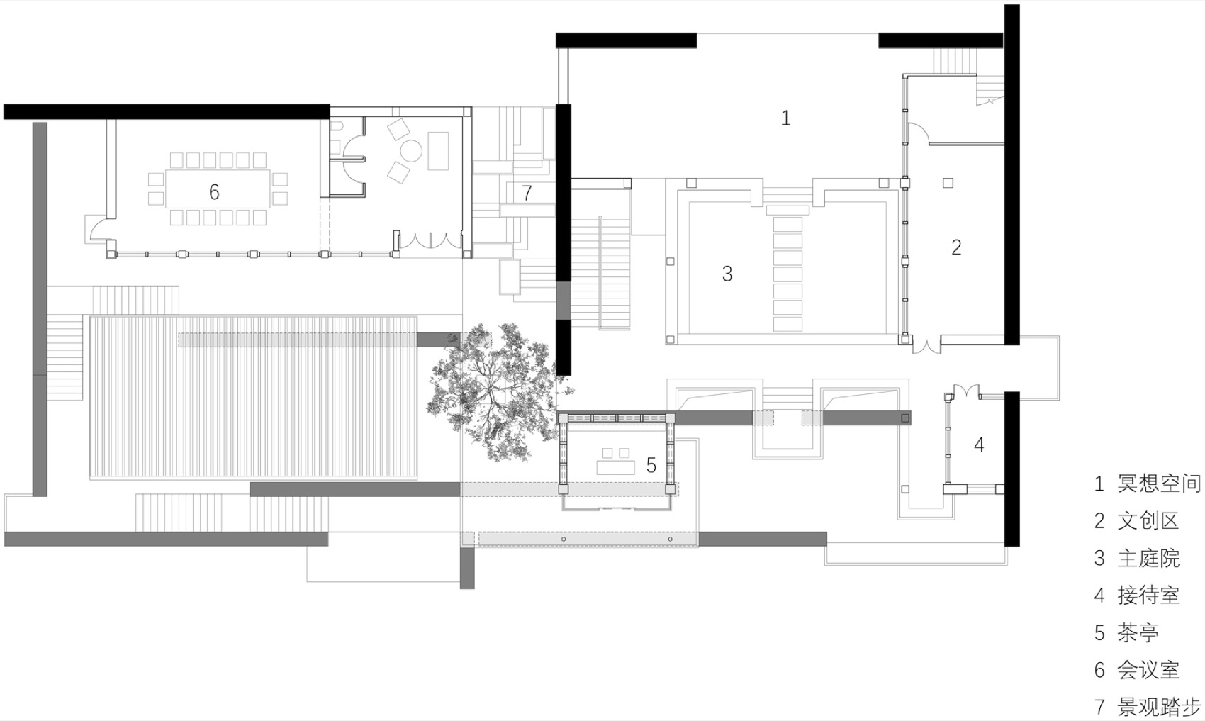
▼二层平面,Second Floor Plan © 反几建筑 FANAF
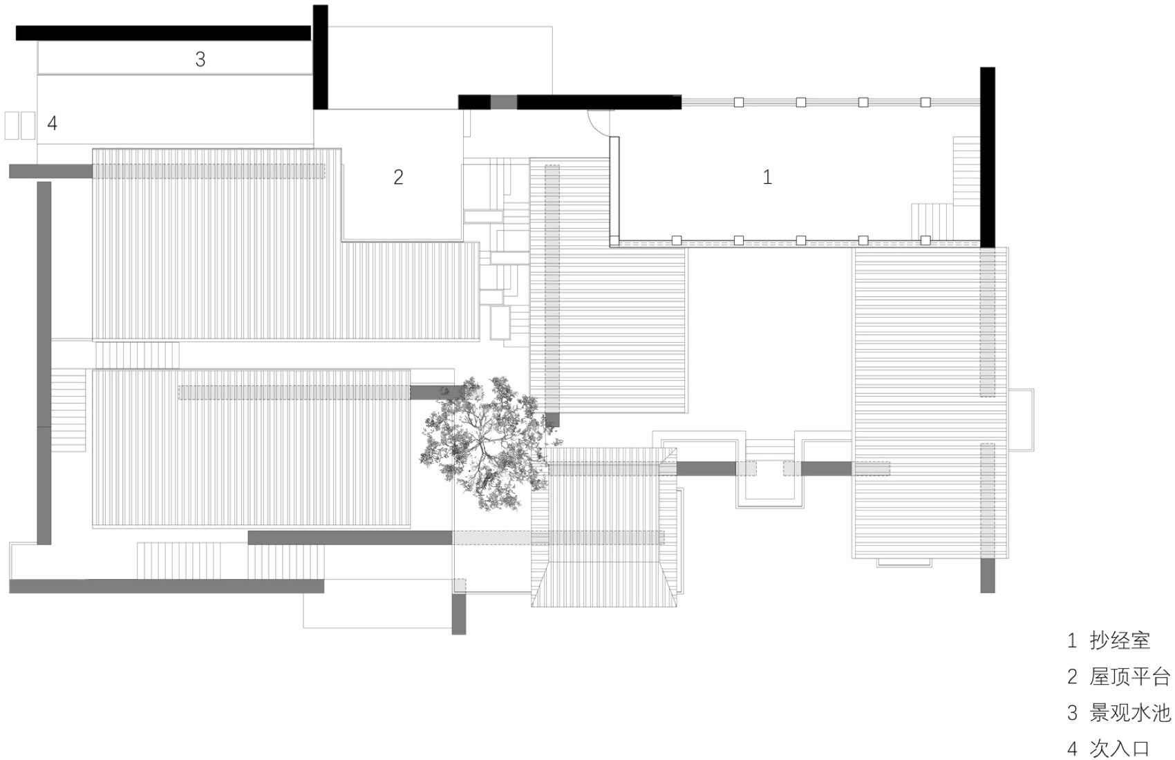
▼三层平面,Third Floor Plan © 反几建筑 FANAF
▼剖面,Cross-section © 反几建筑 FANAF
客服
消息
收藏
下载
最近










































