查看完整案例

收藏

下载
项目名称:上海美的全球创新园区
位置:上海
设计单位:北京建院马泷工作室 + 上海天华建筑设计有限公司
图片数量:42张
独特身份象征的建筑造型、开放共享逻辑的空间呈现、高效办公与健康生态兼顾的多样化场所、尊重环境的低碳设计表达…新兴科技企业总部正以全球视野与设计力演绎未来办公新范式。上海美的全球创新园区呈现了天华在建筑创意下的突破性结构选型,消防、机电、构造等一系列精细化设计赋能设计美学与创新技术的完美平衡。
“森林之上的科技公园”“A Tech Park Above the Forest”
上海美的全球创新园区项目由北京市建筑设计研究院股份有限公司负责方案设计,TIANHUA天华承担了全专业扩初及施工图设计工作,涵盖建筑、结构、机电、绿建等多个专业领域。2025年6月,上海美的全球创新园区项目顺利通过综合竣工验收并正式启用。
The schematic design for Shanghai Midea Global Innovation Park project was undertaken by BIAD, with TIANHUA responsible for the comprehensive preliminary development design and construction drawing design across all disciplines, including architecture, structure, MEP, and green building. In June 2025, the Shanghai Midea Global Innovation Park successfully passed the comprehensive final inspection and was officially inaugurated.
▼项目鸟瞰,Aerial view of the project©张虔希
园区位于上海虹桥商务区板块,距国家会展中心约2公里。项目总建筑面积约39.9万㎡,其中地上面积约21.4万㎡,地下建筑面积18.5万㎡。项目基地东侧为自然景观水系,遥望虹桥机场,西侧为城市绿化带和沈海高速公路,给场地界面带来了多样的城市速度和城市尺度。面对企业总部塑造建筑标志性与科技感的核心诉求,设计团队创造了一个“漂浮”于地景森林之上、两个L形相互嵌套的约240m×240m超尺度方形连续办公空间,在回应科技企业互联互通、激发创造、开放共享的空间诉求的同时,巧妙地协调了场地周边复杂多样的城市环境。
The park is located within the Shanghai Hongqiao Business District, approximately 2 kilometers from the National Exhibition and Convention Center. The total building area is about 399,000 square meters, comprising roughly 214,000 square meters above ground and 185,000 square meters below ground. The site is bordered by a natural landscape water system to the east, offering views toward Hongqiao Airport, and by an urban greenbelt and the Shenhai Expressway to the west, presenting a varied interface of urban speeds and scales. Addressing the core demands of a corporate headquarters for architectural iconicity and a technological aesthetic, the design team created a super-sized, approximately 240m x 240m square continuous office space formed by two interlocking L-shaped volumes that appear to “float” above a forested landscape. This design responds to the spatial needs of tech companies for connectivity, creativity stimulation, and open sharing, while skillfully harmonizing with the site’s complex and diverse urban surroundings.
▼建筑外景,Exterior of the building©张虔希
容纳配套功能的一层裙房位于场地四角,两座L形塔楼分别以7个钢筋混凝土核心筒支撑,均衡地布置于裙房之上,容纳研发办公、研发实验、园区配套设施、配套酒店、配套商业等功能。不同的人流通过地景裙房之内的观光电梯穿越地景森林,抵达上部的研发办公与酒店公寓空间。不同空间、功能之间的交通联系依托于垂直方向的核心筒展开,联通地下、地面、地景与“漂浮”的核心功能区,创造出穿梭室内与室外、融合科技与自然的奇妙体验。
Ancillary functions are housed in one-story podium structures at the four corners of the site. The two L-shaped towers, each supported by seven reinforced concrete core tubes, are evenly positioned above these podiums. The complex accommodates R&D offices, research laboratories, park support facilities, a hotel, and commercial amenities. Different user flows ascend through sightseeing elevators within the landscaped podium, traversing the “forest” to reach the upper-level R&D offices and hotel apartments. Circulation between different spaces and functions is organized around the vertical core tubes, connecting the underground levels, ground plane, landscape, and the “floating” core functional areas. This creates a remarkable experience of moving between interior and exterior, blending technology with nature.
▼建筑前的绿地,Green space in front of the building©张虔希
创新的结构选型Innovative Structural Design
突破性的空间概念给结构设计带来了高难度命题,天华施工图团队与方案设计团队持续开展协作设计,寻求结构体系与建筑效果平衡的最佳解决方案,最终为本项目主体突破性设计了以设置斜拉索为主的跨层桁架作为水平承重结构、以钢筋(钢板) 混凝土剪力墙核心筒为竖向承重结构的复合结构,实现结构形式与建筑空间高度协调。
▼太阳能光伏板和太阳能光热板,Installation of Solar Photovoltaic Panels and Solar Thermal Panels©北京建院马泷工作室
The groundbreaking spatial concept presented a significant challenge for structural design. The TIANHUA construction drawing team collaborated closely with the schematic design team to find the optimal solution balancing structural system and architectural intent. The final, innovative design for the main structure is a composite system: horizontally, it primarily employs cross-floor trusses with stay cables; vertically, it relies on reinforced concrete (or steel plate-concrete) shear wall core tubes. This achieves a high degree of coordination between structural form and architectural space.
▼悬挑,Cantilever©张虔希
▼顶部太阳能板,Rooftop solar panel©OneScape
建筑结构标准柱网为12mx12m,主桁架两侧悬挑12m,混凝土筒间最大跨度约72m,端部最大悬挑约44m。两个L型建筑主体分别通过7个核心筒架起,再由大跨钢桁架、悬挑桁架及斜拉索共同构成整个建筑的竖向承重体系。竖向荷载传力路径为外侧钢框架通过底层或顶层的悬挑桁架传力至内侧跨层主桁架和斜拉索,再传递至混凝土核心筒。地震力通过各层楼板(必要时设置水平支撑)传递至核心筒。钢筋混凝土核心筒采用端部带钢骨柱的钢板混凝土剪力墙,以承受竖向荷载及水平荷载。
▼结构分析,Structural analysis©TIANHUA天华
The standard structural grid is 12m x 12m. The main trusses cantilever 12m on both sides, with a maximum span of about 72m between concrete cores and a maximum end cantilever of approximately 44m. The two L-shaped main structures are each elevated by 7 core tubes. Large-span steel trusses, cantilevered trusses, and stay cables together form the building’s vertical load-bearing system. The vertical load path transfers from the outer steel frame via cantilevered trusses at the base or top to the inner cross-floor main trusses and stay cables, and then to the concrete core tubes. Seismic forces are transferred to the core tubes through floor slabs (with horizontal bracing added where necessary). The reinforced concrete core tubes utilize steel plate-concrete shear walls with steel-encased columns at their ends to withstand both vertical and horizontal loads.
▼内部绿化,Internal greening©张虔希
超20万方的地上建筑主体最终通过14个核心筒(4个核心筒模块)的支撑架空至18m的高度,创新的结构选型使超尺度建筑体量的漂浮感和通透感得以实现,本项目的消防、机电、构造细节及一系列精细化设计也都是围绕着此建筑形态来开展。
▼电梯分布图,Elevator distribution map©北京建院马泷工作室
The above-ground structure, exceeding 200,000 cubic meters, is ultimately elevated to a height of 18 meters, supported by 14 core tubes (in 4 core modules). This innovative structural approach enables the desired sense of floating and transparency for the super-sized building volume. The project’s fire protection, MEP, construction details, and a series of refined designs were all developed around this architectural form.
▼屋顶空间,Roof space©张虔希
量体裁衣的消防设计Customized Fire Protection Design
作为超尺度水平连续办公空间,大跨度大悬挑的造型、交错咬合的体量和多种功能的业态组合对消防设计方案提出了极高要求。总平面消防设计围绕建筑设置消防环道,并在中间部位设置了穿过建筑的消防车道。南北登高面对应室内的大空间办公,通过扑救面可到达东西两翼任意位置。
▼建筑防水优化部位分析图,Analysis diagram of building waterproofing optimization areas©北京建院马泷工作室+TIANHUA天华
As a super-sized, horizontally continuous office space, its large-span, heavily cantilevered form, interlocking volumes, and mix of diverse functions placed extremely high demands on the fire protection design.The site plan features a fire access road encircling the building, with an additional fire lane passing through its central section. The north and south firefighting and rescue facades correspond to the large-span office spaces indoors, allowing access to any point in the east and west wings via these operational areas.
▼连廊,Corridor©张虔希
由于建筑造型互为咬合的特殊性,导致部分楼层的局部防火分区独立在外,对此利用两栋楼之间的市政天桥作为第二安全出口。天桥满足仅有围护设施无围护结构的不封闭体要求,以此来分担疏散宽度,最大程度地控制核心筒数量,更好地实现纤细灵动的“森林之上的科技公园”设计概念。对于地下实验室的消防设计,通过置入避难走道来控制楼梯数量,巧妙地解决了使用功能、规范要求与方案效果呈现之间的矛盾。
▼流线分析图,Circulation analysis©北京建院马泷工作室
Due to the unique interlocking building form, some localized fire compartments on certain floors are isolated. This challenge was addressed by utilizing the municipal footbridge connecting the two buildings as a second safe exit. The footbridge meets the requirements for an unenclosed structure with only protective barriers (not full enclosure), thereby sharing the required egress width. This approach minimized the number of core tubes to the greatest extent possible, better realizing the slender and dynamic design concept of “a tech park above the forest.” For the underground laboratories, the incorporation of protected refuge corridors helped control the number of staircases, cleverly resolving conflicts between functional needs, code compliance, and design intent.
▼下沉广场,Sunken plaza©张虔希
疏散人数的确定是消防设计的另一难点。在消防设计推进中,天华团队与业主积极沟通,业主依据总部规模及使用特性,确定各功能业态使用人数。结合消防疏散人数计算规则,合理设置防火分区及结构变形缝,从消防设计角度对结构设计及成本控制做出综合考量。
Determining occupant load was another difficulty in the fire protection design. During the process, the TIANHUA team actively communicated with the client. Based on the headquarters’ scale and usage patterns, the client defined occupant numbers for each functional area. By combining these figures with code-specified calculation rules for evacuation, fire compartments and structural expansion joints were rationally planned. This provided a comprehensive consideration of structural design and cost control from the perspective of fire safety.
▼楼梯,Stairs©张虔希
细节的精细化把控Meticulous Detailing and Control
为使支撑建筑主体的核心筒实现更加纤细的视觉效果,部分核心筒采用了玻璃井道电梯方案。从圈梁、构造柱、楼层框架梁的构造到防火涂料的效果、玻璃的选用一一作出了限定。
To achieve a more slender visual effect for the core tubes supporting the main structure, a glass elevator shaft solution was adopted for some cores. Specifications were meticulously defined for every element, from the construction of ring beams, structural columns, and floor frame beams to the finish of fireproof coatings and the selection of glass.
▼接待大厅与入口,Lobbyand entrance©张虔希
防火防腐选用“底漆环氧富锌+中间漆环氧云铁+防火涂料+腻子+面漆”的做法实现效果控制;玻璃电梯井道圈梁与玻璃幕墙钢结构横梁统一考虑,规格尺度一致;井道钢梁制定彩色氟碳喷涂,焊缝、螺栓节点考虑外露效果;电梯导轨与支架采用精细化排列设计,定制色号喷涂,轿厢外装设计整合、简约,必须外露的结构采用机械美的设计理念。设计团队对每一处细节的精细化把控使本项目超尺度建筑体量的漂浮感与通透感得以更好地实现。
A specific coating system (“zinc-rich epoxy primer + micaceous iron oxide epoxy intermediate coat + fireproof coating + filler + topcoat”) was chosen for fire and corrosion protection to ensure visual consistency. The ring beams for the glass elevator shafts were coordinated with the horizontal steel members of the glass curtain walls, maintaining uniform profiles and dimensions. Steel beams within the shafts were specified with colored fluorocarbon spray painting, with weld seams and bolt connections designed for an exposed aesthetic. Elevator guide rails and brackets were arranged with precision, sprayed with custom colors. The exterior design of elevator cars is integrated and minimalist. Structural elements that must remain exposed follow a design philosophy celebrating mechanical beauty. The design team’s meticulous control over every detail allowed the floating sensation and transparency of this super-scale building volume to be fully realized.
▼中庭和内部采光,Central courtyardand Internal daylighting©张虔希
结语Conclusion
如果说方案设计是从更感性的层面去处理人、建筑与环境之间的关系,那么施工图设计便是从更理性的层面使突破性的设计理念得以完美呈现。在项目进行的全过程中,天华与方案团队紧密合作,并协调整合各部门与各专业团队,从理念、效果、结构可行性、精细化等多维度进行深化设计。本项目按照绿建三星、LEED铂金标准建设,建筑置身“森林”之中,为科技创新企业创造一个全新的、面向未来的科技办公园区,为上海市虹桥商务区创造一个世界级的高质量绿色科技园区和公共空间。
If architectural schematic design addresses the relationship between people, architecture, and the environment on a more perceptual level, then construction drawing design brings breakthrough concepts to perfect realization through a more rational approach. Throughout the entire project, TIANHUA collaborated closely with the schematic design team, coordinating and integrating various departments and specialized teams to refine the design across multiple dimensions—including concept, visual impact, structural feasibility, and meticulous detailing. Constructed in accordance with both China Green Building Three-Star and LEED Platinum standards, the building is nestled within a “forest,” creating a new, forward-looking technology office park for innovative enterprises. It also contributes a world-class, high-quality green technology park and public space to Shanghai’s Hongqiao Business District.
▼立面细节,Facade details©张虔希
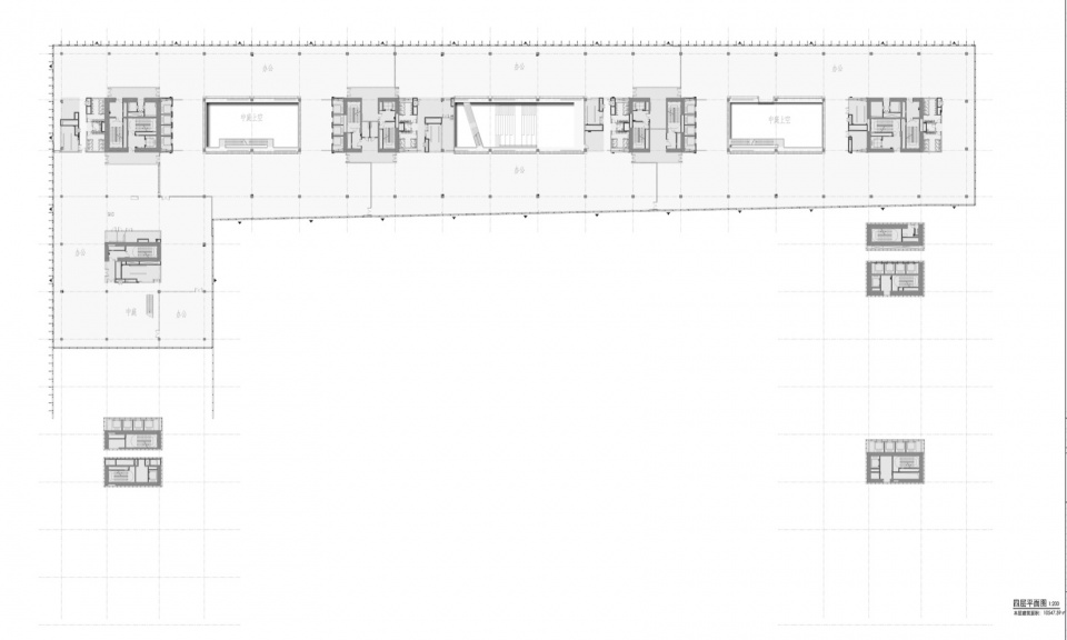
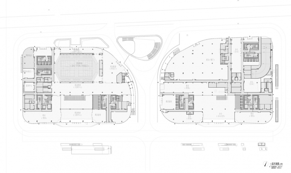
▼一号楼平面图,No.1 building floor plan©TIANHUA天华
▼二号楼平面图,No.2 building floor plan©TIANHUA天华
▼立面图,Elevation©TIANHUA天华
▼剖面图,Section©TIANHUA天华
项目名称:上海美的全球创新园区
项目类型:总部办公
设计方:北京建院马泷工作室(建筑设计)上海天华建筑设计有限公司(全专业扩初设计,施工图设计,绿建咨询)
项目设计:2020~2021年
完成年份:2025年
设计团队:建筑设计:马泷,褚以平,王欢欢,冉展,丛晓,王斌,祁美蕙(北京建院马泷工作室)扩初与施工图设计:陈宏、宗劲松、刘松林、毛燕妮、李明菲、谢旺兰、曲宏、王惠平、邢佳宇、李玉波、王峻强、丁正超、王晓宁、王榕梅、沈凯健、陈涛、孔令武、黄华海(上海天华)
项目地址:上海市青浦区
建筑面积:39.9万㎡
摄影版权:张虔希
合作方:室内设计:深圳市杰恩创意设计股份有限公司景观设计: OneScape一域景观设计事务所、北京市建筑设计研究院股份有限公司(BIAD)幕墙顾问:上海欣泰建筑装饰设计有限公司
客户:美的集团
材料:金属、铝板、钢、玻璃
客服
消息
收藏
下载
最近










































