查看完整案例

收藏

下载
祥符荡位于西塘镇东,这里粉墙黛瓦、薄雾似纱,屋脊倒影,明洁幽静。傍晚夕阳斜照,渔舟唱晚,灯火闪耀,酒香飘逸,一派江南 “小桥流水人家”的画境。本案中,唤起人们对当地过往的记忆,提取水乡天然的意蕴,以自然和人文之美打造一个舒适放松、恬静悠然的栖息之所是设计的初衷。
追求含蓄凝练的空间、不加缀饰的色彩,温润舒适的质感。表达了现代人回归自然,返朴归真的诉求。整体手法简练,体现出“单纯性、反复性、还原性、环境性”,适度的留白让空间更显轻松和易于接受。
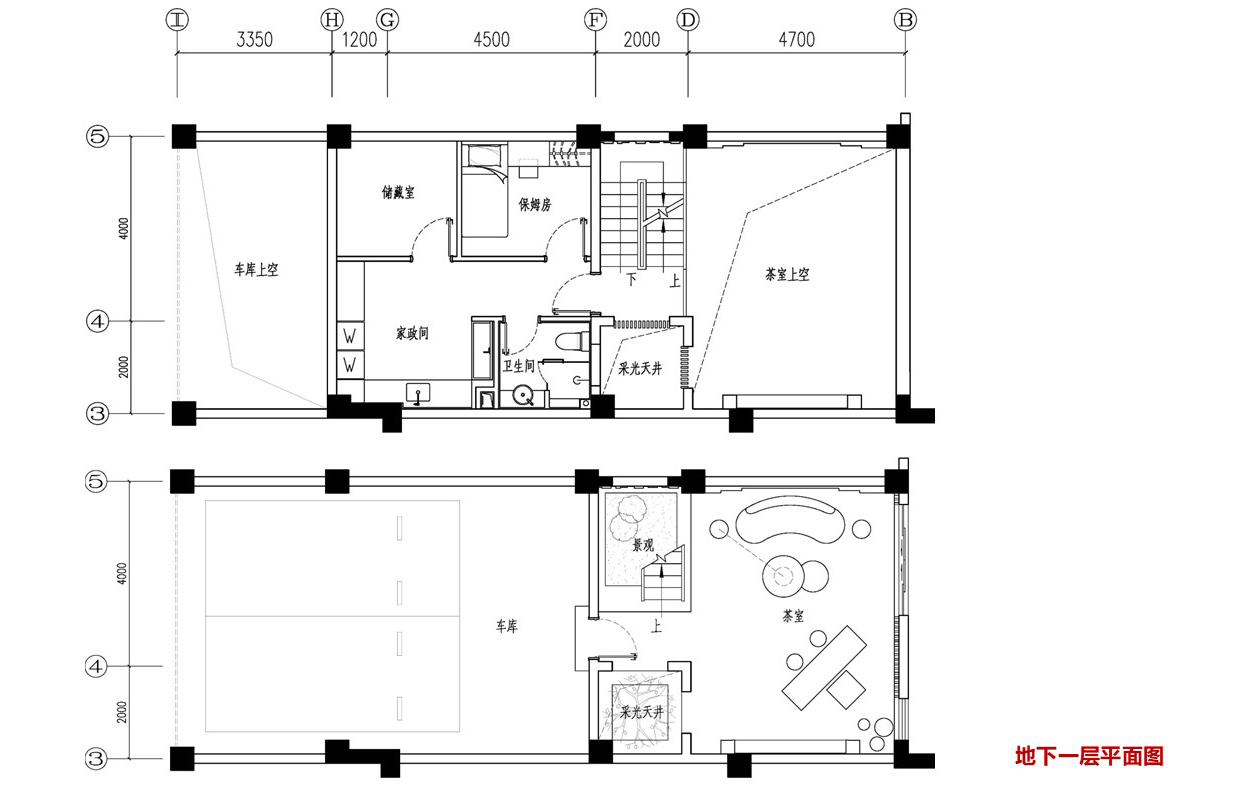
负一层挑高5米,是冥想的最佳选择。它融入于居所,又游离于居所,通过纵向空间传达着某种超然的思想和感受。品茶区仿若闻见悠悠古琴、点点茶香,或与友人擎盏相叙,啜饮当思必定意境悠长。
客厅一改传统的布局方法,主背景树形书架形成一个独特装置,成为客厅的视觉焦点。阳光透过超大落地窗照入室内,靠在宽大的白色沙发上阅读、清谈或眺望窗外,可谓一人至幽二人至胜,更多的是一种精神的陶冶和人生的感悟。
三层主卧延续建筑坡顶的造型,卧室和卫生间通过木栅象征性的区分,产生流动空间,轻松的非正式的舒适感在会更加彰显。回归纯朴、融入繁花,就好像把家轻轻放于自然,远离尘埃纷扰、独享清澈梦乡。
材料运用主要包括:水泥艺术砖、大理石、浅色木板、原木构件、白色涂料等。
客服
消息
收藏
下载
最近

















