查看完整案例

收藏

下载
徐大村民生建筑群(下文简称徐大村部)位于安徽省利辛县中疃镇徐大村,距县城约26公里。2025年初Endless Space建筑事务所进行场地调研,春节后投入设计并于4月中旬动工,经过半年多的施工,于11月中旬整体竣工。该项目由央企捐建,设计及建设过程中参与各方都非常努力地为中国的新农村建设贡献一点力量,希望通过该项目的设计和建造,能为新农村的发展提供一些新思路。
老村室是在徐大村小学校舍原址上发展出来的,新的徐大村部则是基于此的改扩建,以作为村民文体中心及为村民提供服务的功能建筑,整个建筑群还包含党群服务中心、村民食堂、多功能室、农家书屋、军人之家、青年之家、卫生室、乡村超市、篮球场等功能空间。
室内外高差设缓坡,方便乡村留守老人、残疾人进出
Gentle slope for level difference, enabling easy access
城市的发展往往伴随着许多好的东西在建设中消亡。相对于城市,乡村的保护更是容易被忽略。乡村建筑保护是乡村文化遗产保护极为重要的一块,需要通过对老建筑的保护性修缮,新老建筑相互依托,使群落整体得到提升。取其精华,能保护的地方尽量保护是设计的原则。在不得不采取措施拆改的地方,总是得经过非常严谨的思考以取舍。
Endless Space建筑事务所在这个项目中希望学习既有乡村建筑的优点,用设计的手段来帮助乡村,通过实实在在的提升建筑空间质量来潜移默化地影响人们观念的提升。我们想传递一种观念,中国的乡村不只有乡土,它可以很先进,它可以很自信。
老村室建筑群的原状比较松散,村室位于正北侧,是一栋两层的白色小办公楼。卫生室在场地的西北角,像县城里随处可见的很多房子那样,斜搭着蓝色的铁皮以遮阳防雨。原有厕所为旱厕,位于西侧与卫生室毗连,极其简陋。南面原本是老的小学校舍,因为局部结构损坏严重,在我们看到它时,已拆得仅剩西南角的一小半及一间只有8平米的学生食堂。这几栋建筑之间则是大面积的空地。场地的东侧为信号塔,南北及西侧是广袤的农田。
新的村部通过在中心插入一个南北走向、体量稍大一点的建筑来织补场地,把几个零散的小建筑组织到一起,形成新的整体。这栋有2/3面积是大棚顶覆盖的建筑提供了半室外活动空间,形成一大一小两个院子。利辛的夏天非常炎热,村民可以在大棚底下避暑。L型的抬高区域,即是以田野为背景的乡村舞台,也是面向外院及大棚底下文体活动场地的看台。
由于改扩建新增室内面积有限,新老建筑共用一部分室外楼梯以节省空间、降低造价。原建筑二楼为党员活动室,但老楼梯踏步很高,导致年纪大的人上楼困难,使得该活动室使用率较低。改建后,原有L型90度直角楼梯被以135度的折角楼梯替换,流线更顺畅,上下楼更方便。踏步高度也从230mm左右降低至舒适的165mm高。
主建筑南北向进深大,屋顶局部断开镂空,让室内采光更好。改善村部的卫生条件是非常重要的,公共卫生间被安排在新建建筑中间,让它相对于各区的距离更短更便民,建筑体块也因为它的存在而增加了虚实对比。
一楼村民食堂 F1 Village Canteen
二楼多功能厅吊顶和南面砖墙的呼应关系,为改善室内混响而增加声学处理,平衡基本功能要求和结构之美Relationship between the ceiling and the brick wallon F2Balance spatial reverberation and structural aesthetics
主楼二层西面和北面的连续窗景Views on the west and north sides of F2 / main building
卫生室原貌/Original appearance of the clinic
卫生室屋顶改造成面向田野的大露台Health clinic roof converted to field-facing terrace
项目初衷除了为村民提供一个好场所,还希望用它来带动本地闲置的劳动力。红砖、钢筋混凝土、木檩条、芦苇、瓦屋顶、磨石及沥青地面、门窗及护栏等,都是用当地能够直接找到的适宜材料和施工技术。
几间残存的小学校舍是村里唯一留存的有纪念意义的建筑,它承载了徐大村几代人的记忆,许多人从村里走向外面的世界,这里寄托着他们的乡愁。
小学校舍改造成的农家书屋 ——徐大书屋局部插入新建筑大棚顶之下的公共空间,新老建筑互相融合、对话,它的山墙是空间的一个亮点界面。透过大玻璃能看到老屋架、老黑板以及当年小朋友的墙绘,书屋温馨的光吸引村民进屋阅读。
校舍原状 /Original state of the school building
老校舍的屋顶是芦苇加泥瓦顶,这种即便在农村都快要消失的原生材料及传统工艺,给建筑带来城市里所找不到的乡村温度。于是设计选择原样修缮老校舍的顶,并且延续木檩条、竹竿及芦苇的做法将它应用在室外半开放的大棚顶,以区别于新建建筑室内空间的混凝土裸顶或石膏板吊顶的方式。当然,芦苇和瓦屋面之间的屋顶板及主结构框架还是混凝土。实践证明,这种传统工艺是整个项目建造过程中最高效、也是施工现场最欢乐的专项。
大棚顶跨度较大,用以绑扎芦苇的竹竿大小头对插,由师傅所建议
Wide-span roof: bamboo poles (thick-thin ends spliced) as advised by craftsmen
校舍原状 /Original state of the school building
原本颜色过于艳丽、复杂的老校舍南墙改造后局部
Renovated south wall of the school building
小房子套小小房子形成的微院落空间
Small building nesting tinier one form a mini courtyard
紧挨着校舍的这栋只有8平米的小房子,据村干部介绍是当年学校的小食堂,中午三四个路远的小朋友会在这里围着灶台边的一张小桌子吃饭。大家觉得有必要保留这栋很有生活记忆的小房子。保护功能的延续性跟保护建筑空间同等重要,随着农村经济的发展,今后乡村的生活方式肯定会有一些转变,新的功能也很可能会在这里发生。于是设想将这个迷你空间做成一个乡村咖啡——大咖啡。在施工临近结束处理屋顶的时候,小房子角部墙体坍塌,现场做了加固处理。这栋小房子嵌套在青年之家稍大一点的屋顶之下,屋顶局部镂空,让阳光洒入微院落。青年之家的红砖墙半遮掩着小房子,吸引人们来探寻当年的小食堂。
檐口的建构:檐口因瓦屋面滴水的功能必须出挑,梁的退让使整体几何感不因屋檐而削弱
Eaves Tectonics /Eaves must overhang for roof drainage
Beam recession maintains strong geometric sense
大咖啡入口的构成Composition of the DACaféentrance
卫生室主入口位置有棵柱子,它决定了卫生室的入口改不了位置,在不大改其结构的情况下,卫生室侧面的青年之家若用规整的矩形平面,要么新建筑室内空间太窄不好用,要么它的墙角非常别扭地顶着卫生室大门。设计在此处做了一个特殊处理,用最少的手段让卫生室门前自然打开。斜切一角的青年之家反而因此成为院落空间序列上的视觉焦点。
南面主入口的1.2高的矮围墙结合花坛设计,以及宣传栏都呈整体折线状,顺着来访的方向引导人们进入院子,砖墙和具有功能意义的混凝土结构部件相互穿插,两者之间的清晰关系形成建构带来的美感。
混凝土顶面距地45公分高,作为室外座椅的花坛
45cm-high concrete-topped planter serving as outdoor seating
在东北角的空地上,设置了国际标准尺寸的半场篮球场,并铺设8mm厚的专业硅PU运动场地地面。在我们走访徐大村的时候,曾看到村民家门口这么有记忆的篮球架。希望在改善乡村运动设施的时候,这些原本非常有生命力的简易设施还能得以保护,在乡村共生。
新建建筑都是红砖砌筑的清水砖墙,红砖板墙的角部在上下做了一些变化,3.9m以上做内退1/4砖的处理,这样,即便在抬高的舞台区也能保证人们伸手够不到,以免攀爬、损坏。这是整个建筑群唯一的花砌,保证了建筑几何上的力量感、简洁度和乡村建筑的朴实度,用最少的手段避免现代建筑普遍的单调感。
设计对老的党群服务中心和卫生室外立面进行简单梳理,让开窗更大更整齐,内部空间结构并没有做太多的改动,保留二楼质地较好的瓷砖地面,剩余的部位简单处理,墙面刷新。
综合大厅 / Comprehensive Hall
会议室 / Meeting Hoom
卫生室 / Clinic
实体模型照片/ Physical model photo
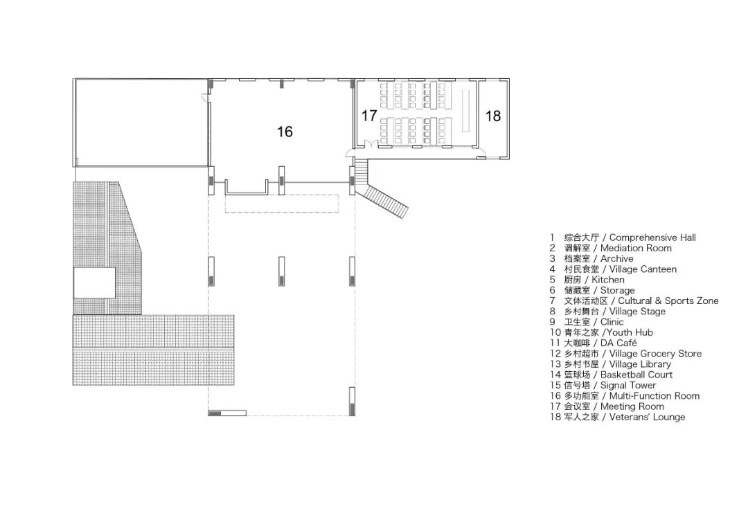
一层平面图/ F1 floor plan
二层平面图 / F2 floor plan
感谢所有参加施工的工人师傅们,我们尽可能多地收集并在文末列出他们的名字。感谢支持并促进项目顺利实施的利辛当地各级领导和工作人员。感谢承建单位安徽睿驰建设工程有限公司,武朕武总和现场施工经理石结焱石工带领团队为项目的高品质建成而倾力投入。特别感谢张静涛县长为徐大村部项目从立项、讨论设计到建造细节等各个环节的把控,经常亲临现场帮助施工高质高效的推进。
项目信息
建筑面积:1416平方米
基地面积:2357平方米
设计时间:2025年初
完工时间:2025年11月中旬
总设计:Endless Space 建筑事务所
主持设计师:林锋
项目团队:吴成伟、伦曼瑶、洪枫林、刘阳
结构顾问:张小玮
建筑摄影:ESA
施工总承包:安徽睿驰建设工程有限公司 人员:武朕、石结焱、李市委、康雨涵
技术人员:吴海参、张国伟、钱永伦、马松、王化勇
土建施工:云贺松、吕玉川、丁勇、汝东、叶书奎、毛伟、王汉勇、钱言、魏朝林、霍素云、刘西臣、刘朝领、张永军、王梅花、李红、张明朝、翟玉芳、周芳、郭红艳、刘明华、韩素侠、董兰平、蒋红军、徐芳、宋侠
水,电,油漆,拆除:许凯、孙明飞、孙乐乐、武耀、孙亮、张亮亮、刘明付、胡鹏、胡刚、李友情、张丽丽、武有伟、汪胜梁、张毛妮、王金凤、张玉喜、姜东东、姜苗苗、刘鹏、赵玉峰、高素玲、武有为、武庆春、孙侠、李加楠、闫化刚、朱辉
门窗:安徽富亚玻璃技术有限公司 人员:夏晨阳、高行、朱峰、李威锋、刘彪、张化轩
护栏:李允峰、张洪波、余秀侠、张兰江、王标
磨石施工:王栋、王玉魁、王玉丰、王玉华、王凤斌、王守峰、赵丽
蓝球场施工:高俊友、陈勤、孙胜良、孙辉、孙胜停、高群翔
防水施工:祝先洋、祝先秋、武佳佳、闫秀秀、郭冰峰、王鹏
挖机:姜典、黄振飞
沥青地面施工:安徽坚赞建筑工程有限公司。人员:樊利洪,江涛,金碧辉,江文茜,刘阳
客服
消息
收藏
下载
最近








































































