查看完整案例

收藏

下载
IOI Boutique 位于杭州亚奥万象天地街区,是一处沿街展开的两层商业空间,拥有两面临街界面。业主希望将其打造为一间具有“美术馆气质”的生活方式买手店:空间不以高密度陈列为目标,而是保持克制与留白,能够随着内容不断调整、重组与更新,如同一个持续被激活的容器。
IOI Boutique is a two-storey commercial space located along the street at MixC Aoyun District in Hangzhou, with two façades facing the city. The client envisioned the project as a lifestyle boutique with a gallery-like atmosphere. Rather than pursuing dense displays, the space is conceived with restraint and openness, allowing it to be continuously adjusted, reorganised and renewed over time, acting as an active container for changing content.
▼外立面全景,Panoramic View of the Facade© Wen Studio
▼外立面正视,Street facade coffee box © Wen Studio
在这一前提下,设计并未试图通过装饰性语言塑造风格,而是从场地的开放性、可变性与空间体验出发,思考如何在满足零售与运营功能的同时,保留大开间的通透属性,并为使用者提供一种更具探索性的购物体验。空间的核心问题由此被明确:如何在一个功能复杂的商业空间中,既容纳必要的使用需求,又不牺牲场地的整体性与开放感?
Within this framework, the design avoids decorative language as a means of expression. Instead, it focuses on the openness of the site, its capacity for transformation, and the experience of movement through space. The central question becomes how to accommodate the functional demands of retail and operation while preserving the continuity of a large open interior, and at the same time offering a more exploratory mode of shopping.
▼入口正面,Entrance front view © Wen Studio
设计策略并非通过实体隔断对空间进行切碎,而是通过精确的功能规划与结构性构筑,在保持通透性的同时,引导路径与视线的变化。功能空间被集中并合理组织,释放出连续的大尺度公共区域;展陈系统与家具被设计为可移动、可重组的模块,使空间在不同阶段、不同内容介入下始终保持开放状态。购物不再是线性完成的行为,而成为一种在不同尺度、不同方向中展开的探索过程。▼爆炸轴测图,Axial measurement diagram of the explosion © 蒋杰设计事务所
Rather than fragmenting the space through solid partitions, the project relies on precise functional planning and architectural elements to guide circulation and sightlines while maintaining overall transparency. Service functions are carefully organised to release continuous public space at a larger scale. Display systems and furniture are conceived as movable and reconfigurable components, allowing the interior to remain open and adaptable across different phases and uses. Shopping is therefore no longer a linear process, but an experience unfolding through varied scales and directions.
▼一楼全景,Panoramic View of the Ground Floor © Wen Studio
▼一楼局部,Partial area of the first floor © Wen Studio
▼一楼收银区,1st-floor cashier area © Wen Studio
场地中央设置了一组开放折叠的悬浮楼梯,作为连接一、二层的核心构筑物。它不仅承担上下通行的功能,更以建筑体量的方式介入空间,成为场所的组织中枢。楼梯围绕中庭展开,形成回字形的购物动线,以最小的体量切分出清晰却不封闭的空间秩序。在本案中,垂直动线不再是被动的交通设施,而被重新定义为空间体验的结构轴线。
At the centre of the space, an open, folded, floating stair is introduced as the primary architectural construct connecting the two floors. Beyond its role as circulation, the stair acts as the organisational core of the project. It unfolds around the atrium, forming a looped circulation path that defines spatial order without enclosure. In this project, vertical movement is no longer a passive connector, but becomes the structural axis of spatial experience.
▼二楼展示区,2nd-floor exhibition area © Wen Studio
▼二楼,2nd-floor© Wen Studio
楼梯沿途设置多个悬浮平台,人们可以在不同高度停留、观看与回望,获得多角度的空间视野。“观看”成为行进的一部分,路径的展开生成空间叙事,楼梯也由此成为整个场所的视觉核心。
Several suspended platforms are integrated along the stair, allowing visitors to pause, observe, and look back at the space from different heights. Viewing becomes part of movement, and the unfolding of the path generates a spatial narrative. The stair functions simultaneously as infrastructure, spatial background, and visual focus.
▼楼梯内部,Stair interior © Wen Studio
▼楼梯局部 ,Stair partial view© Wen Studio
在街角的 L 形位置,设计打开了原本封闭的部分玻璃幕墙,置入一个 3×3×3 米的方盒子,并向街道方向外挑 50 厘米,使咖啡馆从室内延伸至街区。这一明确的几何体量并非装饰性元素,而是一种界面策略,使买手店与城市日常产生更直接的联系。咖啡吧台同时服务于室内与室外,沿街设置的抬高木地板界定出户外区域,形成非正式的停留与交流场所。人们在此休息、相遇与交谈,从而模糊室内与室外、正式与非正式之间的界限。咖啡馆不仅提供咖啡,也提供精心挑选的食物与饮品,使其成为一种日常而持续发生的使用场景。
At the L-shaped street corner, part of the previously sealed glass façade is opened. A 3 × 3 × 3 metre cubic volume is inserted and cantilevered 50 centimetres toward the street, allowing the café to extend from the interior into the public realm. This clearly defined geometric volume is not conceived as a decorative object, but as a spatial interface that connects the boutique to everyday street life.The coffee counter serves both inside and outside. Along the street edge, a slightly raised wooden platform defines an outdoor zone for informal use, where people rest, meet, and converse. In this way, the boundary between interior and exterior, as well as between formal and informal occupation, is deliberately softened. The café offers not only coffee, but also a curated selection of food and drinks, supporting its role as a place for repeated, everyday use rather than a supplementary function. Through the combined presence of the stair, the café, and the functional volumes, the space is organised as a sequence of continuous yet non-symmetrical paths and viewpoints. Different spatial scales appear alternately along the route, making shopping closer to an exploration within architecture than a clearly directed act of consumption. The space does not dictate content, but provides a framework that allows it to evolve over time.
▼外立面咖啡盒子,Facade coffee box © Wen Studio
▼咖啡盒子, coffee box© Wen Studio
▼入口咖啡盒子,1st-floor entrance coffee box © Wen Studio
▼区位图,location © 蒋杰设计事务所
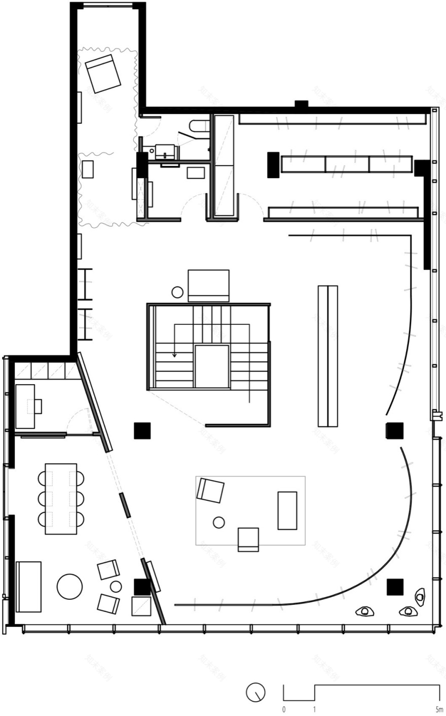
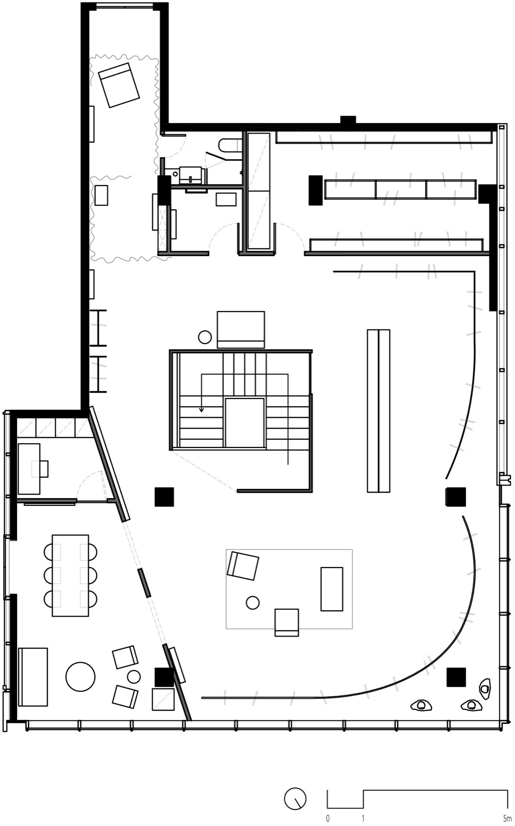
▼一层平面,ground floor plan© 蒋杰设计事务所
▼二层平面,first floor plan© 蒋杰设计事务所
▼剖面,section© 蒋杰设计事务所
项目名称 / IOI设计师时装买手集合店
项目地址 / 杭州亚奥万象天地街区
主创设计 / 蒋杰
设计公司 / 杭州蒋杰设计事务所 Jiangjie 0ffice
设计团队 / 李崇炜 葛欣悦
完工时间 / 2025.10
项目面积 / 400㎡
施工单位 / UHJOH
灯光配合 / 荣熙照明
主要材质 / 镀锌板 水泥基自流平地面 铝板喷拉丝漆 老柚木地板 乱纹不锈钢
摄 影 / Wen Studio
Project NameIOI Designer Fashion Boutique
LocationMixC Aoyun District, Hangzhou, China
Lead ArchitectJiang Jie
Design FirmJiangjie Office, Hangzhou
Design TeamLi Chongwei, Ge Xinyue
CompletionOctober 2025
Gross Floor Area400 m²
ConstructionUHJOH
Lighting DesignRongxi Lighting
Main MaterialsGalvanized steel, cement-based self-leveling flooring, aluminium panels with brushed finish, reclaimed teak flooring, patterned stainless steel
PhotographyWen Studio
客服
消息
收藏
下载
最近
































