查看完整案例

收藏

下载
香港中文大学(深圳)二期的规划设计,强调校园环境与周边山水的联系,同时注重建筑群组和单体之间的协调。设计通过高低错落的体量组合,形成不同形式的开放院落,建立兼具人文尺度与自然生态的校园空间。2023年,一期校园建设正式完成,整个校园呈现出在地生长的自然景象。二期延续了一期“山、林、院”的规划构想,顺应狭长形基地依山开展的绿轴架构,在校园空间的前、中、后段,分别形成四组各具特色的建筑群组。为应对二期高密度的功能需求,设计充分利用校园周边剩余的三个地块,在整体松散延展的场地中,植入四个紧凑的空间群组。它们分别是:校门左侧的教学院落、右侧的礼堂和会议中心、尽端的科研楼与钟塔广场,加上一期完成的中庭广场,共同构成线型山水校园中的四个关键节点空间。
© 王维仁建筑设计研究室
The Phase II design of CUHK-Shenzhen enhances the campus connection with its surrounding landscape, as well as the coordination of parts with the whole for building clusters. Through alternating building types of various heights, the design establishes new forms of open courtyards moderating campus scale with natural environment. The overall layout of the new building clusters follows the green mall parallel to the mountain green, forming four campus nodes each responding to their specific programme and contexts: the Teaching Complex on the left of the campus entrance, the Assembly Hall – Conference Complex on the right, the Central Quad in the middle of the campus mall, and the Research Complex with the Bell Tower Plaza at the far end.
▼项目鸟瞰,aerial view of the project© 直角建筑摄影
城市界面与自然渗透:一座山水交织的校园
Urban and Natural: A Campus Interwoven with Landscape
在一期规划中,港中大(深圳)为保持狭长校园内绿色山体的视觉延续性,将主要的教学体量以长条型的序列空间形式,布置在远离山体的东南侧,形成连续的教学楼院落。这一策略不仅塑造了清楚的城市界面,也让西北侧的自然山水完整地向校园展开。校园中的公共建筑——如图书馆、学生中心、行政楼、会议中心与逸夫书院——则以独立体量如“亭子”(pavilion)一般沿着山体展开。连绵的山体透过建筑之间的视觉通廊,将山景、水体与自然生态引入校园绿轴。二期在此基础上,进一步强化群组之间的空间联系,形成疏密有致的校园肌理。设计以绿轴中的林木、草地为骨架,延伸出四个建筑群组,并借助连廊、广场、水体与平台,将松散院落组织成紧凑群组。为应对开发密度需求,营造出同样舒适的使用体验,建筑群采用了低、中、高三种层高策略。在构建三维复合院落的同时,设计利用不同标高的平台院落,以框景、台阶、连廊等方式实现“观山近水”,让自然山水成为校园空间的一部分。▼校园体量布局与山水地景,The layout of the campus volume and the landscape of mountains, waters and land © 王维仁建筑设计研究室
In the Phase I planning, to preserve the visual continuity of the green mountain range within the elongated campus site, CUHK-Shenzhen arranged the main teaching volumes as a series of elongated, sequential spaces along the southeastern side, away from the mountains, forming a continuous complex of academic courtyard buildings. Public buildings within the campus were arranged as independent volumes, unfolding along the mountains like individual “pavilions.” The Phase II design strengthens connections between courtyard complexes while creating four densified campus clusters, each with their distinct characters. Penetrating building clusters from the campus west, natural landscape extends through the central green mall into the courtyard sequence to the east. Working with the existing campus framework, the Phase II design adopts levelled corridors and platforms, sky-patios and water landscape, establishing new forms of courtyards by incorporating tall buildings into compact clusters. The design adopts a three-level height strategy: low, medium, and high. It coordinates the upper and lower campus grounds with the 12-meter-high walkways, the 18-meter-high patios, the 24-meter-high platforms, and the 60-meter height campus landmarks, facilitating connectivity among the three-dimensional compact architecture while bringing nature into the multi-layered campus.
▼东门框景,east gate© 直角建筑摄影
▼教学院落与会议中心,teaching complex and conference center© 直角建筑摄影
教学组团:开放围合,悬浮交错
Teaching Complex, CUHK, Shenzhen
教学楼院落组团由四栋建筑以风车型方院布局围合而成,两高两低的体量交错布置,既衔接入口校园空间,又界定了街角的标志性,形成开放而多层联系的立体院落。高层和多层体量交替变换朝向,以协调不同的功能与周边山体景观,连接校园入口和一期建筑,并通过在街角抬升体量,形成开放的“悬浮盒子”与入口台阶。“悬浮盒子”不仅是校园面向城市的标志建筑,同时也与大台阶共同成为连接校园与城市的过渡空间。抬高的处理,引入校外的山景自然与夏季东南风,为学生提供通风遮阳的活动场所。教学楼院落组团位于校园入口广场左侧,与右侧的会议中心组团,形成校门轴线两侧的动态均衡。院落内设有两个不同标高的地面层,分别连接校园外侧车道环线与校园中心绿轴,向公共空间打开。
▼教学院落组团场地轴测,teaching complex AXO© 王维仁建筑设计研究室
The Teaching Complex is composed of four masses forming a semi-enclosed yard. Considering the different programmes and the surrounding landscape, high-rise and multi-story buildings are alternately arranged and oriented. The four structures create an interlocking windmill-shaped courtyard that connects the campus entrance, while adopting the floating lecture theater box as the corner landmark. The entire complex serves as a three-dimensional courtyard unit that combines openness with multi-level connections, located on the left side of the entrance square and echoing the auditorium volume on the right, achieving a dynamic balance. Inside the cluster, multiple outdoor platforms at varying datums are integrated, providing porosities within the mass. Additionally, the teaching complex connects to the conference complex to the right and other academic buildings through a corridor system, with these semi-outdoor spaces offering students more active and relaxing areas.
▼“悬浮盒子”鸟瞰,floating box aerial view© 直角建筑摄影
▼建筑外观,buildingappearance© 直角建筑摄影
▼入口,entrance© 直角建筑摄影
▼连廊,corridor© 直角建筑摄影
礼堂与会议中心:临水而筑,平台观景
Conference Complex, CUHK, Shenzhen
礼堂与会议中心两个建筑体量,利用校园角落保留的自然水塘作为转折点展开布局。设计以水塘为起点,借助礼堂门楼的框景作用,连接校门广场与山体湖泊。同时,会议中心通过竖向中庭串联大小会议厅与多层平台,经由临湖连廊将水塘与校园空间融为一体。礼堂建筑位于校门右侧,以L型高低体量组合,利用标志性的门楼框景衔接校门廊道,整合入口广场与周边环境。筒状的礼堂空间形成视觉通廊,底层学生餐厅朝外侧水塘开敞。前厅组织大门和侧门入口及看台空间,配合礼堂顶部的三角形天窗和结构与遮阳系统,不仅满足数千人毕业典礼的使用需求,也成为学生日常观景与活动的立体公共空间。与之呼应的会议中心位于水塘转角,同样采用L型体量,容纳低层会议与高层办公住宿功能。入口的框景穿廊,不仅可以眺望远山湖景,而且通过台阶与水岸衔接生态水塘。大厅内挑高的天窗主梯,串联各层会议空间,同时将活动延伸到三、四层的观景院落,形成低、中、高的策略平台,与屋顶花园相呼应。设计融合场地景观,保留了湖泊、树木以及与附近山体的视线通廊。不同标高的平台分别朝向生态水塘与山湖框景,将绿色山景与校园入口连成一体。
▼礼堂与会议中心轴测,conference complex AXO© 王维仁建筑设计研究室
The Conference Cluster is composed of two buildings: an auditorium hall and a conference centre, with offices, classrooms, and a student canteen included. The overall design harmonizes with the site landscape, preserving views of the lake, trees, and surrounding mountain corridors. A notable entrance frame connects the campus gate square to the surrounding environment. The natural pond within the site serves as a centre point for the two masses. The lakefront corridors and vertical atriums of the auditorium extend meeting rooms outdoors, with various elevated platforms facing the lake, framing views of the water while linking the mountain greenery to the campus entrance. The conference centre connects large and small meeting halls through a central atrium, linking several outdoor platforms at different elevations, and is joined by lakefront corridors that connect the two buildings, integrating the natural environment with the campus space.
▼鸟瞰,aerial view© 直角建筑摄影
▼建筑外观,buildingappearance© 直角建筑摄影
▼大厅,hall© 直角建筑摄影
▼礼堂,atriums© 直角建筑摄影
中庭广场:观山引水,多层连廊 Central Quad, CUHK, Shenzhen
由图书馆、学生中心与序列教学院落围合的中庭广场,通过上下层的廊道整合高差,衔接校园二层连廊系统,利用图书馆与学生中心建筑之间的空间,以荷花池水面将后山的自然山水引入校园。
Framed by the Library, Student Centre, and a sequence of teaching courtyards, the Central Quad integrates the site’s elevation changes through multi-level corridors that connect to the campus’s second-floor walkway system. Capitalizing on the opening between the buildings, the design draws the natural landscape of the rear mountain into the campus across the surface of the lotus pond.
▼图书馆与学生中心,Library and Student Centre© 张超
中庭广场两侧的图书馆与学生中心形成方型回廊,与下沉的中庭广场形成校园的核心公共空间。地下一层通道设置超市、书店等生活设施,连接学生中心和教学楼底层;上部连廊和天桥则联系不同建筑,成为三维复合的建筑景观体。中庭广场本身作为“虚”空间,却是功能活跃的“地景”建筑,经由台阶广场与缓坡联系校园绿地,以草地、树林与水池联系南北建筑群,维系校园东西向绿轴的连续性。
While the Central Quad itself is conceived as a “void” space, it functions as an active “landscape” architecture, connecting to the campus green belt via stepped plazas and gentle slopes. Through lawns, trees, and ponds, it links the northern and southern building clusters, maintaining the continuity of the campus’s east-west green axis.
▼学生中心与连桥,Student Centre andwalkway© 张超
▼图书馆中庭,Atrium of the library© Wade Zimmerman
▼学生中心多层平台,Multi-level platform of the student center©直角建筑摄影
科研楼与钟塔:山势层叠,广场地标
Research Complex, CUHK, Shenzhen
科研楼以两组平行的高低体量,通过转折与展开面对山景与校园,基座顺应地形层层跌落,以连廊连接钟塔广场,形成校园尽端的对景。平行体量分别面对后山与城市,透过体量的转折,合为一体面对校园。体量之间和狭长花园平台高低错落,引导中庭对流并连接背后山体。科研楼的平面呈半围合L型院落,室内中庭以水平展厅与竖向大堂组合,引入天光,并利用层层上升的台阶,将人引向室外平台,远望青山,成为科研实验的交流、研讨与休憩场所。位于校园台地上的科研楼,顺应自然地形,经由层层平台、连廊及山径,衔接至校园中轴底端的钟塔广场。钟楼以密檐造型营造层层上升的视觉意象,与广场台阶、草地共同构成校园轴线的端景,与科研楼形成一前一后,一大一小的校园地标,将校园空间想象延伸至远山。
▼科研楼与钟塔广场轴测,research complex AXO© 王维仁建筑设计研究室
The Research Complex is a courtyard composed of two parallel volumes of varying heights, which unfold to face the mountain views and the city. The garden terrace platforms between these parallel volumes are arranged at different elevations, facilitating airflow while conforming to the existing natural terrain of the mountains. The Research Complex is situated on a higher terrace within the campus, connected to the central axis’s Bell Tower Plaza by a series of ascending pathways and corridors. This creates a landmark of twin towers, offering a sequential visual endpoint along the axis and directing campus space toward the distant mountains. The floor plan of the research building features a semi-enclosed open courtyard. The interior courtyard space includes multiple interconnected areas at varying heights, with platforms and open volumes that provide natural light, ventilation, and spaces for activities, offering resting areas and porosities for research and experimentation works.
▼钟楼,tower©直角建筑摄影
▼建筑外观,buildingappearance© 直角建筑摄影
▼外观细部,buildingappearance details© 直角建筑摄影
▼楼梯间,staircase©直角建筑摄影
院落平台:校园的连接与过渡
Transition and Connection: From Courtyards in Plan to Patios in Section
在港中大(深圳)二期高密度、小地块的紧凑条件下,几个建筑组团通过不同的高低组合方式,以风车方院、转角框景、高低平行的围合形式,结合地形、水塘与山体,调控尺度宜人的平台院落。配合校园上下两层地面以及6米、12米高的连廊,各组团在12米与18米的标高上设置了过渡性的平台院落,联系24米高的屋顶花园。随着层高密度的增加,平面围合的合院,转化为剖面平台关系的策略。这些平台院落,不仅协调尺度、包容自然,更成为连接与过渡校园空间的重要媒介。在高密度、大体量的多层校园建筑中,它们成为重要的公共与半公共空间,并在湿热的华南气候中,提供遮荫、避雨、通风与采光的舒适场所。港中大(深圳)校园的设计,反思了许多大型校园依赖轴线、功能、分区而采用多层或高层建筑类型的做法,探讨如何利用围合、连接、间隙等空间策略,将自然生态引入密集的城乡校园之中。二期的设计着重建筑群组之间的联系,以林荫草地、广场为架构,借助连廊、水体与平台将松散的院落组织成相互联系的建筑群组。设计进一步将自然山水融入多层级的校园空间,建立起三维立体、序列丰富的复合校园系统,开启建筑、景观与城市空间的良性互动。
The design of architecture clusters for the Phase II, under high density and compact sites, explored various types of high and low volumes, including windmill courtyards, corner framing views, and high-low parallel enclosures, integrating the terrain, ponds, and mountains to create platform courtyards with sensible scale. Coordinating with the campus’s upper and lower levels, as well as the 6-meter and 12-meter-high campus corridors, these building clusters established transitional platforms at heights of 12 meters and 18 meters, linking to a 24-meter-high rooftop garden. As the density and floor heights increase, the courtyard spaces measured though plan shifts to a datum strategy based on sectional relationships. With the capacity of coordinating scale and embracing nature, the courtyards transform into platforms at different levels, acting as mechanisms for spatial connection and transition for campus spaces. Within the high-density, large-volume multi-story buildings, these platform courtyards become crucial public and semi-public spaces for campus life, providing shaded and ventilated spaces in the humid and hot climate of South China. The three-dimensional spaces of the Courtyardism, connected through walkways and hallways, are organized into a series of multi-layered urban spaces accommodating nature and ecology. Fostering the interaction between architecture, landscape and urban space, Courtyardism embodies the notion of architectural urbanism for contemporary cities in China.
▼模型,model© 王维仁建筑设计研究室
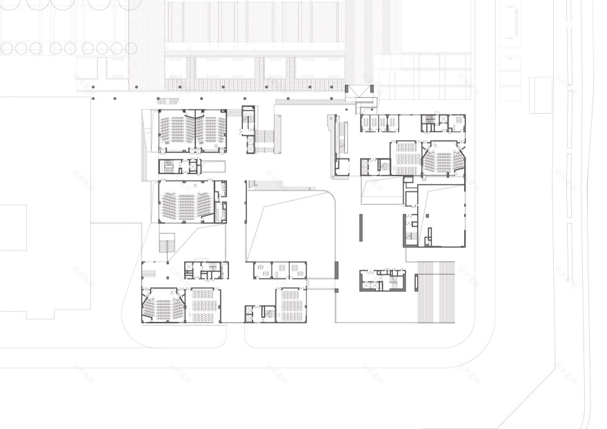
▼港中文深圳校园总平面图,master plan ofThe Chinese University of Hong Kong in Shenzhen© 王维仁建筑设计研究室
▼校园剖面,campus section© 王维仁建筑设计研究室
▼中庭广场学生中心与图书馆剖面,student center and library in the atrium square section© 王维仁建筑设计研究室
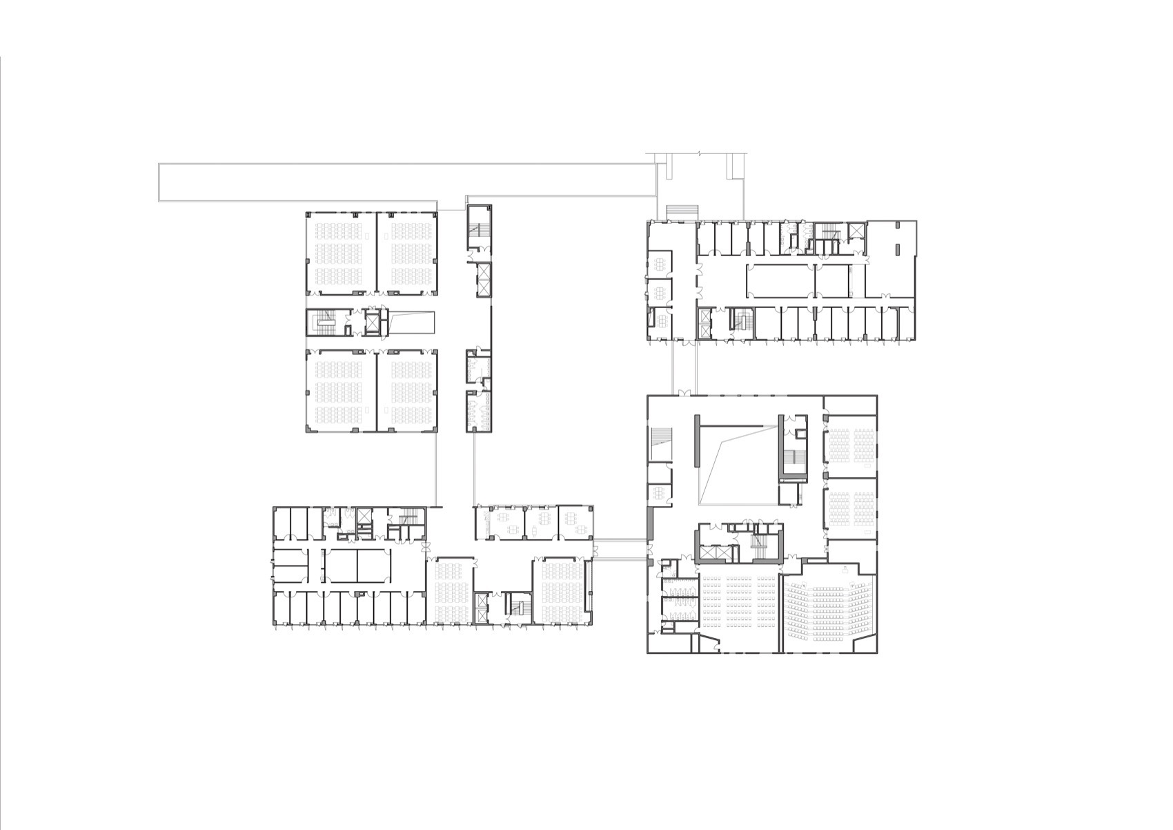
▼教学院落1F平面,1F teaching complex plan© 王维仁建筑设计研究室
▼教学院落2F平面,2F teaching complex plan© 王维仁建筑设计研究室
▼教学院落3F平面,3F teaching complex plan© 王维仁建筑设计研究室
▼教学院落剖面,teaching complex section© 王维仁建筑设计研究室
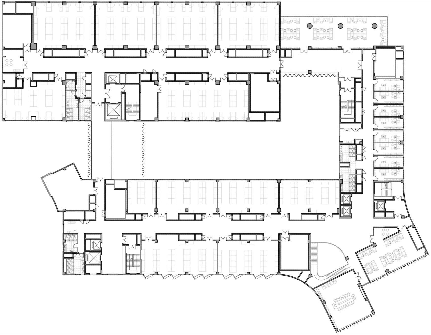
▼礼堂与会议中心1F平面,conference complex 1F plan© 王维仁建筑设计研究室
▼礼堂与会议中心剖面,conference complex section© 王维仁建筑设计研究室
▼礼堂与会议中心剖北立面,conference complex north elevation© 王维仁建筑设计研究室
▼礼堂与会议中心剖东立面,conference complex east elevation© 王维仁建筑设计研究室
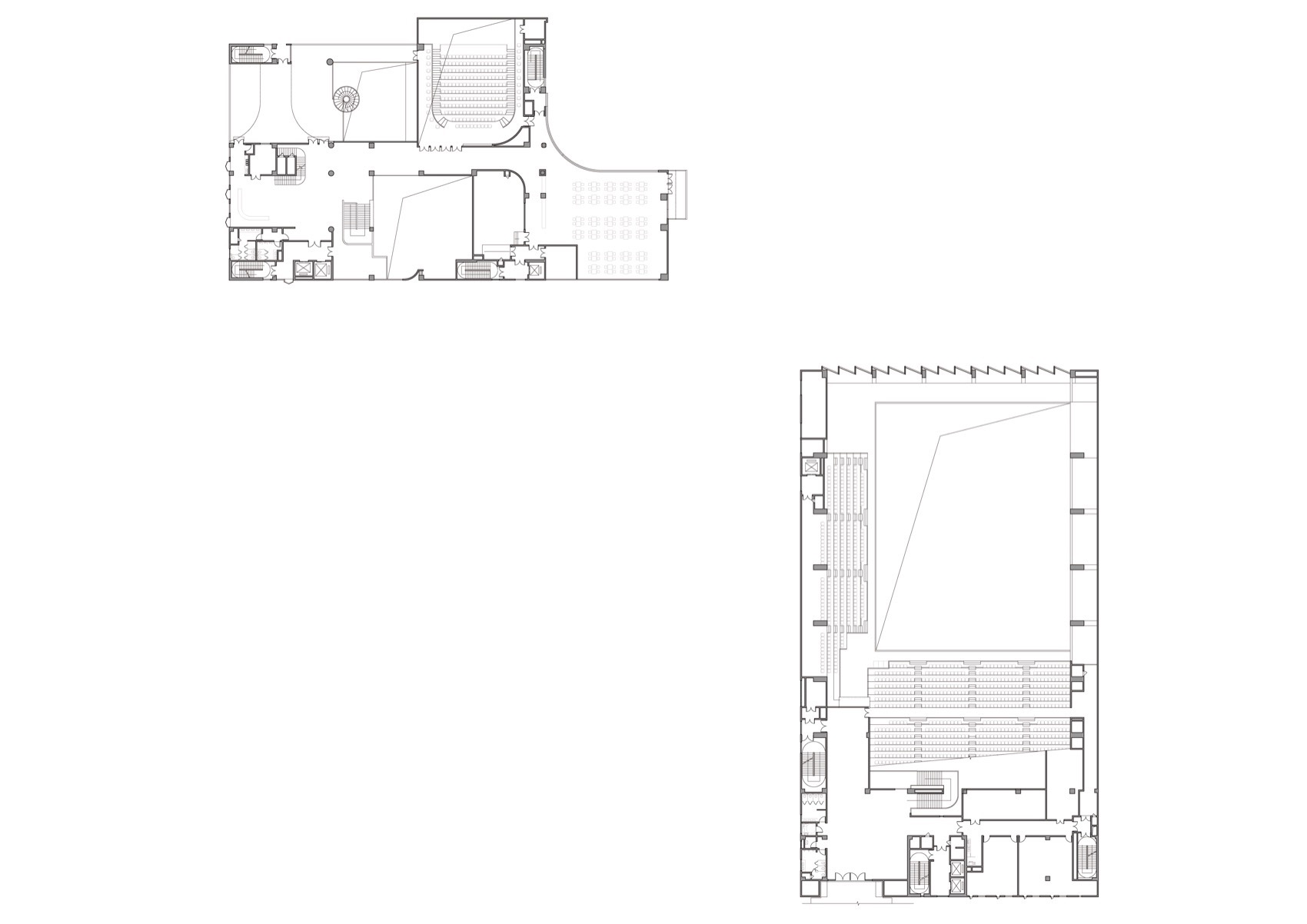
▼科研楼标准层平面,research complex floor plan© 王维仁建筑设计研究室
▼科研楼剖面透视,research complex sectional perspective © 王维仁建筑设计研究室
完成时间:2024.01
地址:深圳市龙岗区
建筑面积:267,180 m2
占地面积:78,926 m2
设计团队:王维仁、钱健石、苏畅、程骁、谢菁、孙玥榕、孙博超、徐萌、刘凯旋、张君宇、刘景豪、徐翥、林晓钰、李汇、罗致、李若希、赵晓旭、朱开元、苏子茗
合作单位:(二期)奥意建筑、(二期)奥雅纳(深圳)、(二期)深圳和域城建筑设计、(二期)广州田源集设计有限公司、(一期)严迅奇建筑师事务所、(一期)嘉柏建筑师事务所
施工单位:中国建筑集团一局
委托方:香港中文大学(深圳)、深圳市建筑工务署
摄影:直角建筑摄影、张超
Completion: 2024.01
Location: Longgang District, Shenzhen
Gross Area: 267,180 m2
Site Area: 78,926 m2
Design Team: WANG Weijen, QIAN Jianshi, SU Chang, CHENG Xiao, XIE Jing, SUN Yuerong, SUN Bochao, Yvonne XU, LIU Kaixuan, CHANG Jiun-Yu, Derek LAU King-Ho, Andrew XU Zhu, LIN Xiaoyu, LI Hui, LUO Zhi, LI Ruoxi, ZHAO Xiaoxu, ZHU Kaiyuan, SU Ziming
Collaboration: (Phase II) A+E Architects, (Phase II) Arup Shenzhen, (Phase II) Shenzhen Hitrus Design, (Phase II) Guangzhou Tianyuanji Design Co., Ltd., (Phase I) Rocco Design Architects, (Phase I) Gravity Partnership Limited
Construction: China Construction First Group
Client: The Chinese University of Hong Kong, Shenzhen, Bureau of Public Works of Shenzhen Municipality
Photography: Right Angle Image, ZHANG Chao
客服
消息
收藏
下载
最近















































































