查看完整案例

收藏

下载

翻译
Architects:TRAN TRUNG Architects
Area:80m²
Year:2025
Photographs:Khanh Nguyen
Manufacturers:Enic,Vietceramics,vicostone
Lead Architects:Tran Trung
Category:Houses
Lead Team:Ngo Quoc Vu
Design Team:Nguyen Dang Bon, Nguyen Ngoc Tien, Truong Tan Thien, Duong Van Lam
City:Da Nang
Country:Vietnam
Text description provided by the architects. As an experimental research model exploring the healing potential of a single-family dwelling within an urban context, Boi Bong House was conceived to accommodate the living needs of a young three-generation family while integrating a workspace for a small architectural design practice. The project is envisioned as a multifunctional dwelling, where living and working coexist, interact, and mutually nourish one another. Here, nature is no longer a static backdrop but becomes a vibrant and integral part of everyday life—present in every moment, every breath of the house.
Nestled at the end of a narrow alley, the house is intentionally detached from the chaotic frequencies of the city, allowing the human mind to settle into stillness and clarity. Inside, the living spaces unfold gently, engaging all the senses—sound, light, cooling breezes, subtle scents, and tactile experiences—harmonizing with the natural landscape and guiding inhabitants back to their own primal biological rhythms.
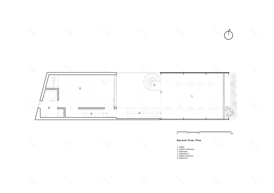
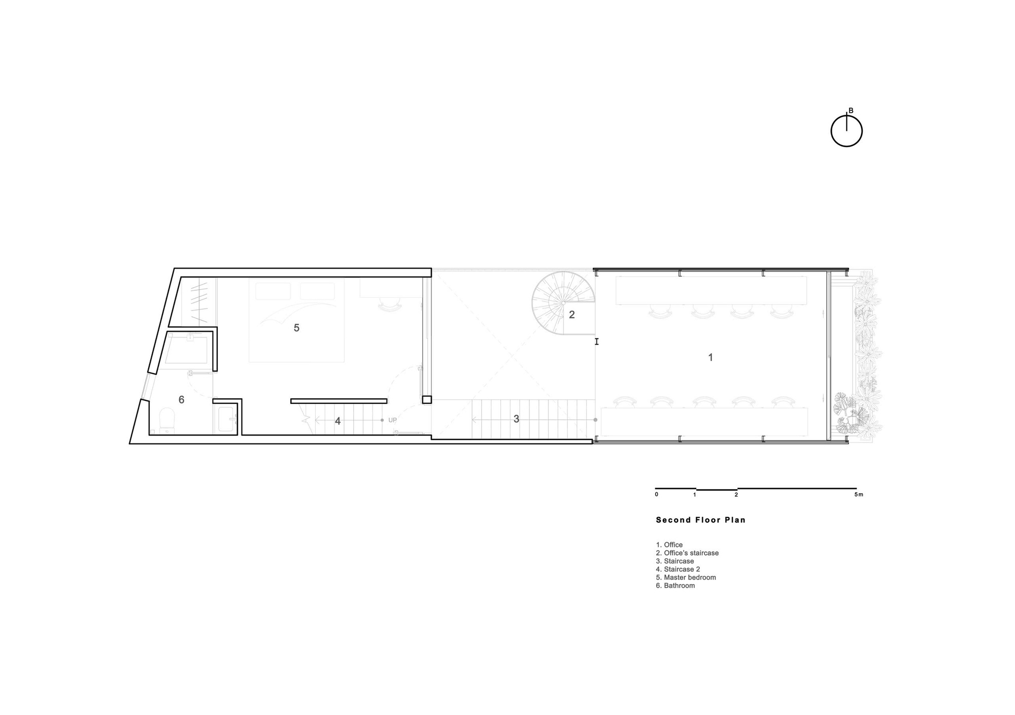
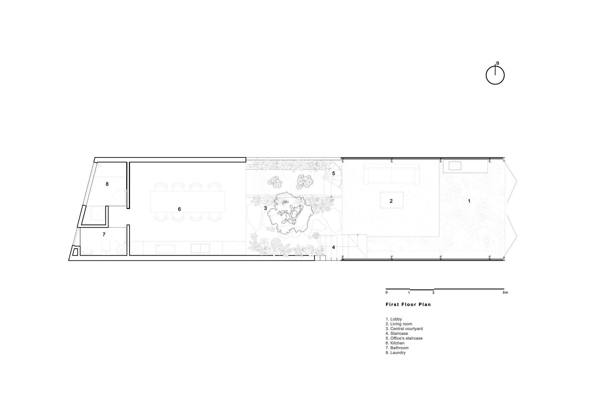
Within a modest footprint of only 80 m², the house emerges from the concept of symbiosis between living space and working space. Two seemingly independent volumes are connected by a central garden, where light, wind, nature, and people converge. Each passing day becomes a quiet symphony, orchestrated by the rhythm of life interwoven with work.
At the core of the house, the roof slopes inward, channeling rainwater from both sides through steel chains into a collection system that supplies irrigation and sustains the aquatic fish pond below. The water surface functions as a natural central cooling device: under strong sunlight, evaporation generates a passive air convection zone, drawing cooler air from the East and Northeast into the building, thereby reducing the overall indoor temperature during the intense Central Vietnam summer.
The crowing of roosters at dawn, sunlight filtering softly through the canopy, breezes brushing against the skin, rain drumming on the roof, and the sight of cattle wandering home at dusk—all rekindle primal emotions long lost in the urban condition. Children run freely in the courtyard, learning to love nature; the elderly find peace beside their vegetable garden; the young rediscover inspiration amid abundant natural light.
A harmonious and sustainable inner life is cultivated through the energies of nature—sunlight, wind, flowing water, falling rain, birdsong, the scent of wood, and the smell of earth. These sounds and fragrances awaken all the senses, particularly hearing, smell, and intuition. When the eyes are closed, the mind becomes more sensitive, allowing one to perceive the subtle transformations of nature hour by hour, day by day, season by season—rather than experiencing the world through sight alone.
The project serves as a message advocating sustainable architecture and the balance between human beings, nature, and energy—offering healing while nurturing a sense of environmental responsibility for future generations of architects.
Project gallery
客服
消息
收藏
下载
最近




























