查看完整案例

收藏

下载
C Y A - D E S I G N
原始结构
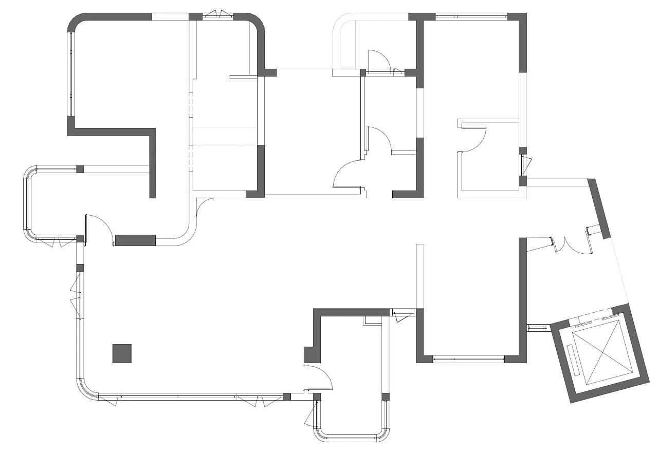
平面布局图
私家电梯厅的设计优势,为门厅的打造提供了更广阔的思路。其化作独立鞋物收纳区,妥善归置出行装备,从源头隔绝尘嚣,让居家空间始终保持洁净清宁;定制化艺术窗型巧思独具,既引自然光倾泻而入,点亮每一处角落,又以线条与光影勾勒出灵动质感,消解封闭空间的沉闷感,让入户第一境便兼具实用与雅致。
The design advantage of the private elevator lobby opens up broader possibilities for foyers. It transforms into an exclusive storage area for shoes and travel essentials, organizing them neatly to block dust at the source, thus maintaining a clean and serene home environment.
The customized artistic window design is ingeniously crafted: it floods the space with natural light, illuminating every corner, while its lines and play of light and shadow depict a vivid texture that dispels the stuffiness of enclosed areas. This makes the first sight upon entry a perfect blend of functionality and elegance.
以现代简约为骨架,叠加轻奢质感与东方审美的“留白”“对称”思维,没有繁复装饰。超大落地窗引入城市景观,室内暖调材质中和都市的冷硬,打造出“身居繁华、内心静谧”的居住体验;对称感的布局既显规整大气,又符合东方审美里的平衡感。
With modern minimalism as the framework, it incorporates light luxury texture and the Oriental aesthetic concepts of "negative space"and"symmetry",free from cumbersome decorations.Oversized floor-to-ceiling windows bring in the urban landscape, while warm-toned materials inside neutralize the coldness and hardness of the city, creating a living experience of "being in the bustle yet keeping a peaceful heart"; the symmetrical layout not only exudes neatness and grandeur but also aligns with the sense of balance in Oriental aesthetics.
会客区开阔通透,单人椅、L型沙发的组合兼顾社交与独处,电视墙的大理石饰面既是背景也是视觉焦点,功能区划分清晰且不割裂。
The reception area is spacious and open: the combination of single chairs and an L-shaped sofa caters to both socializing and solitary moments; the marble finish of the TV wall serves as both a backdrop and a visual focal point; functional areas are clearly defined yet seamlessly connected without fragmentation.
以现代大宅的尺度感为基础,融合轻奢质感与东方的“围合式”布局思维,既是烹饪/用餐区,也是兼具展示、社交功能的核心区。
Based on the sense of scale of a modern mansion, it integrates light luxury texture with the Oriental "enclosed" layout concept. It is not only a cooking/dining area but also the core area with both display and social functions.
中岛台面选用大尺寸奢石,自然的水墨纹理与客厅电视墙石材呼应,冷硬的石材台面耐磨易清洁,适配餐厨功能,同时成为视觉焦点。
The countertop of the central island is made of large-sized luxury stone, with natural ink wash textures echoing the stone material of the living room TV wall. The cool and hard stone countertop is wear-resistant and easy to clean, suitable for kitchen and dining functions, while also serving as a visual focal point.
休闲区是独属于业主的一方心灵栖隅。它与西厨岛台咫尺相依,日常静坐此间,取一盏茶饮、酌一杯清酒,步履所及皆是从容,无需远走,便得惬意。这片天地不设樊篱,非封闭之境:亲友相聚时,可纳欢声笑语;抬眸处,外界光景尽收眼底,却无隔阂之虞,唯有恰到好处的亲近。独处时,它是藏起喧嚣的私域;欢聚时,它是联结温情的纽带,于开合之间,藏尽生活的万般意趣。
The leisure area is a private spiritual haven exclusive to the homeowner. Adjacent to the western kitchen island, it offers a spot for daily quiet moments: one can grab a cup of tea or sip a glass of sake here, with ease at every step—no need to go far to find comfort. This space is unconfined and open: when friends and family gather, it holds laughter and joy; when one looks up, the outside scenery is fully visible without any sense of estrangement, only a perfect sense of proximity. When alone, it is a private domain shielding from the hustle and bustle; when celebrating together, it is a bond connecting warmth. Between openness and seclusion, it contains all the delights of life.
胡桃木饰墙的室内,雅马哈钢琴旁摆着条纹沙发与绿灯,内嵌酒柜隐于侧,暖光的氛围雅致又松弛。
In the room with walls paneled in walnut, a striped sofa and a green lamp stand beside the Yamaha piano; a built-in wine cabinet hides on the side, and the atmosphere, bathed in warm light, is elegant and relaxed.
以现代简约为基底,叠加新中式的人文底蕴与轻奢质感,无冗余装饰,靠对称布局、材质质感和灯光氛围营造“藏书 办公”的双重气质。
With modern minimalism as the foundation, integrated with the cultural heritage of neo-Chinese style and light luxury texture, it is free from redundant decorations. Through symmetrical layout, material texture and lighting atmosphere, it creates the dual temperament of "book collection office".
整墙书柜以中线对称布局,书桌居中、座椅对位,符合东方审美中的平衡感,也让空间更规整大气;墙面无多余装饰,仅靠材质与灯光填充,“留白”让空间呼吸感更强,也突出书籍作为书房核心的视觉重心。
The full-wall bookcase is symmetrically arranged along the central line, with the desk placed in the middle and the chair aligned with it. This conforms to the sense of balance in Eastern aesthetics and also makes the space more neat and grand; There are no redundant decorations on the wall, which is only filled with materials and lighting. The "blank space" enhances the sense of breathability of the space and also highlights books as the visual focus of the study.
卧室以温馨为主调,晕染出满室暖意。主灯与氛围灯错落布局,既保障了夜间充足照明,亦能随心切换光影,适配不同场景的需求,或明亮通透,或柔和静谧,每一种光感都妥帖呼应心境。
床尾墙面的装饰架,兼具审美与实用:既可陈列钟爱的艺术品,让方寸之间成为私藏的美学角落;亦能收纳常读的书籍,随手取阅,墨香与日常相融。于细节处藏巧思,让休憩之所,既有诗意点缀,亦不失生活本真。
The bedroom is dominated by a warm tone, infusing the entire space with cozy warmth. The main lamp and ambient lights are arranged in a staggered layout, which not only ensures sufficient lighting at night but also allows for free switching of light and shadow to meet the needs of different scenarios—either bright and transparent or soft and tranquil, with each light sensation perfectly echoing one’s mood.
The decorative shelf on the wall at the foot of the bed combines aesthetics and practicality: it can display beloved artworks, turning this small corner into a private aesthetic nook; it can also store frequently read books, within easy reach for browsing, blending the fragrance of ink with daily life. Ingenious ideas are hidden in the details, making this resting place adorned with poetic touches while retaining the authenticity of life.
衣帽间内独立设一方梳妆台,妆容精致后,转身便可从容搭配衣饰,无需辗转,让日常的梳妆与穿搭一气呵成,便捷又舒心。一面大面积全身镜伫立其间,不仅能清晰映照衣着细节,直观检视整体搭配是否妥帖;更以镜面的延伸之效,雕琢出独特的空间韵律,视线所及愈发开阔,光影流转间,整个衣帽间显得敞亮通透,仿佛被悄然拓宽了维度,实用与美感在此相融共生。
An independent dressing table is set up in the cloakroom. After perfecting one’s makeup, one can turn around to match clothes and accessories calmly without moving back and forth—making daily makeup and outfit coordination a seamless process, convenient and pleasant. A large full-length mirror stands tall here. It not only clearly reflects the details of clothing, allowing for an intuitive check on whether the overall match is appropriate; but also, through the mirror’s extending effect, shapes a unique spatial rhythm. The line of sight becomes increasingly broad, and as light and shadow flow, the entire cloakroom appears bright and transparent, as if its dimensions have been quietly expanded. Practicality and aesthetic beauty coexist and blend harmoniously here.
主卧的入户一隅,被悉心辟作一方专属阅读天地。大面积窗扇尽揽天光,将视野无限拓宽,佐以一杯咖啡或香茗,便拼凑出世间最悠然惬意的光景。晴日里,无需踏足户外,便能拥揽清风暖阳,坐享大自然的慷慨馈赠,让心在此处缓缓沉淀,偷得浮生半日闲。
The corner by the master bedroom entrance is carefully designated as an exclusive reading haven. Large window panes embrace the natural light, expanding the view infinitely—every glance meets brightness and clarity. And a cup of coffee or fragrant tea, one assembles the most leisurely and pleasant scene in the world. On sunny days, there’s no need to step outdoors; one can embrace the cool breeze and warm sunshine, enjoying the generous gifts of nature in comfort. Here, the heart settles gently, stealing a moment of peace from the busy bustle of life.
卫生间依循业主的生活习惯,采用利落的淋浴设计。虽空间不算阔绰,却于细节处暗藏巧思,墙面贴心打造收纳壁龛,将琐碎物件妥帖安放,让整洁与实用兼得。深墨绿的石材铺陈,既以耐磨耐脏的特质适配日常,又凭内敛的色泽晕染出低调的质感,于方寸卫浴间里,藏着不张扬的生活品味。
The bathroom is designed with a sleek shower in line with the homeowner’s living habits. Though not particularly spacious, it boasts thoughtful details hidden in every corner—storage niches are thoughtfully built into the walls to neatly stow away trivial items, achieving both tidiness and functionality.Adorned with dark emerald green stone, it not only suits daily use with its wear-resistant and stain-resistant properties but also exudes an understated texture through its restrained color. Within this compact bathroom space lies an unostentatious taste for life.
Project Name 项目名称 | TGC 新绿启境
Project Design 项目设计 | 曹瑜 CYAN-任峻宏 Frank
Location 项目地址 | 中国 成都
Design Drawing 设计制图 | Watson
Effect of Rendering 效果呈现 | BSTUDIO
Editor 文案编辑 | 赵璐Audrey
Area 项目面积 | 198
Project Time 设计时间 2025.09
Mailbox
地址:四川省成都市锦江区捌楼八号设计社区
客服
消息
收藏
下载
最近






































