查看完整案例

收藏

下载

翻译
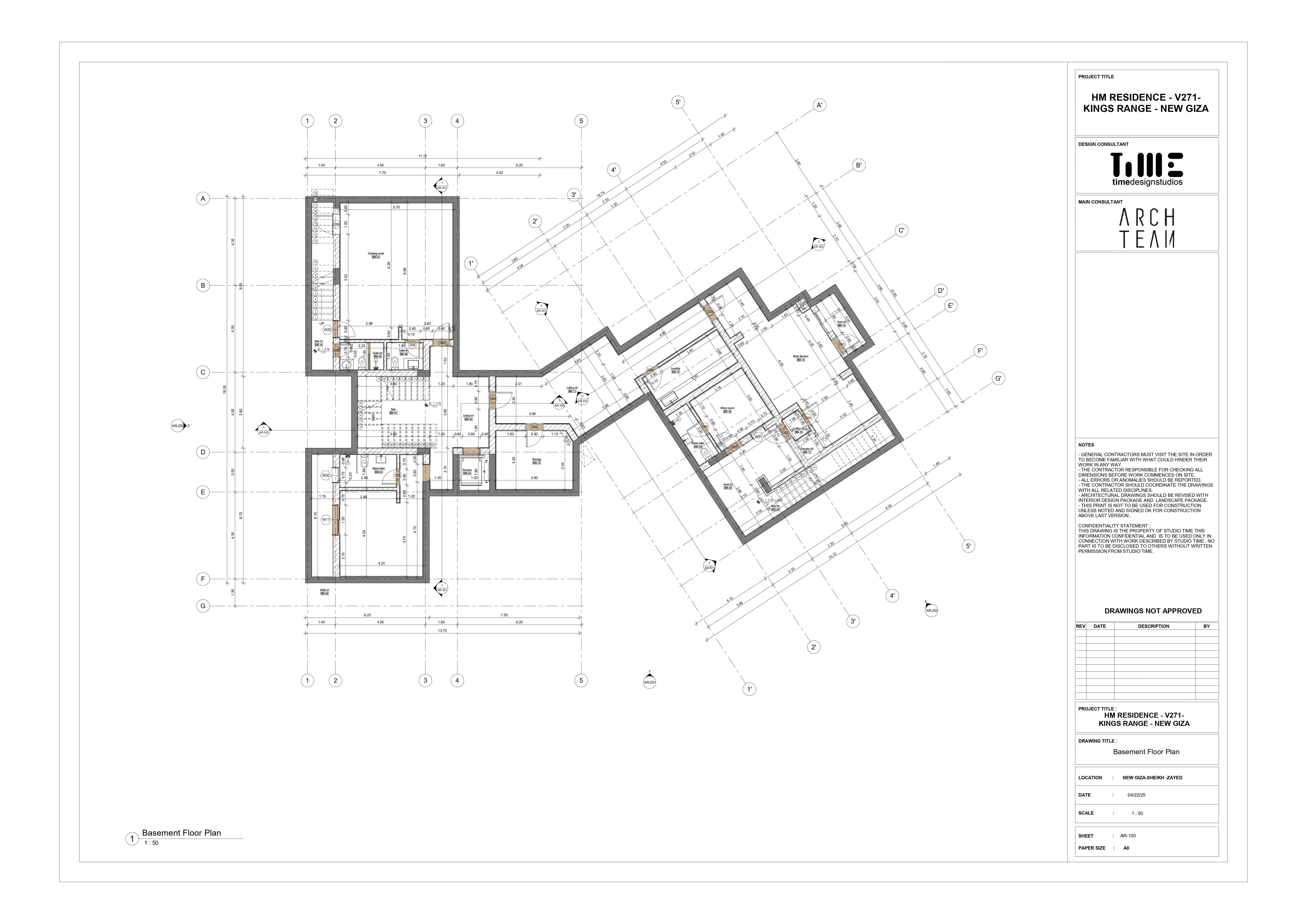
New Giza Modern Villa | LOD 350 Tender Package
A contemporary residential villa developed as a detailed tender package, focusing on constructability, coordination, and technical accuracy while maintaining the original architectural vision.
Project Type: Residential VillaLocation: New Giza – EgyptArchitectural Design: TILE StudioTender Drawings / LOD 350: ARCHTEM OfficeProject Phase: Tender Package (LOD 350)Tools: Revit | BIMDate: May 2025
DESIGNED BY TILE STUDIO
BIM REVIT MODEL
ARCHITECTURAL PLANS
ARCHITECTURAL ELEVATIONS
ARCHITECTURAL SECTIONS
v
VERTICAL DETAILS
ARCHITECTURAL GENERAL DETAILS
客服
消息
收藏
下载
最近
































