查看完整案例

收藏

下载
编者按:安野设计新作——Library Cocktail,从“图书馆”中汲取灵感,以“时间的剧场”为隐喻,用饱含故事感的设计语言,为人们提供了一处与自我对话的灵魂栖所。
在夜幕的褶皱中,有一处空间既属于文字,也属于酒精。它被命名为——Library Cocktail。
在这个空间里,阅读与品饮并不是彼此独立的两种行为,而是交织在一起的精神体验。
Library Cocktail并非单纯的酒吧,它更像是一个“品读空间”。在这里,你不仅可以品味美酒,还能沉浸于有趣的思想与对话中。
酒吧外立面
空间呈现
作为一种被赋予深度与意义的场所,Library Cocktail在设计上汲取了图书馆的灵感:图书馆是思想的庇护所,是知识与记忆的容器。在这个空间中,设计师巧妙地将图书馆的庄重与秩序感与酒吧的轻松氛围相融合,创造了一个既适合独自沉思,也适合社交互动的多维空间。它不仅是理性与秩序的容器,更是感性与幻想的流域。每一处细节都像是翻动书页的一笔,等待着被细细品读。安野设计的陈晨与吴国豪以“时间的剧场”(The Theatre of Time)为隐喻,将这个夜晚的空间塑造为一出关于时间与感官的戏剧,而人们在其中的每一次阅读、每一次举杯、每一次交谈,都是这场剧目中的精彩篇章。
安野设计联合创始人:陈晨与吴国豪
在安野设计看来,空间不仅是物质的构筑,更是时间的容器。Library Cocktail的诞生,源于他们对“理性与感性共存状态”的探讨:阅读象征理性,酒精延伸感性;当两者被置于同一语境中,便形成了一种新的精神秩序。
室内空间
Library Cocktail不仅是一个被消费的酒吧,而是一处可被阅读的场所。
“时间的剧场”意味着这个空间并非静止的建筑实体,而是一出关于时间、感官与意识的戏剧。人们在其中阅读、饮酒、交谈、沉默,如同演员在时间的舞台上完成各自的表演。每一束光的变化、每一次碰杯的声响,都是这场演出的章节。
室内空间
整个空间以黑白棋盘格地面展开,仿佛书页的节奏,也如时间的节拍。黑与白的对比,是理性的秩序;棋格的延展,则暗示生活的流动与偶然。
棋盘格地面与座位。步入其中,高挑的挑空与拱形吊顶带来纵深的戏剧感。空间比例经过细致计算——既保留了图书馆的庄重与仪式感,又融入了酒吧的松弛与暧昧。
高挑的挑空与拱形吊顶带来纵深的戏剧感
墙面以胡桃木饰面与深红丝绒相互交织,为空间注入触觉上的温度。中央的背光酒架散发出琥珀色的光晕,酒瓶与玻璃反射出的微光宛如时间流动的痕迹。光与酒液的交织,成为Library Cocktail最具识别性的画面——一幅介于梦与现实之间的流动影像。
空间呈现出梦与现实之间的流动影像。Library Cocktail的设计语言建立在“对比与融合”的基础之上。
材质的选择,是空间叙事的语法。胡桃木、不锈钢拉丝金属、大理石与定制织物在此相遇,彼此对话——胡桃木带来温度与岁月感;金属象征理性与冷静;大理石的肌理延伸出时间的深度;织物的柔软则赋予空间情绪与人性。
空间中多材质的对话
多重材质的叠加,使空间呈现出既复古又现代的复杂气质。雕塑与书架的引入,强化了“图书馆”的精神隐喻——象征知识、记忆与思考。它让酒吧超越了功能层面,成为思想与情绪交汇的容器。
空间中关于“图书馆”的隐喻
家具的挑选与布置,是Library Cocktail极具温度的部分。
设计团队没有追随流行的极简主义,而是回溯到更具时间感的美式复古语汇。复古、柔软的织物座椅,胡桃木桌,红色丝绒挂布,以及散布其间的古典吊灯,共同营造出一种低调而充满情绪的氛围。
更具时间感的语汇表达
墙面上点缀的田园风壁纸与画作,打破了空间的单一叙事,让人仿佛置身于私人书房或老宅客厅。那种温柔、略带故事性的装饰,使空间不再冷峻,而有了“生活的痕迹”
空间墙面所刻写的温度
最具诗意的,是那一处壁炉。它让人联想到冬夜、毛毯与书页的气味。壁炉前的几张椅子,似乎总在等待某位读者坐下——或许读书,或许只是静默地端起一杯酒。
壁炉传达出的意境想象
在Library Cocktail中,灯光是核心的叙事语言。光线不只是照明,更是一种情绪的语法。设计团队以“阅读的温度”为灵感,构建出多层次的光影系统
空间内的光影叙事
顶面的古典吊灯提供基础照明,暖色台灯点亮每一张桌面,隐藏光源潜伏在空间各处,让明暗在不知不觉中呼吸。整体光照保持低照度,但细节处的微光极为丰富,仿佛阅读时指尖掠过纸页的温度。
构建多层次光影系统
这样的灯光设计让人自然放慢节奏。每一次倒酒、每一次眼神的交汇,都被柔和地照亮。光成为时间的载体,让理性与感性在同一片阴影中共振。
光,让理性与感性在同一片阴影中共振
Library Cocktail的体验被设计成一段从理性到感性、从思考到沉醉的过渡旅程。
它并非仅是一个风格化的酒吧,而是一种被翻译为空间的哲学思考。
空间内部呈现
设计师陈晨希望通过设计让人重新理解“阅读”。阅读不仅是文字与思想的交流,更是一种进入他者世界、也回望自我的方式。
而饮酒同样如此——酒精放大了情感,使人更接近真实的内在。
通过设计让人重新理解“阅读”
当这两种行为被并置于同一空间,它们的意义被重新书写。
阅读不再限于书页,饮酒也不止于味觉。它们共同构成了一种关于存在的仪式感——在时间的剧场中,人与自我、人与他人、人与世界,完成一次又一次的对话。
阅读与饮酒,构成关于存在的仪式感
Library Cocktail并非刻意追求“设计感”的空间,它更像是一种生活方式的隐喻。
在空间内,慢下来感受夜晚。在被快节奏吞噬的城市里,人们渴望一种慢下来的方式去体验夜晚。也许是一本书,也许是一杯酒,也许什么都不做,只是静静坐着,感受光影流转。
空间内部呈现
安野设计通过这个项目,尝试回答一个关于当代空间的命题:——当世界越来越喧嚣,我们如何重建精神的秩序?
空间内部呈现
在Library Cocktail中,他们的答案是:让空间回到人心的节奏,让时间以更温柔的方式被感知。在这里,每一盏灯都在低声叙述,每一个座位都等待被阅读,每一杯鸡尾酒,都是一章未完的故事。
Library Cocktail——让夜晚,也拥有被阅读的方式。
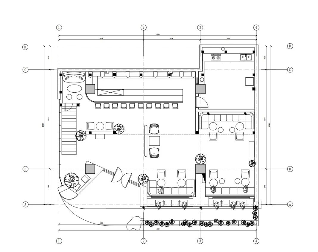
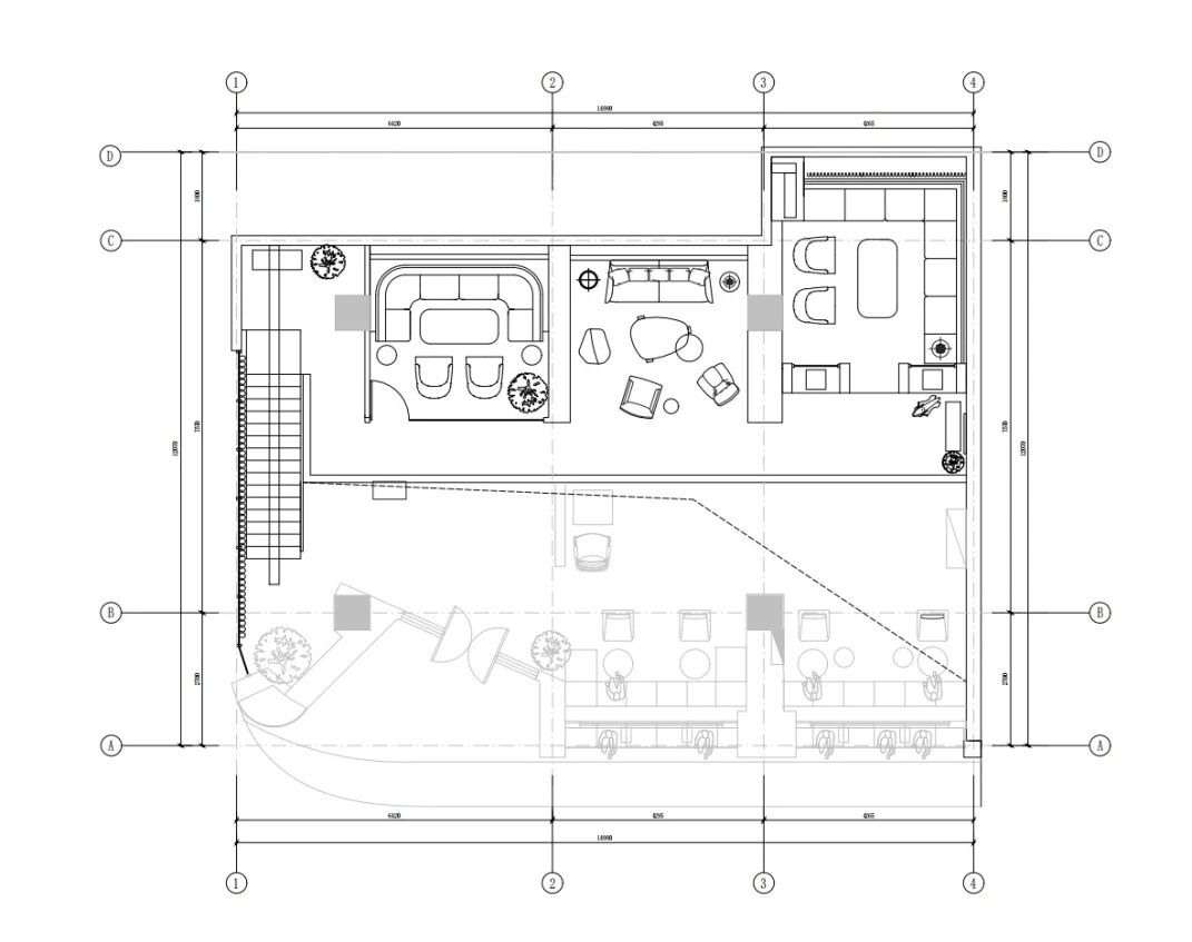
空间呈现/项目图纸
一层平面图©安野设计
夹层平面图©安野设计
/设计信息/
项目名称:Library Cocktail
项目地点:云南昭通
项目面积:230㎡
设计团队:成都安野设计事务所
设计主创:陈晨、吴国豪
空间摄影:ICYWORKS
/设计公司
安野设计以“重塑居住价值”的设计美学为核心,于成都创立品牌,专注于度假酒店、商业餐饮及高端定制豪宅等多维度空间的创意设计。以创意为驱动,提供涵盖建筑设计、景观设计、平面视觉、软装陈列、空间照明及产品体系的整体性空间设计解决方案。通过对品牌基因与地域文化的深入解读,安野设计将其转化为具有感知力与情感温度的空间叙事,为商业、酒店与住宅空间创造持久的价值溢出,让空间与品牌共同成长。
安野设计坚持以整体艺术视角进行空间构建,提供从空间艺术设计、软装艺术产品采集到空间行为与尺度研究的系统化设计服务。我们不以类型化思维定义设计方向,也不以项目规模衡量投入标准,而是以专业、审美与匠心,为每一个空间赋予独特的生命力与价值表达。
排 版:一番
/推荐阅读/
客服
消息
收藏
下载
最近




































