查看完整案例

收藏

下载

翻译
Architects:Manuel Urbina Studio
Area:20m²
Year:2025
Photographs:Peter Molly
Manufacturers:VEGA Designs
Lead Architect:Manuel Urbina
Main Contractor:Creative Living Development
Structural Engineer:BanfieldWood
Category:Houses
City:Wimbledon
Country:United Kingdom
Text description provided by the architects. Nestled within the Wimbledon Village area, this remarkable residential extension demonstrates how sensitive design can honour architectural heritage whilst creating spectacular modern family spaces.
The property occupies an attractive position, with its rear garden sloping gracefully towards the iconic Wimbledon tennis lawns - a view that became central to the design vision. When the clients approached the studio, they sought something rather daring: a contemporary addition that would both respect the traditional character of their home and provide their family with an elegant, living environment complete with that essential 'wow' factor.
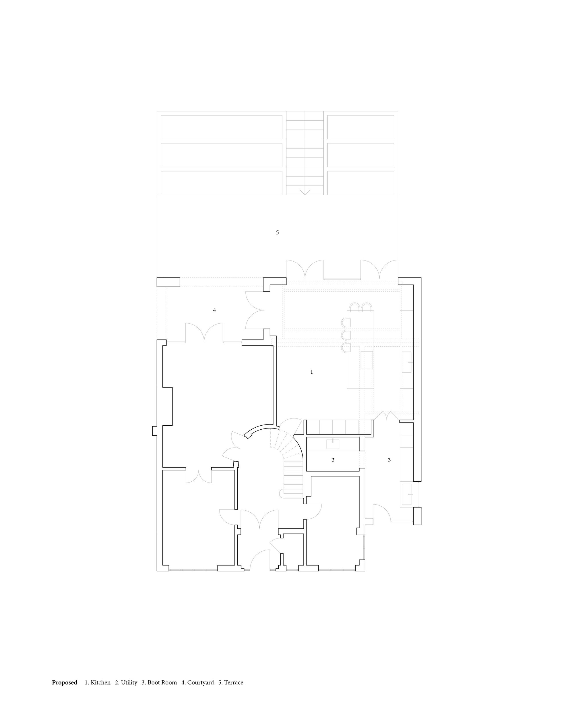
The resulting design achieves a delicate balance. Spatial planning was paramount, with rooms subtly organised to create a natural flow that mirrors the family's daily routines. This wasn't simply about adding square metres; it was about crafting spaces with cadence and purpose, where quality materials and meticulous detailing elevate the everyday experience.
Materially, the extension employs white handmade clay roman bricks - long-format linear bricks carefully selected to complement rather than compete with the original dwelling. These elongated bricks were precisely set out to create a harmonious dialogue between old and new. Brick pillars and beams form an intimate courtyard space, punctuated by carefully positioned openings that frame views whilst providing welcome shade during summer months. Crittall-style fenestration adds distinction to the contemporary whilst remaining entirely sympathetic to the heritage context.
The project wasn't without its challenges. The sloping site presented significant planning hurdles, particularly regarding terrace heights and their impact on neighbouring outlooks. Negotiations with the local planning authority proved lengthy, as the design team fought to preserve those precious views without compromising neighbours' amenity. The solution came through thoughtful landscape design: strategic planting beds provide effective screening whilst maintaining the property's connection to its remarkable setting.
This project exemplifies how contemporary architecture can enhance rather than diminish heritage assets. Through careful material selection, considered spatial planning, and persistent negotiation of planning constraints, Wimbledon House stands as testament to the possibility of bold, contemporary family living within sensitive historic contexts - proof that 'daring' and 'respectful' need not be contradictory terms.
Project gallery
客服
消息
收藏
下载
最近
















