查看完整案例

收藏

下载

翻译
Architects:moss.
Area:318m²
Year:2025
Photographs:Koji Fujii / TOREAL
Lead Architects:Takeshi Shima
Category:Offices Interiors
City:Hamamatsu
Country:Japan
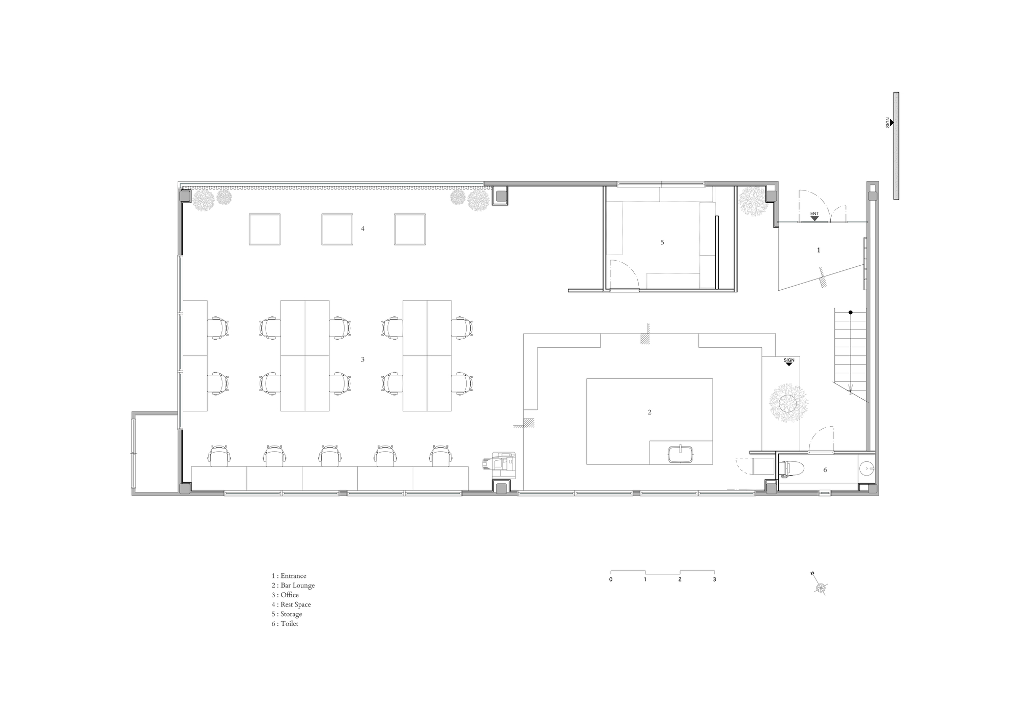
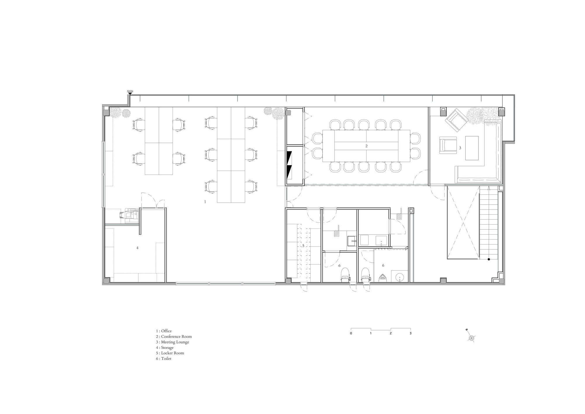
"A Space Where Precision and Trust Reside" An office for a company engaged in concrete investigation, surveying, and civil engineering design. The essence of work that demands precision and reliability is translated into space through three key concepts: Precision, Reliability, and Groundedness.
Precision – A stripped-back, minimal composition reflects the accuracy of numbers and judgment.The robustness of concrete and metal is wrapped in white, with restrained tones layered to clarify thought and decision-making.
Reliability – Honest, enduring materials and a calm palette quietly convey years of technical expertise and trust, without overt assertion.
Groundedness – At the heart of the space, a large table and benches form a soft mass between function and symbol, with seating integrated within. Layers of naturally pigmented particle board and concrete-like textures lend the mass a tangible sense of groundedness.
Furniture emerges as part of the architecture— or as a subtle rise within a geological landscape. By blurring the boundaries between furniture and architecture, tools and scenery, the space expresses the attitude inherent in surveying: reading the ground and carrying that understanding into the future.
Project gallery
客服
消息
收藏
下载
最近


















