查看完整案例

收藏

下载

翻译
Architects:J HOUS STUDIO
Area:2700ft²
Year:2023
Photographs:TWJPTO
Lead Architects:Joyce Wong
Category:Interior Design,Apartment Interiors
Lead Team:Joyce Wong
Technical Team:Joseph Tiong
Interior Design:J Hous Studio
City:Kuching
Country:Malaysia
Text description provided by the architects. This residence is conceived as a quiet framework for everyday life, shaped through reduction rather than expression. The design focuses on order, proportion, and light, minimizing visual interference to maintain a calm and breathable interior within a compact urban context.
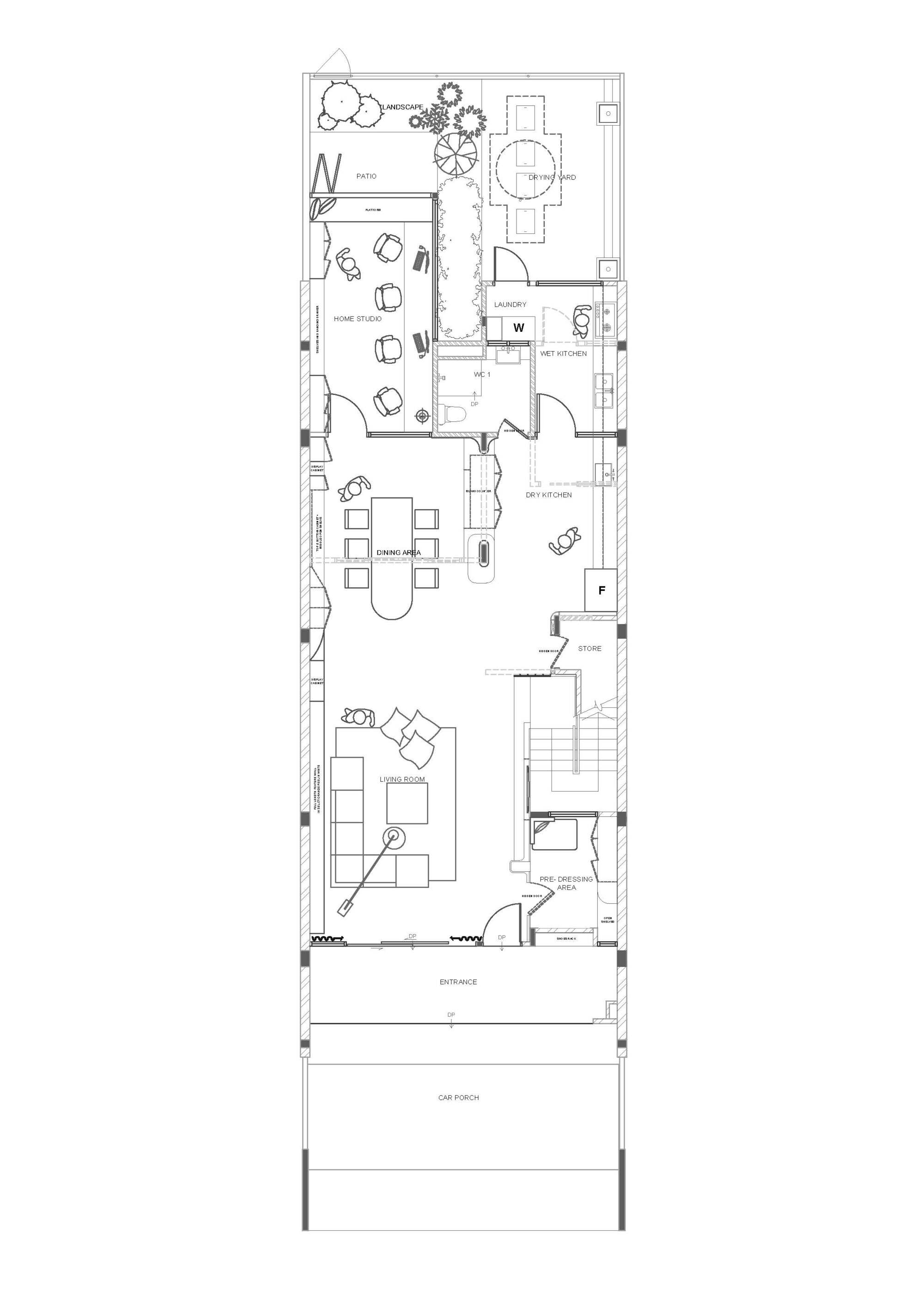
Public areas are organized as an open and continuous spatial sequence, where the kitchen, dining, and circulation zones are loosely defined without rigid boundaries. Spatial distinction is achieved through subtle variations in volume, material, and alignment rather than physical partitions. A wooden island functions as the spatial anchor, supporting daily activities while maintaining visual clarity and balance.
Storage is fully integrated into the architectural envelope and concealed within wall planes to preserve clean lines and uninterrupted movement. By absorbing functional requirements into the background, the interior remains visually restrained and adaptable to everyday use.
Light becomes the primary element shaping the atmosphere of the home. Natural daylight enters from multiple orientations and shifts gradually across surfaces throughout the day. Matte finishes and soft textures diffuse the light, creating a low-contrast environment that avoids overstimulation and supports a sense of spatial ease.
Material selection emphasizes tactility and material honesty. Pale wood tones, muted finishes, and restrained tonal variation establish a neutral yet warm palette that allows the space to mature over time. Rather than seeking visual impact, the design prioritizes durability, comfort, and the evolving relationship between occupants and space.
Through careful reduction and intentional restraint, the project establishes a living environment where emptiness holds purpose, movement remains fluid, and daily life unfolds at a measured and composed rhythm.
Project gallery
客服
消息
收藏
下载
最近



















