查看完整案例


收藏

下载
1980年,由法国总统密特朗提议,在巴黎塞纳河左岸建造一座阿拉伯世界文化中心(Arab World Institute),跨越阿拉伯文化与西方文化的藩篱,使西方大众认知、感受这一悠久文明的价值。主题本身已构成了对于建筑空间设计的挑战,无论是当时流行的国际主义风格的玻璃幕墙大厦,或完全回归传统的一座清真寺,显然都不合主旨。青年时代便坚定了“文脉主义”的让·努维尔,在1981年阿拉伯世界文化中心的建筑设计竞赛中脱颖而出,他的设计方案,否定了后现代主义生硬的拼贴,也非当时流行的国际主义风格,而是将阿拉伯文化符号巧妙地融入建筑语境中,在建筑的外部和内部形成了深具文化感染力的空间氛围。
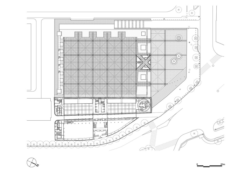
该建筑坐落在传统居民区——圣日曼区(过去为巴黎贵族居住区,现在仍保留着上百年的公馆,大多数变为外国使馆和政府机关)从巴黎旧城的斯德岛(?le de la Cité)顺流而下塞纳河南岸(或左岸)一块曲域的三角形基地上。北立面对着沿河的一条道路;东边视线可以通过平缓的区域到达巴黎大学Jussieu 校区的Brutalist-on-piloti(底层架空的粗野主义建筑)20世纪60年代早期灰暗压抑的混凝土板。入口的轴线对着巴黎圣母院;左边的墙同入口平面呈91度角,锁定狭长的街景。如此,如奥利维耶·布瓦西埃所说,它占据了现代巴黎──【戴高乐主义者(Gaulist)技术统治论的代表作品Jussie大学】和传统巴黎(斯德岛和它的历史建筑)之间的关键位置。
该建筑坐落在传统居民区——圣日曼区(过去为巴黎贵族居住区,现在仍保留着上百年的公馆,大多数变为外国使馆和政府机关)从巴黎旧城的斯德岛(?le de la Cité)顺流而下塞纳河南岸(或左岸)一块曲域的三角形基地上。北立面对着沿河的一条道路;东边视线可以通过平缓的区域到达巴黎大学Jussieu 校区的Brutalist-on-piloti(底层架空的粗野主义建筑)20世纪60年代早期灰暗压抑的混凝土板。入口的轴线对着巴黎圣母院;左边的墙同入口平面呈91度角,锁定狭长的街景。如此,如奥利维耶·布瓦西埃所说,它占据了现代巴黎──【戴高乐主义者(Gaulist)技术统治论的代表作品Jussie大学】和传统巴黎(斯德岛和它的历史建筑)之间的关键位置。
让·努维尔将阿拉伯世界文化中心设计成一个精密的科学产品,建筑的南立面整齐地排列了近百个光圈般构造的窗格,灰蓝色的玻璃窗格之后是整齐划一的金属构件,具有强烈的图案表现性和科学幻想效果。让·努维尔说,“建筑设计灵感源自于阿拉伯文化,是对一种精巧、神秘、蕴含宗教氛围的东方文化的赞美。我对清真寺建筑的雕刻窗(mashrabiya)很感兴趣,光透过它洒在地上形成了几何形、精确的、波动旋转的深浅阴影。所以我采用了如同照相机光圈般的几何孔洞,材料是铝,通过内部机械驱动光圈开阖,根据天气阴晴调节进入室内的光线量。” 在建筑落成的1987年,阿拉伯世界文化中心被评为当年最佳建筑设计,获得银角尺奖(I’Equerre d’Argent)。这座建筑正是让·努维尔声名雀起,蜚声国际的开始。
设计理念:
建筑必须有文化定位。它的含义包括,为了得到既适用于全球、又有地方特色的设计方案,要能放弃轻易到手的现成的设计。阿拉伯世界研究中心是阿拉伯世界在巴黎进行形象展示的橱窗。因此,它本身并不是一座阿拉伯建筑,而是一座西方建筑。来自19个阿拉伯国家的委托方代表都对我们的方案感到惊讶。其中一些人曾期望一种更多模仿阿拉伯传统建筑的设计,就像巴黎大清真寺那样。不过,设计方案采用的某些象征元素还是令他们感到满意,比如阿拉伯式的格屏,它以形状、大小不断变化的多边形,营造出各种几何效果,让人们联想起阿尔罕布拉宫。从城市的角度看,这座研究中心是两种文化和两段历史之间的连结点。如果说,建筑南立面上以机械控制的金属膜是一种对东方文化的当代表达,那么,北立面则可以毫不夸张地说是一面反映西方文化的镜子:塞纳河对岸的巴黎城市景观映在外墙玻璃上,如同显像纸表面产生的化学反应。而北立面上的线条和各种标志则形成了与当代艺术的呼应。在我看来,所谓建筑、室内空间和家具设计之间的隔阂是人为虚构的。所以,我设计了包括展柜、座椅和展览设施等在内的整座博物馆。在阿拉伯世界研究中心里,我也开始考虑光的问题。光的主题除了反映在全部为照相机般的控光装置的南立面之外,也在层层累叠的楼梯踏板、故意朦胧的外形轮廓,以及各种光影的叠置、混响、反射和阴影变化之中得到再现。
客服
消息
收藏
下载
最近





















































