查看完整案例

收藏

下载
重庆的冬季,湿润多雨,鲜有太阳天,夹在时季不长的秋与春之间,显得特别漫长,在山影与水雾之间,有一分独特的幽暗宁静。
设计师与这栋房子的主人相遇,也是在冬季,女主人遇到事业的调整,从北京初来重庆,对新地的气候,饮食,人际都有诸多的不适应,幸而遇到了深爱她的先生,两人新婚不久,选定这套幽静的老别墅安家,取二人名字里的一个字,也暗合他们相识相爱的时节,便为这个家命名:遇冬园。
Part.1
生长
让建筑回到大地的肌理
当设计师第一次走进这栋15年的老别墅,眼前土赭色的建筑被岁月洗礼,与大地融为一体,四周被生机盎然的绿意环抱,脑海里立即把它联想成一处从土壤里生长出来,与自然,光影,岁月共呼吸的宁静之地。
屋主夫妻,计划接外地父母来同住,同时孕育下一代的新生命。多代共居,天伦之乐的传统是我们中国文化生生不息的传承,也是东方之家的内核。内外之缘,设计师和业主共同决定,将这个空间,定调为一个深植于大地之中,宁静中充满生机的家。
做私宅设计这么多年,设计师心目中最好的家,一定是屋主相爱,自然舒适,实用为先,美学为辅,与屋主共契的的灵魂居所!
别墅的建筑外立面,经历岁月后,有一种大地土壤般的浑厚沉淀感,设计师将室内色彩与之统一,墙与顶选用“大地色“的质感漆,地面选用天然黑底石材,沉入大地,大量运用栗色的原木,局部卫生间,露台选用陶土砖;设置真火壁炉,还原出“洞穴感”的室内氛围,透过大小不同的窗洞望向室外的自然绿意,营造出静谧,安全的包裹感。
Part.2
共生
光与自然,是空间的灵魂
利用多层立体采光的建筑优势,让光影能巧妙的随自然变幻在厚朴的室内空间里,投射出美好的温暖瞬间。
老旧建筑原有的多错层结构,不适合现代人居住,设计师通过局部抬高楼板的方式,巧妙地削减了部分梯级,再结合长地台和木塌等方式进一步舒缓;客厅楼板被抬高两级后,也巧妙的抬高了地下室和花园内廊道的标高,给地下室采光创造了三面侧透光的通道,因而大大提升了地下室空间的自然通风和采光;顺势抬高的东方式回廊,隔离了雨土的溅染,更易于保持清洁,可谓一举两得。
Part.3
共栖
多代同堂的分寸与温度
中国式大家庭,需要一个好用也好看的中式厨房,在满足国人居家烹饪习惯的同时,也留了两面美好的望向绿景的格子窗,特意规划出两处隐藏的杂物间,做分类储物,并留出一小餐桌位置,让我们回想起童年妈妈刚炒好的热菜,端上桌一家人围着小餐桌的美好记忆;另辟一个西餐厅,长桌面对花园,更有仪式感,年节聚会也是其乐融融。
为了给每一个家人足够的私密空间,做了多套房设计,儿童房,长辈房都有学习区,衣帽区,私享卫生间,同时也特设家庭休闲区,增加卧房之间的亲情互动。
一层入户高挑空的上空,设计师留了多面窗洞,引入不同时段的光影,也增加室内空间的通透和延伸感。母亲在二楼弹钢琴时,可以推开东方感的木质双开窗,穿越挑空上方,透过儿童房的固定玻璃窗,关注到孩子的同时,还能远眺儿童房外面的自然绿景;孩子也可以坐在卧室沙发塌上玩耍,透过窗户与下方空间,对面的钢琴区互动,我希望这里能呈现出多种有趣生动的生活场景。
顶层的主卧空间,正对一棵在地原生的大树-黄桷兰是重庆的典型树种,花期很长,在秋冬天,也是绿意盎然,花开吐芳,给主人卧室留下永恒的浪漫。
设计师在这层做了细致的功能分区,男、女衣帽间,女主人的独立书房,禅修室,反而卫生间做的开放舒展,双盆洗漱台对着一块大窗景,外设一个休闲大露台。
这套别墅的花园,因为地下室抬高的原因,设计师顺势做了类似日式套廊的抬高,建筑主体四周被长廊包裹,增加户外过渡的灰空间,在重庆的高热和阴雨天都可以在廊内休闲,同时特设一个连接到地下室的侧梯,增加地下室通风和空间流动感;保留了原生的大部分绿植,增添部分造景树,将园内植物也公区绿植融合一体,还原了一个简洁自然的东方庭院。
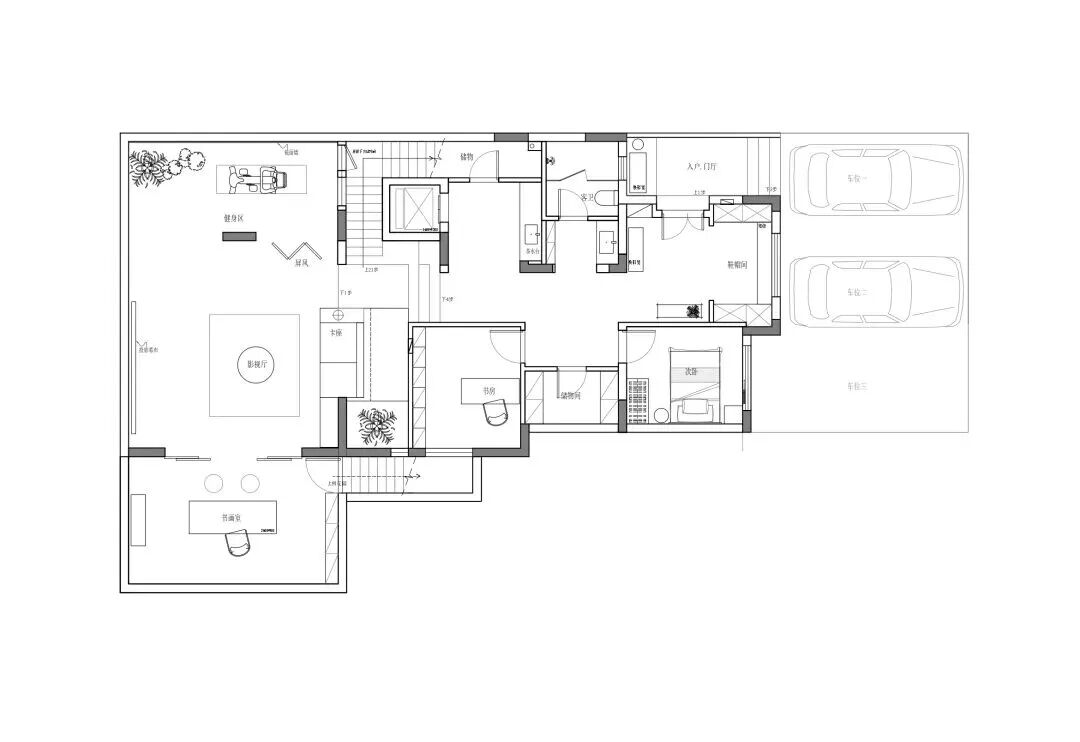
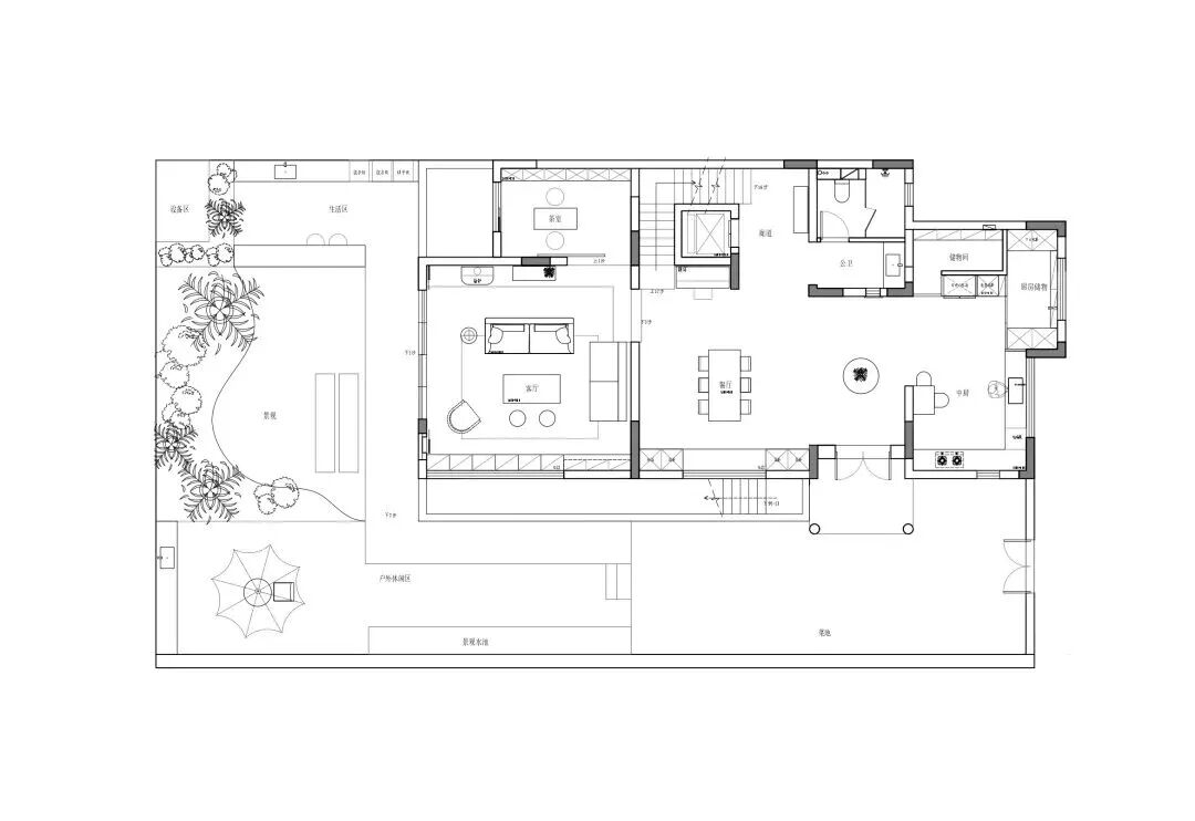
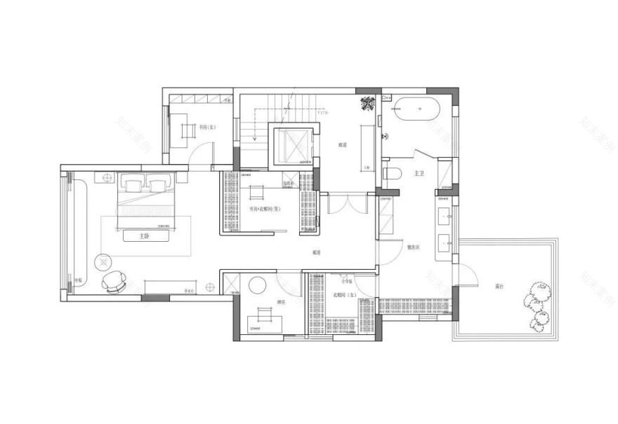
左右滑动查看1F-4F平面布置
项目信息
项目名称|龙湖东桥郡
项目地址|重庆
设计公司|LS 蓝山设计
设计主持|周子鉴
设计团队 | 陆登波 肖祥波
项目面积|1000㎡
项目摄影|边界人
主创设计
周子鉴 重庆蓝山室内装饰设计 创始人
蓝山成立于2010年,是一家集人文设计、整体施工、全案托管的高品质专业空间设计机构。本着“认真、专注、善待”的服务理念,为业主提供从室内设计(硬、软装)、施工、主材代购、园林景观、智能生活的整体解决方案。
END
策划|Anne
排版编辑|小十
校审|Ivy
视觉设计|Catherine
图片版权|重庆蓝山室内装饰设计
客服
消息
收藏
下载
最近


















































