查看完整案例

收藏

下载
Sammontalo是一座多功能社区建筑,在同一片连续铺设的瓦屋顶之下,整合了日托中心、学前教育、综合学校、公共图书馆、体育与青少年设施,以及学生福利服务,形成一个服务于日常生活的共享公共枢纽。项目可容纳约860名儿童,并由140余名专业人员提供支持,其建成方案源自一项公开、两阶段建筑竞赛的获胜设计。建筑总面积约12,000平方米,是芬兰规模最大的木结构建筑之一。
Sammontalo is a multifunctional community building that brings together a daycare centre, preschool, comprehensive school, public library, sports and youth facilities, and student welfare services under a single, continuous tile roof, creating a shared civic hub for everyday life. Designed to accommodate around 860 children and supported by a staff of over 140 professionals, the project was realized based on the winning proposal from an open, two-stage architectural competition. At roughly 12,000 gross square metres, Sammontalo is one of the largest timber buildings in Finland.
▼学校主入口,The main entrance of the school ©Rasmus Norlander
▼主楼不同方向的正视图,Front view from different directions ©Rasmus Norlander
项目选址位于Sammonlahti中心地带,该区域隶属于芬兰东南部城市Lappeenranta。这里的主要公共建筑形成了一组完整的建筑群,建成于20世纪80年代末至90年代初。这些地标性建筑包括由建筑师Sulo Savolainen(Suunnittelurengas Oy)设计的商业中心与健康服务站,以及Riitta与Kari Ojala设计的Sammonlahti Church。这些建筑体现出后现代主义风格特征,以红砖立面和对欧洲建筑传统的引用而著称。
▼项目区位轴测图,Site axonometry ©NERVIN Architecture
The site is located in the centre of Sammonlahti, a suburban district of Lappeenranta whose main civic buildings form a cohesive architectural ensemble completed in the late 1980s and early 1990s. These civic landmarks include the commercial centre and health station designed by architect Sulo Savolainen of Suunnittelurengas Oy, as well as the Sammonlahti Church by Riitta and Kari Ojala. Reflecting a postmodern style, these buildings are characterized by red-brick façades and references to European building traditions.
▼中庭,Central Courtyard ©Rasmus Norlander
▼室外走廊,Outdoor corridor ©Rasmus Norlander
汲取这一红砖建筑传统的灵感,Sammontalo的设计旨在强化既有公共建筑群,并补全 Sammonlahti中心区的城市空间序列。建筑几乎横跨整个用地宽度,将场地划分为两种截然不同的氛围:北侧为更具城市属性的公共界面,南侧则是由游乐场与运动场构成的绿色、公园式空间。Sammontalo的主要空间序列以大厅为核心,介于城市一侧的入口前庭与面向公园的内庭院之间,形成一条在视觉与体验上都高度连贯的空间轴线。明亮的内庭院与红砖立面形成鲜明对比,为室内引入充足的自然光,并提供跨越建筑内部的长向视野。
Drawing inspiration from this red-brick heritage, Sammontalo was designed to strengthen the existing cluster of public buildings and complete the sequence of urban spaces in Sammonlahti’s centre. Stretching across almost the entire width of its site, the building divides the area into two distinct atmospheres: a more urban civic side to the north, and a green, park-like zone of playgrounds and sports fields to the south. The main spatial sequence of Sammontalo, with the building’s lobby positioned between the city-side entrance courtyard and the park-facing inner courtyard, forms a visually open and experientially continuous axis through the structure. The bright inner courtyard contrasts with the red-brick façades, bringing abundant daylight and long views across the interiors.
▼临街入口,Street-facing entrance ©Rasmus Norlander
尽管整体体量庞大,建筑群被细分为若干更具人性尺度的单元,使其在比例关系上与周边建筑自然呼应。双层立面强调水平延展:底层以厚重的砖柱形成稳固的基座,上层则通过连续的带状窗与轻盈的柱梁结构,呈现出如同展亭般的通透感。倾斜的砖屋顶与连续的双层檐口共同勾勒出建筑在城市景观中的统一而鲜明的轮廓。
Despite its large scale, the complex is divided into smaller, human-scaled units that relate naturally to the proportions of the surrounding buildings. The two-tiered façades emphasize horizontal lines: thick brick pillars on the ground floor form a strong base, while continuous ribbon windows and a slender column-and-beam structure make the upper floor appear light and pavilion-like. Sloping brick roofs and continuous double-level eaves give the building a distinctive, cohesive silhouette within the cityscape.
▼大厅兼礼堂,Lobby and auditorium ©Rasmus Norlander
建筑基于 3.5 米的结构模数进行组织,这一模数在整体建筑中被清晰而一致地表达。作为一个完整的整体构想,项目采用数量有限但可重复、具有表现力的构件体系。逐层向上收分、愈显轻盈的木结构柱梁系统在室内外均清晰可见,而砖砌外墙则如同为木结构披上的一件“雨衣”,起到保护作用。
The building is organized on a 3.5-metre structural grid, expressed consistently throughout the architecture. Conceived as a coherent whole, it relies on a minimal set of repeatable, articulated elements. The timber column-and-beam system, which tapers and lightens upward, is visible both inside and out, while the brick cladding acts as a protective “raincoat” for the timber structure.
▼室内廊道与储物柜,Indoor corridors and lockers ©Rasmus Norlander
▼食堂,Dining hall ©Rasmus Norlander
Sammontalo的材料体系以两种主色调构成:砖红色与原木的浅米色。砖红色主要用于大厅、图书馆和走廊等公共空间,赋予其温暖而鲜明的性格;浅米色则主导较为安静的学习空间。色彩体系从室外自然延续至室内,而大量木材的运用——其中许多经半透明红色染色处理——营造出统一而亲切的整体氛围。这些元素共同塑造了Sammontalo鲜明的建筑识别度,以及形式、材料与场所之间历久弥新的整体感。
Sammontalo’s material palette combines two main tones: brick red and natural wood beige. Brick red defines public areas such as the lobby, library, and corridors, giving them warmth and character, while light beige dominates the calmer learning spaces. The colour scheme continues seamlessly from exterior to interior, and the extensive use of wood—much of it stained translucent red—creates a unified, inviting atmosphere. Together, these elements give Sammontalo a strong architectural identity and a timeless sense of cohesion between form, material, and place.
▼教室,Class room ©Rasmus Norlander
▼室内篮球馆,Indoor basketball court ©NERVIN Architecture
▼萨蒙塔洛城市肌理图,Samontalo Urban Grain Diagram ©NERVIN Architecture
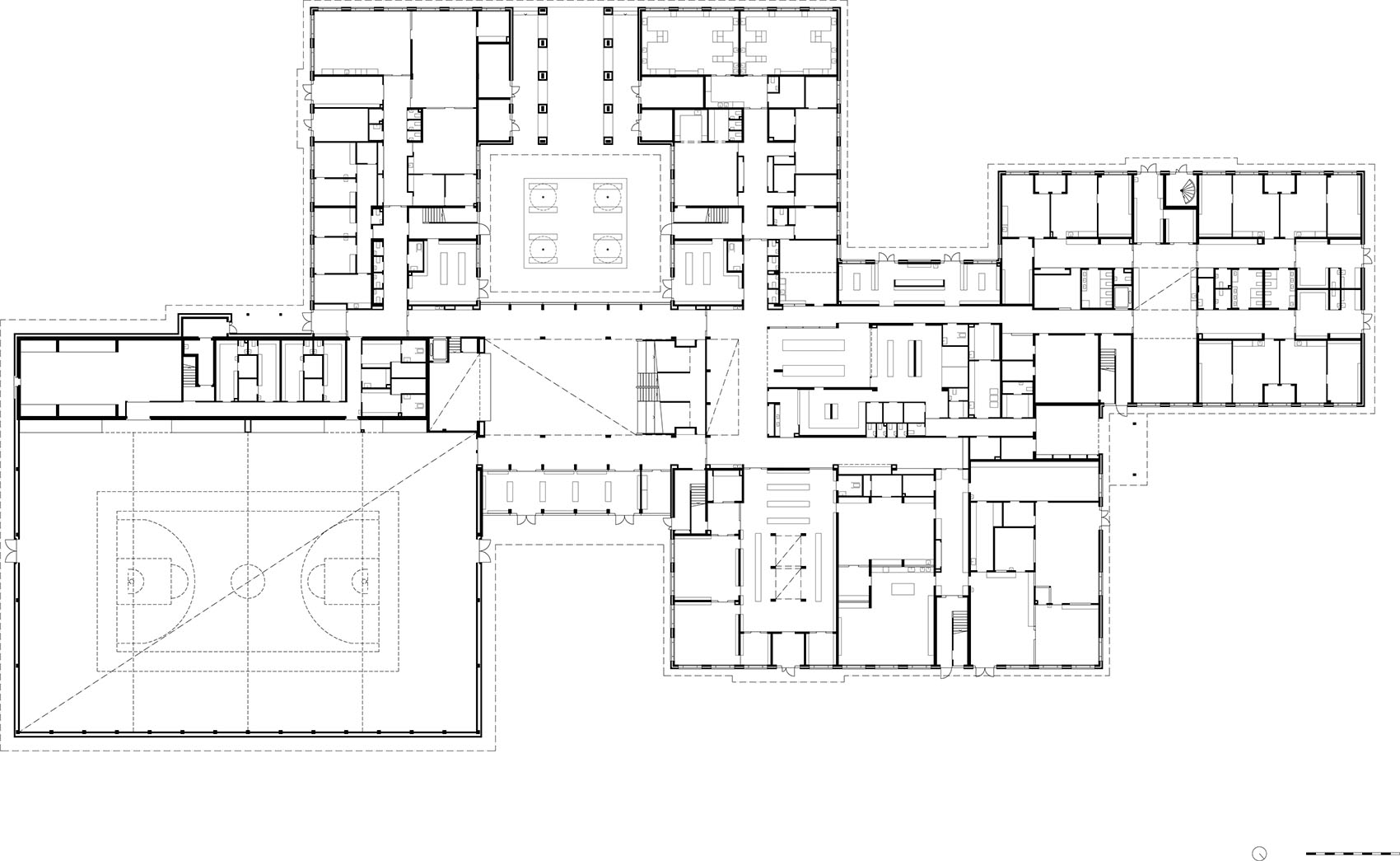
▼首层平面图,First floor plan ©NERVIN Architecture
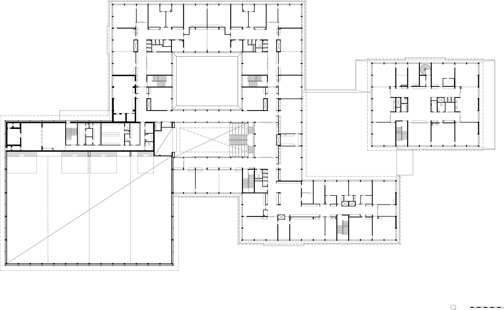
▼一层平面图,First floor plan ©NERVIN Architecture
▼立面剖面图,Elevation and section ©NERVIN Architecture
▼东南立面图,SE elevation ©NERVIN Architecture
▼西北立面图,NW elevation ©NERVIN Architecture
▼剖面图,Section ©NERVIN Architecture
▼细节大样轴测图,Structural axonometry ©NERVIN Architecture
About the project:
Project: Sammontalo – School and Multipurpose Centre
Location: Lappeenranta, Finland
Gross area: 12 123 m2
Completion Year: 2025
Photos: 01–12.jpg and 14-18.jpg are by photographer Rasmus Norlander. 13.jpg is taken by us.
About Us:
Office: NERVIN Architecture
Location: Helsinki, Finland
Partners: Antti Soini, Leo Lindroos, Tuuli Kanerva
Instagram: @nervin_architecture
Best regards,
Antti Soini
partner, architect SAFA
NERVIN architecture
客服
消息
收藏
下载
最近






























