查看完整案例

收藏

下载

翻译
Architects:Abdel Qader Tarabieh Architecture
Area:250m²
Year:2025
Photographs:Muhammad Almasri
Lead Architect:Abdel Qader Tarabieh
Category:Residential Architecture,Houses
City:Amman
Country:Jordan
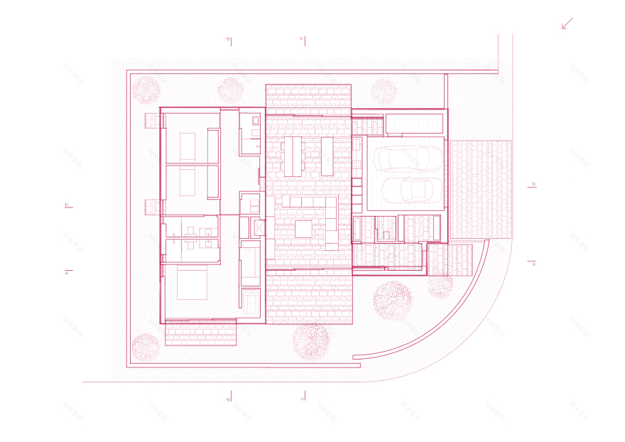
Text description provided by the architects. The House emerges as a quiet, introverted sanctuary, turning inward from the street and shielding its interior world from public view. From outside, it presents as a sequence of low stone walls, solid and continuous, almost monolithic beneath a concrete slab. These walls do not merely enclose; they define a threshold where the rhythms of the home unfold in measured silence. The design draws from local, historical, and Islamic architecture, where inward-facing courtyards and enclosed spaces invite reflection and stillness.
At its center lies the living space, flanked by two solid masses, one holding private night functions, the other service areas. The living room rests between them, poised as an open void. Large sliding glass doors, retractable into the stone walls, dissolve the interior into the exterior, extending beneath the concrete canopy into the courtyard and garden. Gazing into the courtyard, the ancient salvaged olive trees stand as enduring memory anchors, linking the home to time, place, and history.
Materiality shapes the experience. Exterior walls of white local chiseled stone, laid in quiet horizontal rhythm, ground the house. Inside, soft natural wood and muted tones cultivate stillness, evoking warmth and serenity. Heavy walls provide shade and shelter, while the courtyard brings light, greenery, and air. The house is both protective and expansive, modern yet deeply rooted, a sanctuary where life unfolds with clarity, calm, and a contemplative dialogue with history.
Project gallery
客服
消息
收藏
下载
最近

































