查看完整案例

收藏

下载
Appreciation towards BAUKUNST for providing the following description:
项目位于布鲁塞尔东缘,处在一条通往城外的主要高速公路与一条重要城市大道的交汇处。这座新建筑作为更大规模城市开发的先锋节点,参与到对现有媒体园区的重塑之中——该片区目前以比利时国家电视台与广播电台为核心。
Located on the eastern edge of Brussels, at the crossroads between one of the main freeways leading out of the city and one of the major boulevards, this new building serves as the spearhead of a larger urban development. The project participates to reconfigure the existing media district, currently centered around Belgium’s national television and radio stations.
▼建筑与自然,Architecture and nature ©BAUKUNST–Maxime Delvaux
▼建筑与周围环境,Architecture and surrounding area ©BAUKUNST–Maxime Delvaux
建筑容纳了多元化的媒体相关初创企业与机构,包括区域电视录制与播出工作室、媒体枢纽,以及在布鲁塞尔支持并推动电影制作的相关机构。不同合作方的共存需求促使设计以空间适应性与理性规划为基础展开;通过结构层面的设计实现灵活性,将各类活动分布在开放式楼层中,从而支持多种空间组合与使用方式。
The building hosts a diverse mix of media-related start-ups and operators, including regional television recording and broadcasting studios, media hubs, and institutions that support and promote film making in Brussels. The need for cohabitation among a diverse group of partners led to a design based on spatial adaptability and rational planning;. Flexibility was achieved through structural design, distributing activities across open-plan floors that allow for numerous spatial configurations.
▼立面,Facade ©BAUKUNST–Maxime Delvaux
▼入口空间,Entrance space ©BAUKUNST–Maxime Delvaux
将结构构件布置在外围,并对主要设备系统进行垂直整合,使楼层空间得以完全释放。建筑采用彼此区分的建造体系,每一体系都可根据自身的使用周期与未来需求进行调整。结构、围护与内装作为相互独立的层级存在,便于在时间维度上进行分别维护与演化。建筑的结构策略亦依据不同朝向及其周边环境作出相应调整。
The peripheral positioning of the structural elements, as well as the vertical distribution of the main services, resulted in totally free floors. The building is designed with distinct constructive systems, each adaptable to its own lifespan and future requirements. Structure, envelope, and finishing elements function as separate layers, allowing for independent maintenance and evolution over time. The building’s structural concept adapts to each orientation based on its specific surroundings.
▼室内空间,Interior space ©BAUKUNST–Maxime Delvaux
南侧立面被设计为兼具遮阳功能的“城市屏幕”,以回应街区尺度及周边基础设施的体量关系;相对而言,北侧立面更为封闭,面向邻近的既有建筑。东侧设置主入口,以顺应城市界面的转折变化,形成一处开阔的前庭空间,将建筑与城市大道有机连接。
The southernfaçade, designed as an urban screen with solar protection, responds to the larger scale of the neighborhood and surrounding infrastructure. In contrast, the more closed northern façade faces nearby existing buildings. On the east side, the main entrance is positioned to accommodate a shift in urban alignment, creating a broad forecourt that connects the building to the boulevard.
▼立面细节,Facade Details ©BAUKUNST–Maxime Delvaux
▼项目区位图,site plan ©BAUKUNST
▼平面图,Floor plan ©BAUKUNST
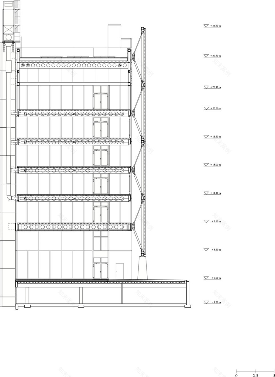
▼剖面图,Section ©BAUKUNST
Project’s title: Frame, Brussels, Belgium. 2017-25 (Shortlisted competition. 1′ Prize)
Program: Television studio’s and co-working offices
Location: Boulevard Auguste Reyers 84, 1030 Brussels, Belgium
Design years: 2017-2021
Construction years: 2021-2025
Total area: 8500 m2
Lead Architect: BAUKUNST
Associate Architect: BRUTHER
Design team: Guillaume Bostoen, Pauline Clarot, Claudio Cortese, Lise Duchamp, Baptiste Fleury, Paul Machedlon, Aleksandra
Ognjanov, Daniele Olivera, Nicolo de Paoli, Maria Rebelo, Björn Vanoverberghe, Adrien Verschuere
Collaborations: Bollinger+Grohmann, Bureau Bouwtechniek, Bureau d’Études Pierre Berger, Bruther, ChevalierMasson,
Delta GC, Kahle Acoustics, Landinzicht, VS-A
Client: The Urban Development Corporation of the Brussels-Capital Region (sau-msi.brussels)
Contractors: BAM-Interbuild / Groven+
客服
消息
收藏
下载
最近





















