查看完整案例

收藏

下载
©麟和建筑工作室
陕西文化艺术博物院项目位于西安西咸新区,东临西三环,西依阿房宫遗址,规划用地面积9.4万平方米,总建筑面积13.5万平方米,主要包括演艺剧院、丝路艺术馆及综合文化配套设施。项目一期为演艺剧院,整体长220米、宽66米,建筑面积3.2万平方米,常态化上演史诗幻境演出“赳赳大秦”,汇聚建筑设计、文化创意、编剧舞美、智能技术等团队,打造西安创新文化地标,列入陕西省“十四五”重大文旅项目、陕西省重大文化产业项目等,以“文化+科技+旅游”创新模式带动区域整体与文旅产业升级。项目投入使用后,被选为西安十大新文化地标。
The Shaanxi Culture and Art Museum project is located in Xi’an’s Xixian New Area, east of the West Third Ring Road and west of the Epang Palace ruins. The planned site area is 94,000 square meters, with a total construction area of 135,000 square meters. The project primarily includes a performing arts theater, a Silk Road Art Museum, and comprehensive cultural facilities. The first phase of the project is the performing arts theater, with an overall length of 220 meters, a width of 66 meters, and a construction area of 32,000 square meters. It regularly stages the epic immersive performance “Majestic Qin”, bringing together teams in architectural design, cultural creativity, stage and set design, and intelligent technology. The project establishes an innovative cultural landmark in Xi’an and has been included in Shaanxi Province’s key cultural tourism projects and major cultural industry projects under the 14th Five-Year Plan. Through the innovative “culture + technology + tourism” model, it is expected to drive regional development and the upgrade of the cultural and tourism industry. Upon completion, it was selected as one of Xi’an’s top ten new cultural landmarks.
▼项目西南向鸟瞰,Westsouth aerial view of the project ©是然摄影-苏圣亮
▼建筑外景,Exterior of the Building ©是然摄影-苏圣亮
▼沿沣东大道晨景,Morning view along Fengdong Avenue ©是然摄影-苏圣亮
项目位于重要的历史文化环境,在国家文物部门划定的阿房宫前殿遗址的建设控制地带内,周边分布着阿房宫、上林苑等重要古迹文化遗址。基地内有一类建设控制地带8米、二类建设控制地带18米的限高要求。▼模型,Model©麟和建筑工作室
The project is situated in a historically and culturally significant environment, within the construction control zone defined by the national heritage authorities for the front hall of the Epang Palace ruins. Surrounding the site are important cultural relics such as Epang Palace and Shanglin Yuan. The site has height restrictions of 8 meters in first-class construction control zones and 18 meters in second-class zones.
▼建筑通过连桥与广场衔接,The building is connected to the square through a bridge©是然摄影-苏圣亮
▼通透界面与文化配套产生对话,Dialogue between Transparent Interface and Cultural Matching©是然摄影-苏圣亮
▼屋顶与立面细节,Roof and facade details©是然摄影-苏圣亮
设计积极回应独特的历史文脉与严苛的外部条件制约,总体建筑群体采用“下沉与消隐”设计策略,场地整体下沉1.5米,造就平展内含的场所氛围和基调。建筑总体规划借鉴秦汉“里坊雏形”格局,呼应多个方向的城市空间与人流来向,以纵横错落的街巷为框架,在大体量的演艺剧院、美术馆和配套建筑之间设置公共空间,多层级的“广场、庭园、平台、坡道”成为公共空间系统核心组织要素,造就立体而有节奏的步行系统。
▼手绘草稿,Sketch©麟和建筑工作室
The design actively responds to the unique historical context and strict external constraints. The overall building complex adopts a “sunken and recessed” design strategy, with the site lowered by 1.5 meters to create a calm, contained atmosphere and establish the spatial tone. The overall master plan draws inspiration from the “Li-Fang prototype” layout of the Qin and Han dynasties, responding to multiple directions of urban space and pedestrian flows. Intersecting streets and alleys form the framework, with public spaces arranged between the large-scale performing arts theater, art museum, and ancillary buildings. Multi-level plazas, gardens, terraces, and ramps serve as core organizational elements of the public space system, creating a layered and rhythmic pedestrian network.
▼建筑主体整体下沉策略,The overall sinking strategy of the building main body©是然摄影-苏圣亮
▼下沉庭院及连桥,Sunken courtyard and connecting bridge©是然摄影-苏圣亮
一期演艺剧院试图与历史文化场景形成延续、差异与对话,探索历史文化场景中当代建筑的独特性姿态。剧院体量最大,设在整体场地离遗址最远处、18米限高的东南角,舞台基坑部分下沉5-8米不等;下沉建筑体量借鉴秦代建筑的夯土基座要素,建筑与场地紧紧嵌接在一起,如同从大地中自然生长而出;粗面肌理的混凝土挂板构成的叠涩处理和横向线条,强化基座的水平延展感。上部建筑主体与屋盖采用全通透玻璃立面和雾面半反射纯铝质屋顶,折板形超白通透玻璃材料与施工工艺塑造出立面轻盈通透的当代感;建筑内部方盒形的剧院形体则直观地加以表达,并与展现秦文化的巨型浮雕相结合,突出厚重的历史感与轻盈的当代感。
The first-phase performing arts theater seeks continuity, contrast, and dialogue with the historical and cultural context, exploring the distinctive presence of contemporary architecture within such settings. The theater is the largest building, located at the southeast corner of the site—the farthest point from the ruins, within the 18-meter height-restricted zone. The stage pit is sunken 5–8 meters. The sunken mass draws inspiration from Qin-era rammed-earth foundations, tightly integrating the building with the site as if it naturally emerges from the ground. The rough-textured concrete cladding, with layered treatment and horizontal lines, emphasizes the horizontal extension of the base. The upper structure and roof feature fully transparent glass façades and matte semi-reflective aluminum roofs. Folded ultra-clear glass panels and construction techniques create a light and contemporary façade. Internally, the cubic theater form is clearly expressed and combined with massive cultural-themed reliefs, highlighting both historical weight and contemporary lightness.
▼材料对比形成建筑竖向层,Material comparison forms the vertical layer of the building ©是然摄影-苏圣亮
▼粗面肌理的混凝土挂板,Rough-textured concrete cladding panels ©是然摄影-苏圣亮
演艺剧院与“赳赳大秦”剧目同步展开设计、建造与排演,建筑团队与舞台剧作大师乔治·西平团队紧密协同,为演艺提供一个160米长、40米宽的室内移动座席与舞台一体化空间,1500座观众席可自如移动;同时,结合移动升降舞台场景和数智化声光电媒体技术,塑造了一个全景沉浸式的演艺空间。设计颠覆传统剧院的固定座席演出模式,突破舞台与观众席的二分法,打破边界、融为一体,形成一座独一无二的“超级剧院” 新范式。主体演艺空间周边布设立体化门厅、休息厅、咖啡与文创等功能;演员与后勤道具流线围绕主体演艺空间周边和上下立体化展开,巨大的天幕钢构空间内部、下部及周边通道形成演员空间;移动式座席和全景式舞台为设计和消防等提出独创性挑战和创新。
The design, construction, and rehearsal of the performing arts theater were carried out simultaneously. The architectural team worked closely with renowned stage director George Tsypin’s team to create a 160-meter-long, 40-meter-wide integrated indoor space for movable seating and stage, with 1,500 flexible seats. Combined with a movable lift stage and intelligent lighting, sound, and multimedia technology, the design creates a panoramic immersive performance space. This approach overturns the traditional fixed-seat theater model, breaking the conventional boundary between stage and audience, forming a unique new paradigm of the “super theater.”Around the main performance space, multi-level lobbies, lounges, cafés, and cultural-creative spaces are arranged, while actor and service circulation routes extend vertically around and above the main theater. The enormous steel-framed canopy, internal lower areas, and surrounding corridors form actor spaces. The movable seating and panoramic stage posed unique design and fire-safety challenges, requiring innovative solutions.
▼主门厅,Main lobby ©是然摄影-苏圣亮
▼观众休息廊,Audience lounge ©是然摄影-苏圣亮
▼移动式观众席与超大进深舞台,Mobile audience seats and ultra deep stage ©是然摄影-苏圣亮
演艺剧院演出六幕剧情,首创行进式坐席、多空间贯穿式剧场以及多媒体沉浸视听效果,使之成为全球首个行进式高科技剧院和最大的沉浸式超级剧场,获得吉尼斯世界记录最大的剧院舞台认证。
The theater presents a six-act performance, featuring pioneering moving seating, multi-space integrated theater design, and immersive multimedia audio-visual effects. This makes it the world’s first moving high-tech theater and the largest immersive super theater, earning a Guinness World Record for the largest theater stage.
▼礼仪广场及建筑主入口夜景,Night view of the etiquette square and the main entrance of the building ©是然摄影-苏圣亮
▼人与建筑,Human and architecture©是然摄影-苏圣亮
▼项目区位图,site plan ©麟和建筑工作室
▼总平面图,Master plan ©麟和建筑工作室
▼地下一层平面图,Basement Level 1 Plan ©麟和建筑工作室
▼地下二层平面图,Basement Level 2Plan©麟和建筑工作室
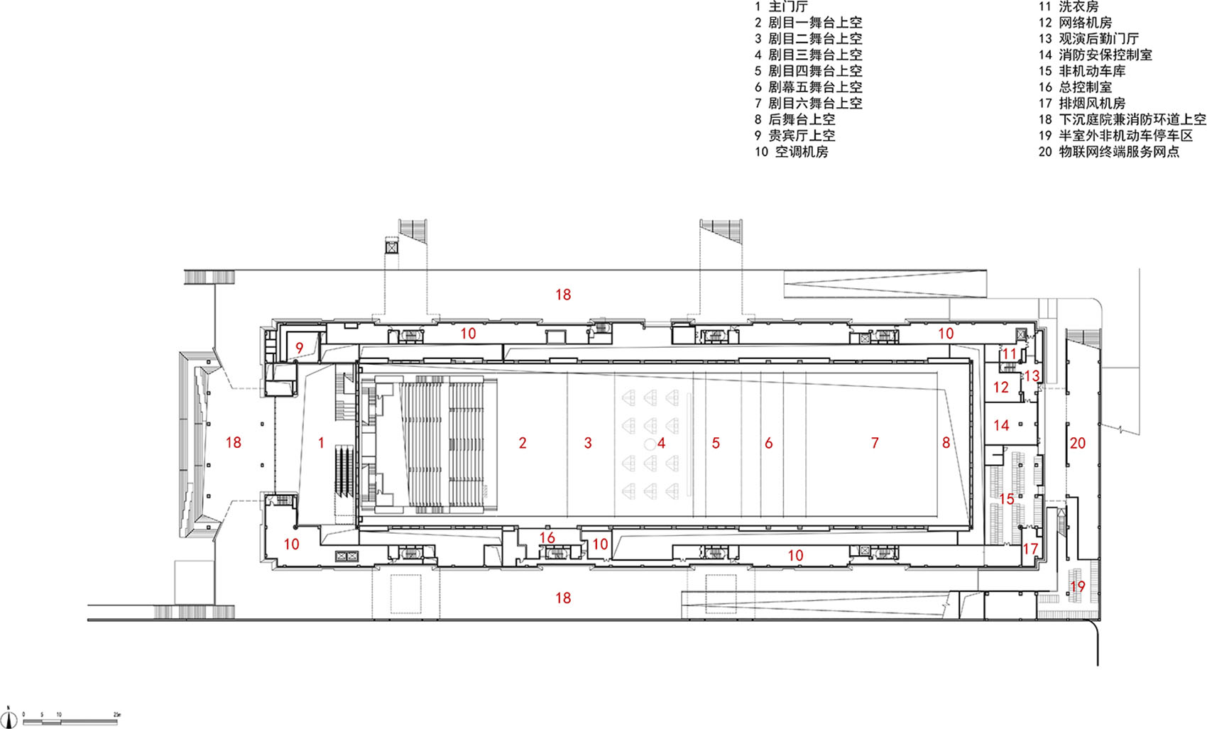
▼一层平面图,FirstLevel floor plan ©麟和建筑工作室
▼二层平面图,Second Level floor plan ©麟和建筑工作室
▼北立面图,North Elevation ©麟和建筑工作室
▼东立面图,East Elevation ©麟和建筑工作室
▼西立面图,West Elevation ©麟和建筑工作室
▼剖面图,Section ©麟和建筑工作室
▼细节大样图,Detail drawing©麟和建筑工作室
项目名称:陕西文化艺术博物院一期项目
项目类型:文化建筑-剧院
设计方:同济大学建筑设计研究院(集团)有限公司麟和建筑工作室
项目设计:2019
完成年份:2024
设计团队:
主创建筑师:李麟学
项目负责人:李麟学、周凯锋
项目经理:周凯锋、沈伟宇
建筑设计/一体化设计总控:李麟学、周凯锋、刘旸、姜咏茜、叶心成、单云翔、王彦雯、焦岩、郭乾立、倪润尔、李岚、董之卉、吴雨末、张琪
结构设计:虞终军、王建峰、潘华、王郑成、殷腾宗、苏晨霄
给排水设计:秦立为、尹乐平
暖通设计:王希星、花莉、杨添翼
电气设计:黄生优、张深、张文杰、徐君伟
施工驻场设计:李阳
绿建设计:西安木牛能源技术服务有限公司
室内设计:深圳市极尚建设集团股份有限公司,倪阳、朱桂增、师琪、刘棋、莫炽坚
景观设计:上海北斗星景观设计工程有限公司
幕墙设计:华纳工程咨询(北京)有限公司&天合联创设计有限公司,余满红、郭超、王晓虎
泛光设计:北京东方华脉建筑设计咨询有限责任公司
声学设计:华东建筑设计研究院有限公司声学及剧院专项设计研究所
舞台机械设计:北京北特圣迪科技发展有限公司
舞美演艺设计:陕西神采演出艺术有限责任公司
舞台视觉总设计:乔治·西平
演艺总导演:周莉亚、韩真
设计顾问:屈培青,张超文,中国建筑西北设计研究院有限公司屈培青工作室
项目地址:陕西省西安市未央区天台路与沣东大道十字东北角
建筑面积:90440㎡(其中地上27281㎡,地下63159㎡)
摄影版权:©是然摄影 苏圣亮
合作方:
客户:陕西文化产业(西咸新区)投资有限公司
材料:高强混凝土预制挂板、阳极氧化铝板、沟渠式防水一体板
品牌:高强混凝土预制挂板——陕西巨匠文化建材科技有限公司、阳极氧化铝板——中国铝业公司、沟渠式防水一体板——杭州法莱科技有限公司
Project name: Shaanxi Culture and Art Museum (1st phase)
Project type: Cultural Architecture
Design: ATELIER L+, Tongji Architectural Design (Group) Co., Ltd.
Design year:2019
Completion Year:2024
Leader designer & Team:
Lead Architect:Li Linxue
Project Leader: Li Linxue, Zhou Kaifeng
Project Managers: Zhou Kaifeng, Shen Weiyu
Architectural Design / Integrated Design Control: Li Linxue, Zhou Kaifeng, Liu Yang, Jiang Yongxi, Ye Xincheng, Shan Yunxiang, Wang Yanwen, Jiao Yan, Guo Ganli, Ni Run’er, Li Lan, Dong Zhihui, Wu Yumei, Zhang Qi
Structural Design: Yu Zhongjun, Wang Jianfeng, Pan Hua, Wang Zhengcheng, Yin Tengzong, Su Chenxiao
Plumbing Design: Qin Liwei, Yin Leping
HVAC Design: Wang Xixing, Hua Li, Yang Tianyi
Electrical Design: Huang Shengyou, Zhang Shen, Zhang Wenjie, Xu Junwei
On-site Construction Design: Li Yang
Green Building Design: Xi’an Muniu Energy Technology Service Co., Ltd.
Interior Design: Shenzhen Jishang Construction Group Co., Ltd., Ni Yang, Zhu Guizeng, Shi Qi, Liu Qi, Mo Chijian
Landscape Design: Shanghai Beidouxing Landscape Design Engineering Co., Ltd.
Facade Design: Huana Engineering Consulting (Beijing) Co., Ltd. & Tianhe Lianchuang Design Co., Ltd., Yu Manhong, Guo Chao, Wang Xiaohu
Floodlight Design: Beijing Dongfang Huamai Architectural Design Consulting Co., Ltd.
Acoustic Design: Acoustic and Theatre Specialized Design Institute of East China Architectural Design and Research Institute Co., Ltd.
Stage Machinery Design: Beijing Beitershengdi Technology Development Co., Ltd.
Stage Art and Performance Design: Shaanxi Shenscai Performance Art Co., Ltd.
Stage Visual Design: George Sipin
Performance Director: Zhou Liya, Han Zhen
Design Consultants: Qu Peiqing, Zhang Chaowen, Qu Peiqing Studio China Northwest Architectural Design and Research Institute Co., Ltd.
Project location: Northeast corner of the intersection of Tiantai Road and Fengdong Avenue, Weiyang District, Xi’an City, Shaanxi Province
Gross built area: 90440㎡ (Underground 63159㎡)
Photo credit: ©Schranimages, Su Shengliang
Partner:
Clients: Shaanxi Cultural Industry (Xixian New Area) Investment Co., Ltd.
Materials: High-strength concrete prefabricated hanging panels, Gully-type waterproof integrated panels, Anodized aluminum plate
Brands: High-strength concrete prefabricated hanging panels – Shaanxi Juming Culture Building Materials Technology Co., Ltd., Anodized aluminum plate – Aluminum Corporation of China, Gully-type waterproof integrated panels – Hangzhou Falai Technology Co., Ltd.
客服
消息
收藏
下载
最近











































