查看完整案例

收藏

下载

翻译
Architects:Marge architecten
Area:175m²
Year:2023
Photographs:Melanie Boeckxstaens
Manufacturers:Reynaers Aluminium,Grohe,RENSON,Wienerberger,Aco,Aiphone,Joris Ide,Knauf,Novy,Recticel,Ubbink,Velux
Category:Residential Architecture,Houses
Lead Team:Steven Schreurs
Design Team:Marge architecten
Engineering & Consulting > Structural:Structure Engineers - Kurt Laeremans
Engineering & Consulting > Other:2BSafe
City:Gent
Country:Belgium
Text description provided by the architects. High grasses, two shrubs, and an oak. Somewhere in the 1970s, a row of dilapidated workers' houses had to be demolished here. Nothing remained of it, and nothing was put in its place. The current green seems to have originated accidentally. An accidental green area due to the absence of buildings, not laid out, not functional. Recently, the city decided to divide the park into parts again, and to complete the building block again.
A rare piece of building land was suddenly on the market in the Muide, near the ring of Ghent. There are three solid masonry buttresses against the wall of the neighbour. They are being demolished, and the new house is to replace them. Six meters wide is allowed to be built, on the ground floor, ten meters deep, on the floors, only six meters deep. It will be a very compact house like the former workers' houses here undoubtedly were. Besides the house, a mandatory garden, the bushes are pruned, and the tree can stay.
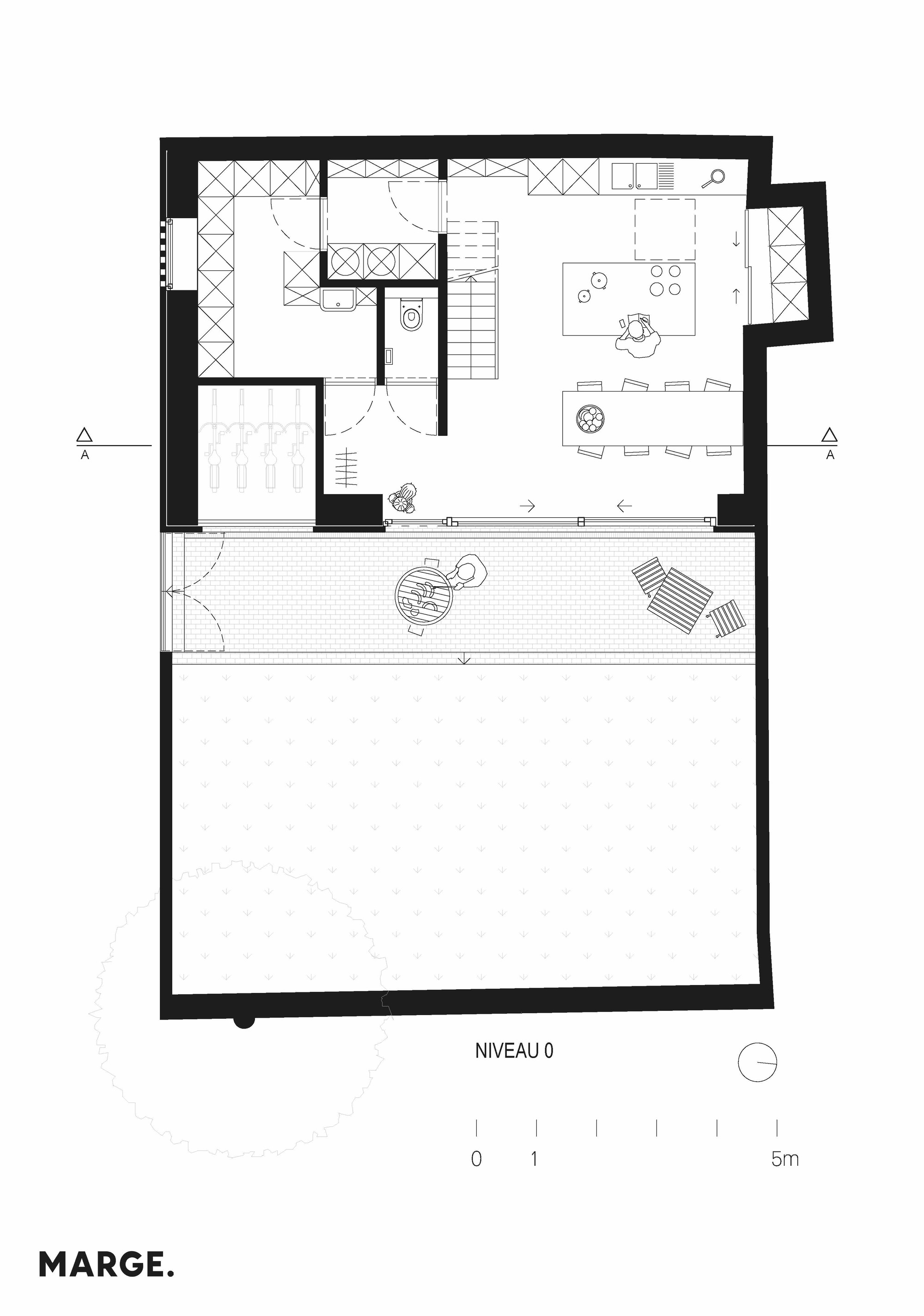
Next to the garden, there is a house being designed. There is a small budget but a lot of ambition. The house will be a very low-budget, very-low-energy, but very-high-effort house that gets the most out of the few resources that are available. A sober design is imminent; some strategic interventions bring spatial luxury into the otherwise compact house. The roof of the kitchen folds upwards along a sloping beam to make a person-like connection between the kitchen downstairs and the living space above.
From the mezzanine, people are greeted by the people who come home, and in the kitchen, they welcome the southerly sun that falls into the back of the plot in autumn and spring, through the large sitting window at the façade, through the person-wide opening. The roof of the main volume is provided with two gable fronts, one at the front and one at the side. In the corner between the two, volume is cut away, creating an indoor terrace that provides light and view from the top office floor.
The house is simple inside and outside. Visible wooden beams in the kitchen, visible concrete sediments on the other floors, and visible insulating stones 50 cm thick form the massive outer walls. The future residents love beautiful old things. Just like many of their own coats and belongings, we are looking for recuperation stuff for the house. Stones of the chipped buttresses are used for the plinth of the house, and 'overstock' metal corrugated sheets for everything above it. Doors from a Brussels bank, hand-painted tiles from an artist, a pink sink from a factory: sanitary appliances and furniture give colour to the austere architecture.
The garden was there before, and the house is there now, too. As in a children's drawing, the house stands with its pointy roof, ad hoc windows, and red brick next to a large green tree.
Project gallery
客服
消息
收藏
下载
最近


























