查看完整案例

收藏

下载

翻译
Architects:Balsa Crosetto Piazzi,David Coffio
Area:2906ft²
Year:2024
Photographs:Marcos Guiponi
Category:Houses
Structural Engineer:Edgar Moran
Country:Argentina
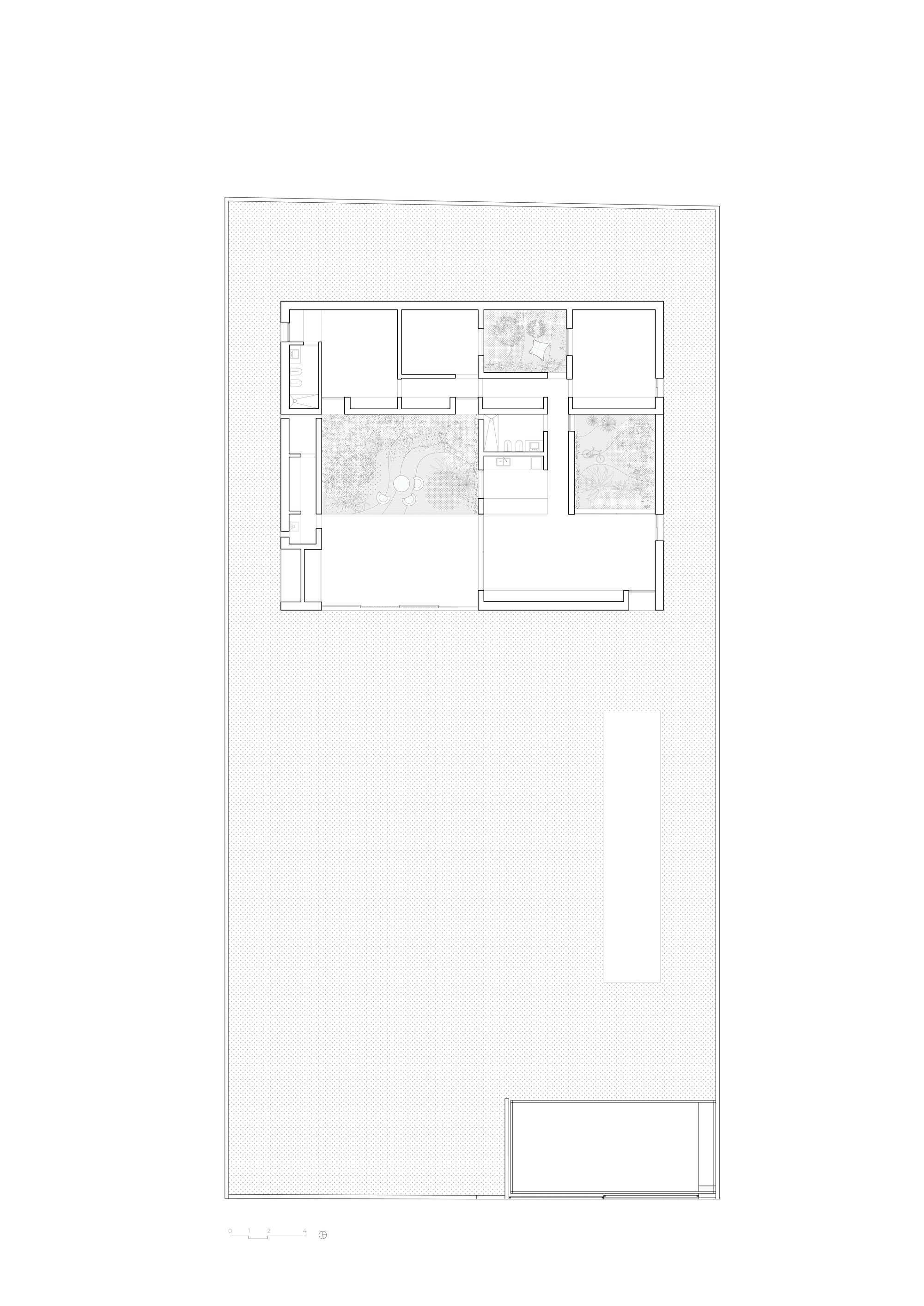
Text description provided by the architects. The house manifests itself on the street as a long and austere brick façade, evoking the sensation of entering a courtyard. This architectural gesture creates the impression of being immersed in a larger space as if the house itself were contained within a more expansive courtyard—following a nested logic reminiscent of a matryoshka doll.
Upon crossing this initial wall, the residence is revealed. The central space, located just behind a sliding metal gate, transforms into an open gallery—a flexible area that accommodates the grill. This gate, serving as the main entrance, disappears seamlessly as it slides into the wall, fully integrating with the house's volume.
The three courtyards offer a sequence of perspectives and spatial moments that gradually unfold the project. In this interplay of revelations, the walls transform: at times becoming grills, furniture, or windows. In this project, the walls acquire density, depth, and thickness.
This approach not only generates coolness within the interiors, shielding them from the sun but also leverages the thickness of the walls to house various functions, integrating them into the architecture itself.
Project gallery
客服
消息
收藏
下载
最近






















