查看完整案例

收藏

下载
Appreciation towards OFFHAND PRACTICE for providing the following description:
熹微的霞光映照在仓街的青石板路上,深秋的晚风不止带来了寒山寺的红叶,姑苏城内悄然迎来了一位新的客人。
As the first soft rays of dawn paint the cobblestone street of Cangjie in soft hues, an autumn breeze carries not only the crimson leaves from Hanshan Temple but also a mysterious guest who had silently slipped into the tranquil city of Gusu.
▼凤凰厅全貌-伊索在苏州的首个安身之所,Full view of Phoenix Hall – Aesop’s first home in Suzhou ©田方方
地处古城核心,毗邻相门城墙,仓街作为承载苏州记忆的商业街区,以从容的姿态迎接着过往的行人。熙攘的街巷深处,一方静谧的小园里,坐落着仓街唯一一座经谨慎修复后重焕生机的清代建筑——“凤凰厅”,这里成为了伊索在苏州的首个安身之所。在粉墙黛瓦与现代橱窗的光影交错中,伊索正在展开一场与江南的诗意对话。
▼场地轴测图,Site Axonometric Diagram©Offhand Practice
Nestled in the heart of the ancient city, adjacent to the Xiangmen Wall, Cangjie is a historic commercial district that carries the treasured memories of Suzhou. It warmly welcomes visitors with its peaceful atmosphere. Hidden deep within the bustling alleyways, a tranquil courtyard houses the Phoenix Hall, the sole Qing Dynasty architecture in Cangjie to be meticulously restored. This historic gem, a testament to our respect for the past, now serves as Aesop’s first home in Suzhou. Bathed in the interplay of light and shadow that dances across its whitewashed walls and traditional black tiles, Aesop engages in a poetic conversation with the timeless beauty of Jiangnan Watertown.
▼临街的主入口敞开大门,欢迎客人到访,The street-facing entrance invites visitors with open arms ©田方方
设计的核心在于,在传统建筑之下,重新定义空间,融入现代功能的同时为伊索营造一个具有独特品牌氛围的空间体验。受传统园林建筑的启发,空间分隔的形式灵感来源于“罩”,这一典型园林室内构件将空间划分为核心的“厅”与四周的“室”——“厅”是开放的,承载了社交属性,也兼具一定的仪式感;“室”则更多意味着包裹性的私密体验。这两种空间属性与伊索的空间需求不谋而合。▼“罩”的灵感 – 拙政园远香堂平面图,
Inspiration of “Shade” – Plan of Yuanxiang Hall of Humble Administrator’s Garden ©Offhand Practice
▼“罩”的灵感 – 留园五峰仙馆挂落飞罩实景图
Inspiration of “Shade” – The Five Peaks Fairy Pavilion with its elegant fly shade, in The Lingering Garden Suzhou ©Offhand Practice
The design’s core concept revolves around reimagining the space within the constraints of traditional architecture. The goal is to seamlessly integrate modern functions while crafting Aesop’s distinctive, brand-centric spatial experience. Inspired by conventional garden architecture, the spatial division draws inspiration from the concept of “shade” , a typical design element that partitions the space into a central “hall” and surrounding “rooms”. The “hall”, an open space, fosters social interaction and imbues the space with a sense of ceremony. In contrast, the “rooms” offer a more private and enclosed experience. This duality of spatial qualities perfectly aligns with Aesop’s spatial requirements.
▼透过半透明的“罩”望向休憩区,Looking to the seating area through the translucent “shade”©田方方
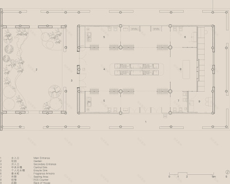
产品架与“罩”结合,跟随建筑的梁柱位置置入,满足功能需求的同时自然形成了空间层次和体验动线——临街的南立面敞开六个门扇,成为主入口,欢迎客人的到访;山墙的次入口分散人流的同时,将侧园树影婆娑、流水泠泠的景致引入室内;标志性的中央水槽是伊索空间的核心,被放置于中心的“厅”内,宽敞的空间能让访客在此安心试用产品,自在交流;个人化水槽、香水柜、休憩等功能则被放置在四周的“室”中,为访客提供专属而熨帖的个人化服务。
Product shelves integrated with the “shade” are strategically positioned along the existing beams and columns, seamlessly fulfilling functional requirements while creating a sense of spatial hierarchy and enhancing the overall experience. The south facade facing the street features six inviting doors that serve as the main entrance. The gable wall as the secondary entrance disperses the flow of visitors while offering glimpses of the enchanting garden with its swaying trees and gently flowing water. The iconic central sink, the core feature of Aesop, is positioned in the central “hall”. The generous space allows visitors to comfortably try out Aesop’s products and engage in casual skincare consultations. The ensuite sink, fragrance armoire, and seating area are nestled within the surrounding “rooms”, offering an intimate experience.
▼“罩”与产品陈列的融合,The integration of “shade” and product display ©田方方
丝绸,这一苏州的传统瑰宝,因其朦胧而亲人的质地,被大面积运用到空间当中。“罩”的形式遵照传统比例,但以金属与半透真丝代替了传统的木质结构与镂空雕刻,传递了伊索简洁凝练的现代语言。石,作为苏州园林的基本要素,拥有天然的纹理和沉稳的色调,成为中央水槽与个人化水槽的材料选择,同时依托现代工艺,再将精致的紫铜水槽镶嵌其中。在满足使用需求的同时,水槽如一处处石景,被安放在空间各处——潺潺的流水,稳重的置石,是对苏州园林“叠山理水”美学的现代回应。
Silk, a cherished possession of Suzhou, is extensively utilized throughout the space for its soft and sheer texture. The “shade” adhered to traditional proportions while substituting metal and semi-translucent silk for the wooden framework and intricate carvings, conveying Aesop’s concise and refined modern aesthetic. Stone, an essential element of Suzhou Garden, with its natural textures and calming hues, is the material for central and ensuite sinks exquisitely inlaid with copper. Fulfilling functional requirements, the gently flowing water and the placement of the sculptural stone sink, reminiscent of scenic stone formations, echo the “stacked mountains and flowing water” aesthetic that defines Suzhou Garden. By employing traditional materials and craftsmanship, we create a profound connection to the local culture, and heritage is forged.
▼坐落在“厅”内的标志性中央水槽,The iconic central sink is situated in the “hall”©田方方
“厅”的中央,由丝滑贡缎包裹而成的吊灯将空间微微点亮,其上应用了位列四大名绣之首的传统非遗工艺——苏绣,以针作画,巧夺天工。画面取自清代画家樊圻的山水册页,一张姑苏画卷在空中徐徐展开,诉说着温婉的江南故事。▼苏绣图案取自清代画家樊圻的山水册页 ,
The embroidery patterns are inspired by Qing Dynasty artist Fan Qi ©Offhand Practice
In the heart of the “hall”, a modern lantern enveloped in silk softly illuminates the space. Adorned with Suzhou embroidery, one of the four primary traditional embroidery techniques, the lantern transforms into a canvas for exquisite needlework by Su embroidery artists. Inspired by the painting of Qing Dynasty artist Fan Qi, a Gusu painting scroll gracefully unfurls in the air, narrating the gentle tales of Jiangnan.
▼由刺有手工苏绣的贡缎包裹而成的吊灯在“厅”的中央,A lantern enveloped with hand-embroidered silk in the center “hall”©田方方
“室”的深处,一个简洁优雅的香氛衣柜如同神秘的宝匣,吸引人们上前一探究竟。柜身被纤细的支座轻巧地托起,柜门上点缀着小巧精致的铜环把手,是对传统明清家具的呼应。精心挑选的清代老家具在空间中随处可见,不仅减少了对新资源的索取,也让这些旧物件焕发出新的生命。▼ 简洁优雅的香水柜藏在“室”的深处,Anelegantfragrancearmoireishiddeninthedepthsofthe“room”©田方方
Deep within the “room”, an elegant fragrance armoire that beckons like a mysterious treasure cabinet, inviting for exploration. Gracefully supported by slender stands, the cabinet doors are accented with delicate copper ring handles, echoing the traditional furniture of the Qing Dynasty. Carefully selected antique furniture is scattered throughout the space, reducing our reliance on new resources and breathing new life into these cherished pieces.
▼从中央水槽望向花园,Looking out onto the garden from the central sink©田方方
▼在花园南北两侧的门洞对望,Looking at the gates on the north and south sides of the garden©田方方
适时地回应当下,传统才能得以真正传承和延续。从空间到工艺,伊索以现代视角诠释江南传统,引入自然永续的生活方式,于市井喧嚣中,提供一处沉静的荫蔽之所。
By embracing the present, traditions can truly be passed down and perpetuated. From space to craftsmanship, Aesop reinterprets Jiangnan traditions through a modern perspective, incorporating a sustainable lifestyle and offering a tranquil sanctuary amidst the urban clamor.
▼ 西侧山墙的次入口,The secondary entrance is located on the west gable wall©田方方
▼平面图,Plan ©Offhand Practice
项目名称:伊索苏州仓街
项目类型:零售
设计方:Offhand Practice
项目设计:2023 - 2024
完成年份:2024
设计团队:聂璇,袁愿,李月,彭溢崟,高思卓,闻晓慧
项目地址:江苏省苏州市仓街1号第G层188号
建筑面积:150㎡
灯光设计: calathea
景观设计: 王雨桐
苏绣艺术家:梁雪芳
摄影版权:田方方
合作方:
客户:Aesop伊索
材料:金砖,镀紫铜色钢结构,半透明丝绸,真丝贡缎,天然石材,艺术涂料,紫铜
品牌:
Project name:Aesop Suzhou Cangjie
Project type:retail store
Design:Offhand Practice
Design year:2023 - 2024
Completion Year:2024
Leader designer & Team:Nie Xuan, Yuan Yuan, Li Yue, Wen Xiao Hui, Gao Si Zhuo
Project location:No. 188, G Floor, No.1 Cang Street, Suzhou City, Jiangsu Province
Gross built area: 150㎡
Lighting design: calathea
Landscape design: Wang Yutong
Suzhou embroidery artist:Liang Xuefang
Photo credit: Tian Fangfang
Partner:
Clients:Aesop
Materials:Gold brick, copper plated steel structure, semi-transparent silk, silk satin, natural stone, artistic paint, copper
Brands:
客服
消息
收藏
下载
最近



















